1904 LOT 1 TURKEY POINT Road, Simcoe, Ontario, N3Y4J9
MLS: 40812365 | House (Freehold)
$767,600



Property Description
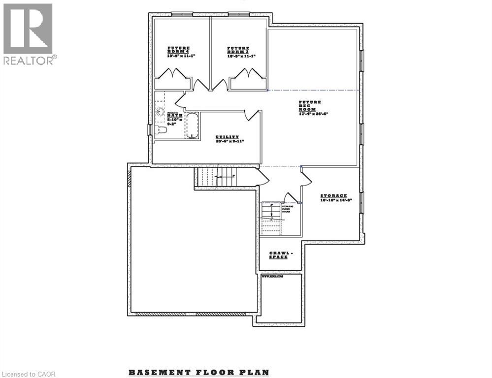
Escape to the Country! Imagine coming home to fresh air, wide-open views, and the peaceful rhythm of country living. This 1-acre lot is ready to make new memories — the perfect setting for your dream home and your family’s next chapter. Choose this thoughtfully designed raised bungalow plan or bring your own vision — the builder will build to suit your needs and style! The featured design offers over 1500 sq. ft. of main floor living space, combining comfort, function, and modern appeal. Step inside to discover a custom kitchen with a large island and handy pantry, a separate dining room for gatherings, and a spacious great room with tray ceiling and walkout to the covered back deck — ideal for relaxing and taking in the view. The primary bedroom features a walk-in closet and private ensuite, while a second bedroom, full bath, and main floor laundry add everyday convenience. The attached two-car garage includes a separate entrance to the bright lower level, offering endless potential for future development — whether it’s extra bedrooms, a rec room, or an in-law suite. Built with high-quality finishes and energy-efficient features, every detail is crafted to create your perfect living space. Country life is calling — come design your dream home today! (existing structures to be removed) (id:64974)
Quick Facts
- Property Type: House (Freehold)
- Style: Raised bungalow
- Bedrooms: 2 (2 above)
- Bathrooms: 2
- Living Area: 1,514 sq ft (140.7 m²)
- Above Grade: 1,514 sq ft (140.7 m²)
- Ownership: Freehold
- Attached: No
- Parking: 8.0 spaces (Attached Garage)
- Frontage: 102 ft (31.1 m)
Costs
- Annual Taxes: $1.00
Listing Provided by: COLDWELL BANKER BIG CREEK REALTY LTD. BROKERAGE
Board: Cornerstone Association of REALTORS®
Data provided via CREA DDF®.
Detailed Features
Interior & Systems
- Heating: Forced air, Natural gas
- Cooling: Central air conditioning
- Basement: Unfinished, Full
- Appliances: Central Vacuum - Roughed In, Garage door opener
- Utilities: Natural Gas, Electricity
- Security: Smoke Detectors
Exterior & Construction
- Style: Raised bungalow
- Exterior: Stone, Vinyl siding, Brick Veneer
- Foundation: Poured Concrete
- Sewer: Septic System
- Water: Well
Lot & Land
- Frontage: 102 ft (31.1 m)
- Features: Crushed stone driveway, Country residential, Automatic Garage Door Opener
- Zoning: RH
Community & Neighbourhood
- Community: School Bus, Community Centre
- Subdivision: Green's Corners
Room Details (9 rooms)
Listing Information
Listing History
MLS listing activity for 1904 LOT 1 TURKEY POINT Road, Simcoe, Ontario, N3Y4J9 — dates reflect when changes were recorded in the DDF
🚗 Travel times
Neighborhood Walkability
Mortgage & Cost Calculators
Nearby Homes ?Nearby Homes — Search CriteriaSearch Radius1 kmPrice Range±5%Match BedroomsYesMatch BathroomsYes
Similar Homes ?Similar Homes — Search CriteriaSearch Radius5 kmPrice Range±5%Match Home TypeYesMatch BedroomsYes

1102 PRINCE PHILIP DRIVE, London North (North M)
House$767,800
$4,912/yr taxListing Courtesy of RE/MAX CENTRE CITY REALTY INC.

95 MAPLE Street, Drayton
House$767,300
$1,031/yr taxListing Courtesy of RE/MAX REAL ESTATE CENTRE INC. BROKERAGE-3

95 MAPLE STREET, Mapleton
House$767,300
$1,031/yr taxListing Courtesy of RE/MAX REAL ESTATE CENTRE INC.

81 CARRICK Avenue, Hamilton
House$768,000
$5,108/yr taxListing Courtesy of RE/MAX Escarpment Realty Inc.

1 MONSIGNOR HENKEY Terrace, Hamilton
Condo - Row / Townhouse$768,000
$1/yr taxListing Courtesy of RE/MAX Escarpment Realty Inc.

1519 - 500 DORIS AVENUE, Toronto (Willowdale East)
Condo - Apartment$768,000
$3,755/yr taxListing Courtesy of NU STREAM REALTY (TORONTO) INC.

B904 - 292 VERDALE CROSSING, Markham (Unionville)
Condo - Apartment$768,000
$3,170/yr taxListing Courtesy of CENTURY 21 LEADING EDGE REALTY INC.

178 LANGFIELD STREET, Kingston (City Northwest)
House$768,000
$5,157/yr taxListing Courtesy of SUTTON GROUP-MASTERS REALTY INC., BROKERAGE

8 - 39 ROBINSON STREET N, Grimsby (Grimsby East)
Condo - Row / Townhouse$768,000
$5,325/yr taxListing Courtesy of Century 21 Heritage House LTD

1602 - 30 GRAND TRUNK CRESCENT, Toronto (Waterfront Communities)
Condo - Apartment$768,000
$3,770/yr taxListing Courtesy of PSR

103 WILLIAM STREET, Guelph (St. George's)
House$768,000
$5,102/yr taxListing Courtesy of Royal LePage Royal City Realty

35 LOBELIA STREET, Brampton (Sandringham-Wellington)
Condo - Row / Townhouse$767,000
$6,471/yr taxListing Courtesy of CENTURY 21 LEADING EDGE REALTY INC.

127 OWENS STREET, Pembroke
House$768,500
$8,728/yr taxListing Courtesy of EXIT OTTAWA VALLEY REALTY

4 JEANETTE DRIVE, St. Catharines (Vine/Linwell)
House$768,500
$5,458/yr taxListing Courtesy of RE/MAX GARDEN CITY REALTY INC, BROKERAGE

8553 JENNIFER CRESCENT, Niagara Falls (Forestview)
House$768,800
$5,172/yr taxListing Courtesy of REVEL Realty Inc., Brokerage
Similar Properties ?Active Comparables — Search CriteriaSearch Radius2 kmPrice Range±5%Match Home TypeYesMatch BedroomsYes
No active comparables found in this area.
No rental comparables found in this area.
Sold Comparables
Access to sold property data requires a registered and verified account with TRREB DDF integration.
Coming SoonRented Comparables
Access to rented property data requires a registered and verified account with TRREB DDF integration.
Coming SoonBook a Viewing
1904 LOT 1 TURKEY POINT Road, Simcoe, Ontario, N3Y4J9

