95 MAPLE STREET, Mapleton, Ontario, N0G1P0
MLS: X12959188 | House (Freehold)
$767,300


Property Description
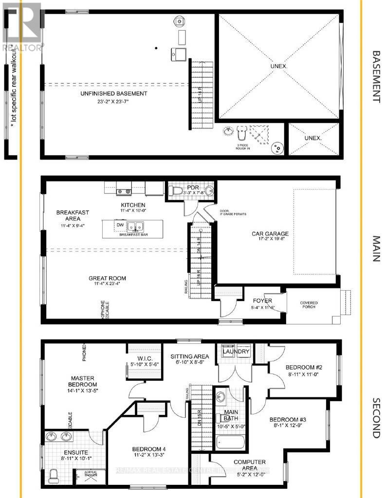
Designed for Modern Family Living. Welcome to the Broderick, a 1,949 sq. ft. two-storey home designed with family living in mind. The open-concept living room and kitchen are beautifully finished with laminate flooring and 9 ceilings, creating a warm and spacious feel. The kitchen is the heart of the home, enhanced with quartz countertops for a modern touch. Upstairs, you'll find four bedrooms, including a primary suite with a laminate custom regency-edge countertops with your choice of colour and a tiled shower with acrylic base. Additional thoughtful features include ceramic tile in all baths and the laundry room, a basement 3-piece rough-in, a fully sodded lot, and an HRV system for fresh indoor air. Enjoy easy access to Guelph and Waterloo, while savoring the charm of suburban life. (id:64974)
Quick Facts
- Property Type: House (Freehold)
- Bedrooms: 4 (4 above)
- Bathrooms: 3 (1 half)
- Ownership: Freehold
- Attached: No
- Parking: 4.0 spaces (Attached Garage, Garage)
- Frontage: 56 ft (17.1 m)
Costs
- Annual Taxes: $1,031.00
Listing Provided by: RE/MAX REAL ESTATE CENTRE INC.
Board: Toronto Regional Real Estate Board
Data provided via CREA DDF®.
Detailed Features
Interior & Systems
- Heating: Forced air, Natural gas
- Cooling: Central air conditioning
- Basement: Unfinished, Full
- Appliances: Water meter
- Utilities: Sewer, Electricity, Cable
Exterior & Construction
- Exterior: Brick, Vinyl siding
- Foundation: Poured Concrete
- Sewer: Sanitary sewer
- Water: Municipal water
Lot & Land
- Frontage: 56 ft (17.1 m)
- Zoning: RIC(H)
Community & Neighbourhood
- Neighbourhood: Rural Mapleton
Room Details (9 rooms)
Listing Information
Listing History
MLS listing activity for 95 MAPLE STREET, Mapleton, Ontario, N0G1P0 — dates reflect when changes were recorded in the DDF
🚗 Travel times
Neighborhood Walkability
Mortgage & Cost Calculators
Nearby Homes ?Nearby Homes — Search CriteriaSearch Radius1 kmPrice Range±5%Match BedroomsYesMatch BathroomsYes

95 MAPLE Street, Drayton
House$767,300
$1,031/yr taxListing Courtesy of RE/MAX REAL ESTATE CENTRE INC. BROKERAGE-3

21 UNION Street, Drayton
House$750,000
$4,803/yr taxListing Courtesy of RE/MAX SOLID GOLD REALTY (II) LTD.

123 MAPLE STREET, Mapleton (Drayton)
House$802,670
$1,016/yr taxListing Courtesy of RE/MAX REAL ESTATE CENTRE INC.

103 MAPLE STREET, Mapleton
House$784,900
$1,001/yr taxListing Courtesy of RE/MAX REAL ESTATE CENTRE INC.

99 MAPLE STREET, Mapleton
House$820,300
$1,020/yr taxListing Courtesy of RE/MAX REAL ESTATE CENTRE INC.

99 MAPLE Street, Drayton
House$820,300
$1,021/yr taxListing Courtesy of RE/MAX REAL ESTATE CENTRE INC. BROKERAGE-3

103 MAPLE Street, Drayton
House$784,900
$1,001/yr taxListing Courtesy of RE/MAX REAL ESTATE CENTRE INC. BROKERAGE-3

11 GREEN STREET, Mapleton
House$839,000
$4,803/yr taxListing Courtesy of Royal LePage RCR Realty

123 MAPLE Street, Drayton
House$802,670
Listing Courtesy of RE/MAX REAL ESTATE CENTRE INC. BROKERAGE-3

130 MAPLE Street, Drayton
House$820,300
$1,081/yr taxListing Courtesy of RE/MAX REAL ESTATE CENTRE INC. BROKERAGE-3

130 MAPLE STREET, Mapleton
House$820,300
$1,081/yr taxListing Courtesy of RE/MAX REAL ESTATE CENTRE INC.

60 GREEN Street, Drayton
House$739,000
$4,496/yr taxListing Courtesy of KEMPSTON & WERTH REALTY LTD.

20 PARKSIDE Street, Drayton
House$765,000
$4,594/yr taxListing Courtesy of eXp Realty (Team Branch)

20 PARKSIDE STREET, Mapleton
House$765,000
$4,594/yr taxListing Courtesy of EXP REALTY

59 DALES DRIVE, Mapleton
House$634,900
$3,477/yr taxListing Courtesy of Wilfred McIntee & Co Limited
Similar Homes ?Similar Homes — Search CriteriaSearch Radius5 kmPrice Range±5%Match Home TypeYesMatch BedroomsYes

95 MAPLE Street, Drayton
House$767,300
$1,031/yr taxListing Courtesy of RE/MAX REAL ESTATE CENTRE INC. BROKERAGE-3

20 PARKSIDE Street, Drayton
House$765,000
$4,594/yr taxListing Courtesy of eXp Realty (Team Branch)

20 PARKSIDE STREET, Mapleton
House$765,000
$4,594/yr taxListing Courtesy of EXP REALTY

21 UNION Street, Drayton
House$750,000
$4,803/yr taxListing Courtesy of RE/MAX SOLID GOLD REALTY (II) LTD.

28 EDWARD Street, Drayton
House$739,900
$4,077/yr taxListing Courtesy of Keller Williams Home Group Realty, Brokerage

28 EDWARD STREET, Mapleton
House$739,900
$4,077/yr taxListing Courtesy of Keller Williams Home Group Realty

123 MAPLE Street, Drayton
House$802,670
Listing Courtesy of RE/MAX REAL ESTATE CENTRE INC. BROKERAGE-3

123 MAPLE STREET, Mapleton (Drayton)
House$802,670
$1,016/yr taxListing Courtesy of RE/MAX REAL ESTATE CENTRE INC.
Similar Properties ?Active Comparables — Search CriteriaSearch Radius2 kmPrice Range±5%Match Home TypeYesMatch BedroomsYes

95 MAPLE Street, Drayton
House$767,300
$1,031/yr taxListing Courtesy of RE/MAX REAL ESTATE CENTRE INC. BROKERAGE-3

20 PARKSIDE STREET, Mapleton
House$765,000
$4,594/yr taxListing Courtesy of EXP REALTY

20 PARKSIDE Street, Drayton
House$765,000
$4,594/yr taxListing Courtesy of eXp Realty (Team Branch)

21 UNION Street, Drayton
House$750,000
$4,803/yr taxListing Courtesy of RE/MAX SOLID GOLD REALTY (II) LTD.

28 EDWARD STREET, Mapleton
House$739,900
$4,077/yr taxListing Courtesy of Keller Williams Home Group Realty

28 EDWARD Street, Drayton
House$739,900
$4,077/yr taxListing Courtesy of Keller Williams Home Group Realty, Brokerage

123 MAPLE Street, Drayton
House$802,670
Listing Courtesy of RE/MAX REAL ESTATE CENTRE INC. BROKERAGE-3

123 MAPLE STREET, Mapleton (Drayton)
House$802,670
$1,016/yr taxListing Courtesy of RE/MAX REAL ESTATE CENTRE INC.
No rental comparables found in this area.
Sold Comparables
Access to sold property data requires a registered and verified account with TRREB DDF integration.
Coming SoonRented Comparables
Access to rented property data requires a registered and verified account with TRREB DDF integration.
Coming SoonBook a Viewing
95 MAPLE STREET, Mapleton, Ontario, N0G1P0
