18 VALLEY ROAD, St. Catharines (Rykert/Vansickle), Ontario, L2S1Y6
MLS: X12906004 | House (Freehold)
$799,000
















Property Description
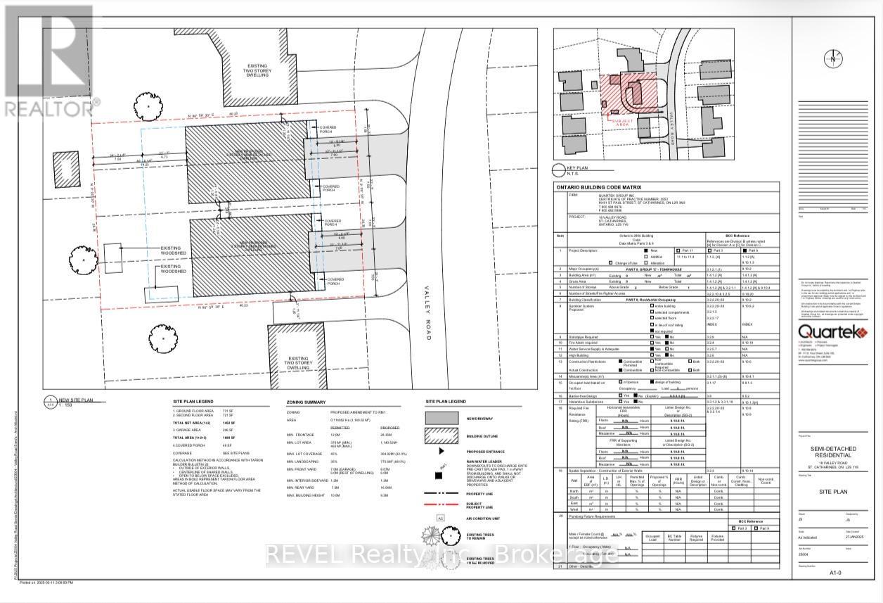
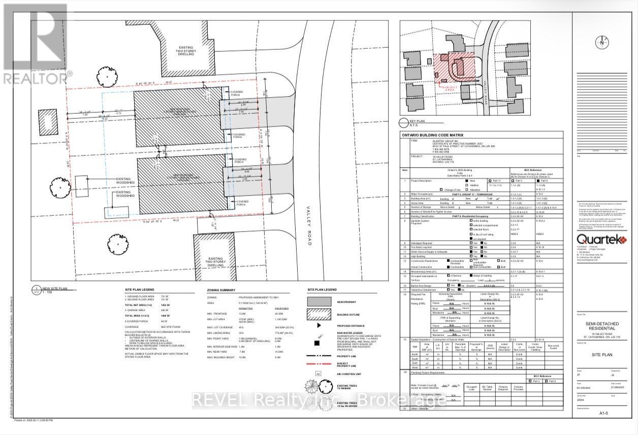
Significant savings with the Gov't supporting new builds; 50% off servicing costs and no HST on new homes. InFill Project! Valley Road is a hidden gem, one of the nicest streets in St. Catharines. Solid bungalow to be torn down at some point to allow for four new homes. This project has recently passed through the Committee of Adjustments, and has been approved for 2 semi's ( four homes ). The home is currently rented month to month and tenant is happy to stay or will vacate... Perfect tenant to keep until buyer ready to tear down and build. See plans in attachments. Buyer allowed to build 4 x 1400 square foot semi's with optional legal basement apartment. Significant information in the realtor attachment section. (id:64974)
Quick Facts
- Property Type: House (Freehold)
- Style: Bungalow
- Bedrooms: 4 (4 above)
- Bathrooms: 1
- Ownership: Freehold
- Attached: No
- Parking: 8.0 spaces (Detached Garage, Garage)
- Frontage: 93 ft (28.3 m)
Costs
- Annual Taxes: $4,186.00 (2025)
Listing Provided by: REVEL Realty Inc., Brokerage
Board: Niagara Association of REALTORS®
Data provided via CREA DDF®.
Detailed Features
Interior & Systems
- Heating: Forced air, Natural gas
- Cooling: None
- Basement: Partially finished, Partial
- Appliances: Washer, Refrigerator, Stove, Dryer
Exterior & Construction
- Style: Bungalow
- Exterior: Asbestos
- Foundation: Block, Concrete
- Sewer: Sanitary sewer
- Water: Municipal water
Lot & Land
- Frontage: 93 ft (28.3 m)
- Features: Carpet Free
- Zoning: R1
Community & Neighbourhood
- Neighbourhood: 462 - Rykert/Vansickle
Room Details (8 rooms)
Listing Information
Listing History
MLS listing activity for 18 VALLEY ROAD, St. Catharines (Rykert/Vansickle), Ontario, L2S1Y6 — dates reflect when changes were recorded in the DDF
🚗 Travel times
Neighborhood Walkability
Mortgage & Cost Calculators
Nearby Homes ?Nearby Homes — Search CriteriaSearch Radius1 kmPrice Range±5%Match BedroomsYesMatch BathroomsYes

18 A,B,C,D VALLEY ROAD, St. Catharines (Rykert/Vansickle)
Vacant Land$799,000
$4,186/yr taxListing Courtesy of REVEL Realty Inc., Brokerage

9 VALLEY Road, St. Catharines
House$620,000
$5,003/yr taxListing Courtesy of Realty Network

24A VALLEY ROAD, St. Catharines (Rykert/Vansickle)
House$1,600/mo
Listing Courtesy of Century 21 Heritage House LTD

99 LOUTH STREET, St. Catharines (Western Hill)
House$439,000
$2,950/yr taxListing Courtesy of ONE PERCENT REALTY LTD.

35 AGINCOURT CRESCENT, St. Catharines (Rykert/Vansickle)
House$999,999
$7,206/yr taxListing Courtesy of REVEL Realty Inc., Brokerage

54 VALLEY Road, St. Catharines
House$870,000
$5,715/yr taxListing Courtesy of Realty Network

20 B BROWN DRIVE, St. Catharines (Rykert/Vansickle)
Row / Townhouse$2,300/mo
Listing Courtesy of BOLDT REALTY INC., BROKERAGE

182 RYKERT Street, St. Catharines
House$1,295,000
$5,787/yr taxListing Courtesy of Realty Network

2 - 17 KIRK STREET, St. Catharines (Western Hill)
House$1,549/mo
Listing Courtesy of CENTURY 21 UNITED REALTY INC.

195 RYKERT STREET, St. Catharines (Rykert/Vansickle)
House$629,999
$4,473/yr taxListing Courtesy of ROYAL LEPAGE NRC REALTY

15 VERA STREET, St. Catharines (Western Hill)
House$500,000
$3,268/yr taxListing Courtesy of REVEL Realty Inc., Brokerage

12 VERA STREET, St. Catharines (Western Hill)
House$499,900
$3,073/yr taxListing Courtesy of Toronto Regional Real Estate Board

35 - 275 PELHAM ROAD, St. Catharines (Rykert/Vansickle)
Condo - Row / Townhouse$499,900
$4,401/yr taxListing Courtesy of ROYAL LEPAGE NRC REALTY

10 - 226 VANSICKLE ROAD, St. Catharines (Rykert/Vansickle)
Condo - Row / Townhouse$449,999
$3,109/yr taxListing Courtesy of REVEL Realty Inc., Brokerage

14 HILDA STREET, St. Catharines (Western Hill)
House$399,900
$2,331/yr taxListing Courtesy of ROYAL LEPAGE NRC REALTY
Similar Homes ?Similar Homes — Search CriteriaSearch Radius5 kmPrice Range±5%Match Home TypeYesMatch BedroomsYes

10 LEESON STREET, St. Catharines (Burleigh Hill)
House$799,000
$6,390/yr taxListing Courtesy of ROYAL LEPAGE NRC REALTY

4 RODMAN HALL DRIVE, St. Catharines (Western Hill)
House$799,900
$5,751/yr taxListing Courtesy of ROYAL LEPAGE NRC REALTY

8 DUNBAR CRESCENT, St. Catharines (Grapeview)
House$799,900
$6,293/yr taxListing Courtesy of ROYAL LEPAGE NRC REALTY

6 - 139 GLENDALE AVENUE, St. Catharines (Glendale/Glenridge)
Condo - Row / Townhouse$798,000
$6,762/yr taxListing Courtesy of BOLDT REALTY INC., BROKERAGE

46 FOXHILL Crescent, St. Catharines
House$787,700
$5,493/yr taxListing Courtesy of Royal LePage NRC Realty Inc.

46 FOXHILL CRESCENT, St. Catharines (Rykert/Vansickle)
House$787,700
$5,493/yr taxListing Courtesy of ROYAL LEPAGE NRC REALTY

16 LEONARD DRIVE, St. Catharines (Rykert/Vansickle)
House$820,000
$5,104/yr taxListing Courtesy of ROYAL LEPAGE NRC REALTY

1671 THIRD STREET LOUTH STREET, St. Catharines (Rural Fourth)
House$824,900
$7,614/yr taxListing Courtesy of RE/MAX NIAGARA REALTY LTD, BROKERAGE

24 KEEFER ROAD, Thorold (Confederation Heights)
House$829,000
$7,032/yr taxListing Courtesy of REAL BROKER ONTARIO LTD.

24 KEEFER Road, Thorold
House$829,000
$7,032/yr taxListing Courtesy of Real Broker Ontario Ltd.
Similar Properties ?Active Comparables — Search CriteriaSearch Radius2 kmPrice Range±5%Match Home TypeYesMatch BedroomsYes

4 RODMAN HALL DRIVE, St. Catharines (Western Hill)
House$799,900
$5,751/yr taxListing Courtesy of ROYAL LEPAGE NRC REALTY

46 FOXHILL Crescent, St. Catharines
House$787,700
$5,493/yr taxListing Courtesy of Royal LePage NRC Realty Inc.

46 FOXHILL CRESCENT, St. Catharines (Rykert/Vansickle)
House$787,700
$5,493/yr taxListing Courtesy of ROYAL LEPAGE NRC REALTY

16 LEONARD DRIVE, St. Catharines (Rykert/Vansickle)
House$820,000
$5,104/yr taxListing Courtesy of ROYAL LEPAGE NRC REALTY
No rental comparables found in this area.
Sold Comparables
Access to sold property data requires a registered and verified account with TRREB DDF integration.
Coming SoonRented Comparables
Access to rented property data requires a registered and verified account with TRREB DDF integration.
Coming SoonBook a Viewing
18 VALLEY ROAD, St. Catharines (Rykert/Vansickle), Ontario, L2S1Y6
