18 KING STREET W, Brockville, Ontario, K6V3P6
MLS: X12471329 | Offices
$749,900











































Property Description
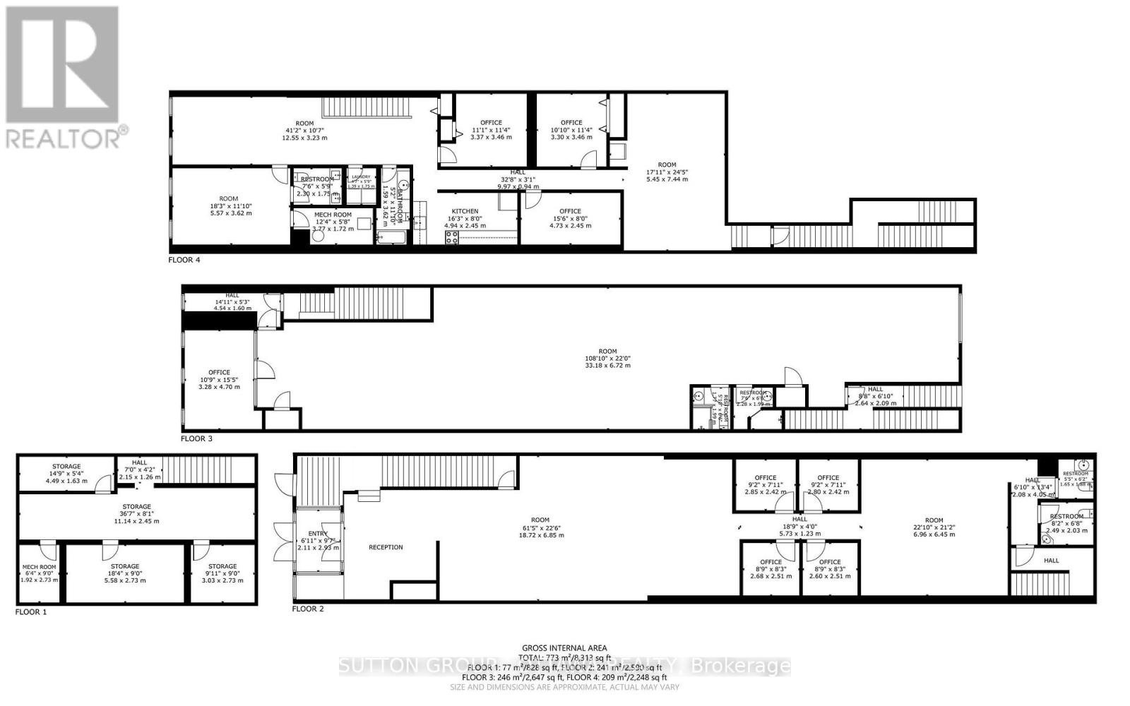
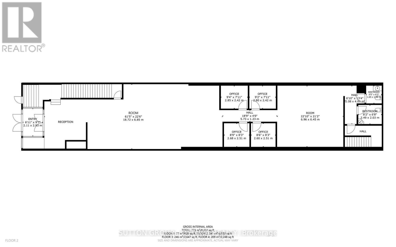
Exceptional investment opportunity in the heart of downtown Brockville! 18 King Street West is a well maintained, solid three-storey mixed-use brick building offering endless potential for investors and/or professionals. The property features approximately 2,500 sqf commercial unit on the main level with excellent street exposure-ideal for retail, office, or professional use. The second floor (approximately 2,500sqf) offers flexibility for additional commercial space, professional offices, or potential residential use, while the third floor is residential. Architectural plans are available to convert the second and third floors into five modern apartment units, maximizing the property's income potential and capitalizing on the growing demand for housing in the area. This well-located property sits steps from Brockville's waterfront, restaurants, shops, and VIA Rail, with convenient access to Highway 401 and the U.S. border. The building combines historical character with significant redevelopment potential, appealing to investors seeking both immediate rental income and long-term value growth. Brockville continues to experience economic revitalization, attracting new residents and businesses alike-making now the perfect time to secure a property positioned for success. Whether you're expanding your investment portfolio, planning a mixed-use redevelopment, or creating a live-work environment, this property offers the flexibility, structure, and prime location to deliver exceptional returns. (id:64974)
Quick Facts
- Property Type: Offices
- Bedrooms: None
- Bathrooms: None
- Living Area: 8,500 sq ft (789.7 m²)
- Parking: 6 spaces
- Frontage: 25 ft (7.6 m)
Costs
- Annual Taxes: $13,271.71 (2024)
Listing Provided by: SUTTON GROUP - OTTAWA REALTY
Board: Ottawa Real Estate Board
Data provided via CREA DDF®.
Detailed Features
Interior & Systems
- Heating: Forced air, Natural gas
- Cooling: Fully air conditioned
Exterior & Construction
- Water: Municipal water
Lot & Land
- Frontage: 25 ft (7.6 m)
- Zoning: C2 X2 1
Community & Neighbourhood
- Neighbourhood: 810 - Brockville
Listing Information
Listing History
Buy/Sell/Terminated/Expired listing history for 18 KING STREET W, Brockville, Ontario, K6V3P6
Location & Neighborhood
🚗 Travel times
Neighborhood Walkability
Mortgage & Cost Calculators
Nearby Homes (Within 2km)
Similar Homes
Similar Properties
No rental comparables found in this area.
Sold Comparables
Access to sold property data requires a registered and verified account with TRREB DDF integration.
Coming SoonRented Comparables
Access to rented property data requires a registered and verified account with TRREB DDF integration.
Coming Soon

































