167 DALHOUSIE AVENUE, St. Catharines (Port Dalhousie), Ontario, L2N4X6
MLS: X12856380 | House (Freehold)
$3,000.00 / monthly



























Property Description
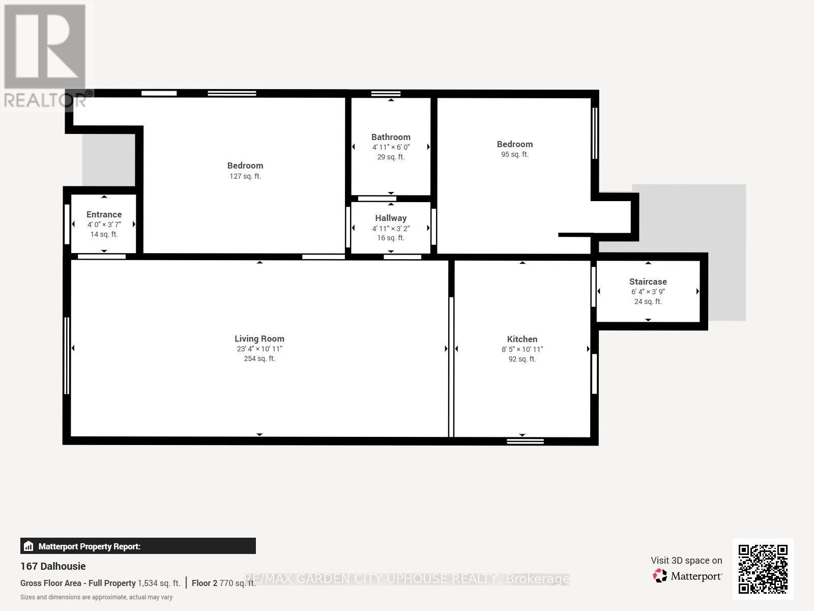
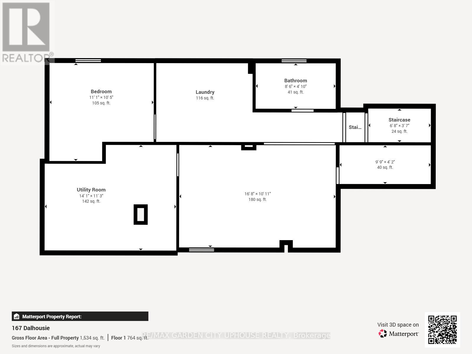
You have looked around and realized you don't want to live anywhere else other than Port Dalhousie. It's got it all. And 167 Dalhousie is perfect for you. A charming 3 bedroom (2 UP, 1 down) bungalow, that has been nicely renovated with its own mature backyard and private patio. The kitchen is brand new, opened UP in the living area and has loads of natural sunlight. 2 trendy bathrooms freshly redone with the lower level having a 3 piece down and a rec-room. For guest perhaps or a college kid that likes to hang around. This is where it's at! Previous utilities have been: Hydro $54.97, Gas $104.00, Water $84.20. (id:64974)
Quick Facts
- Property Type: House (Freehold)
- Style: Bungalow
- Bedrooms: 3 (2 above, 1 below)
- Bathrooms: 2
- Ownership: Freehold
- Attached: No
- Parking: 3 spaces (No Garage)
- Frontage: 35 ft (10.7 m)
Listing Provided by: RE/MAX GARDEN CITY UPHOUSE REALTY
Board: Niagara Association of REALTORS®
Data provided via CREA DDF®.
Detailed Features
Interior & Systems
- Heating: Forced air, Natural gas
- Cooling: Central air conditioning
- Basement: Finished, N/A
Exterior & Construction
- Style: Bungalow
- Exterior: Vinyl siding
- Foundation: Poured Concrete
- Sewer: Sanitary sewer
- Water: Municipal water
Lot & Land
- Frontage: 35 ft (10.7 m)
- Features: In suite Laundry
Community & Neighbourhood
- Neighbourhood: 438 - Port Dalhousie
Room Details (9 rooms)
Listing Information
Listing History
Buy/Sell/Terminated/Expired listing history for 167 DALHOUSIE AVENUE, St. Catharines (Port Dalhousie), Ontario, L2N4X6
Location & Neighborhood
🚗 Travel times
Neighborhood Walkability
Mortgage & Cost Calculators
Nearby Homes (Within 2km)
Similar Homes
Similar Properties
Sold Comparables
Access to sold property data requires a registered and verified account with TRREB DDF integration.
Coming SoonRented Comparables
Access to rented property data requires a registered and verified account with TRREB DDF integration.
Coming Soon


































