910 - 57 CARLISLE STREET, St. Catharines (Downtown), Ontario, L2R7N6
MLS: X12881124 | Apartment (Condo)
$2,190.00 / monthly





















Property Description
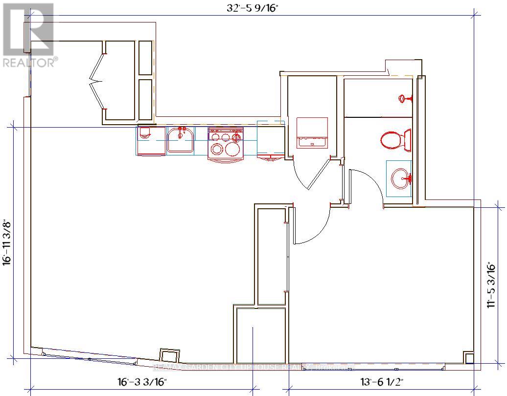
Brand New 1 Bedroom 1 bath unit In the heart of Downtown St. Catharines, THE BEST OF NIAGARA IS WAITING FOR YOU. Steps away from the First Ontario Performing Arts Centre, a short walk to the Meridian Centre, surrounded by amazing culinary experiences and also on Niagara's wine route. Minutes to Port Dalhousie Marina, and also next in line for Go Train. Only 1 minute drive to hop on the 406 and access QEW Toronto and right across from the city bus terminal, making it the most convenient location for commuting in Niagara's newest and most sustainable affordable luxury residential apartments. Unit 910 is a bright South facing unit with a fantastic view and lots of natural light. Large windows with loads of natural light. Brand-new full size stainless-steel appliances, in-suite laundry and other unique quality finishes that make this rental feel like you're in a condo, without the ridiculous condo fees! Large floor-to-ceiling picture windows for a bright, clean living space. Open-concept living room and kitchen with beautiful brand-new vinyl laminate floors, recessed lighting throughout, ceramic washroom and shower, curbless walk-in shower, glass enclosure, and bedroom ensuite privilege to bath. 24-hour security, advanced entry system with optional facial recognition entry, on-site super, optional parking available. *All measurements are approximate. (id:64974)
Quick Facts
- Property Type: Apartment (Condo)
- Bedrooms: 1 (1 above)
- Bathrooms: 1
- Ownership: Condo/Strata
- Attached: Yes
Listing Provided by: RE/MAX GARDEN CITY UPHOUSE REALTY
Board: Niagara Association of REALTORS®
Data provided via CREA DDF®.
Detailed Features
Interior & Systems
- Heating: Heat Pump, Not known, Not known, Electric, Natural gas, Other
- Cooling: Wall unit
- Basement: None
Lot & Land
- Features: Balcony, In suite Laundry
Community & Neighbourhood
- Community: Pets not Allowed
- Neighbourhood: 451 - Downtown
Room Details (2 rooms)
Listing Information
Listing History
Buy/Sell/Terminated/Expired listing history for 910 - 57 CARLISLE STREET, St. Catharines (Downtown), Ontario, L2R7N6
Location & Neighborhood
🚗 Travel times
Neighborhood Walkability
Mortgage & Cost Calculators
Nearby Homes (Within 2km)
Similar Homes
Similar Properties
Sold Comparables
Access to sold property data requires a registered and verified account with TRREB DDF integration.
Coming SoonRented Comparables
Access to rented property data requires a registered and verified account with TRREB DDF integration.
Coming Soon

































