155 B CUMBERLAND STREET, Barrie (Allandale), Ontario, L4N2P9
MLS: S12852956 | Duplex
$724,900




































Property Description
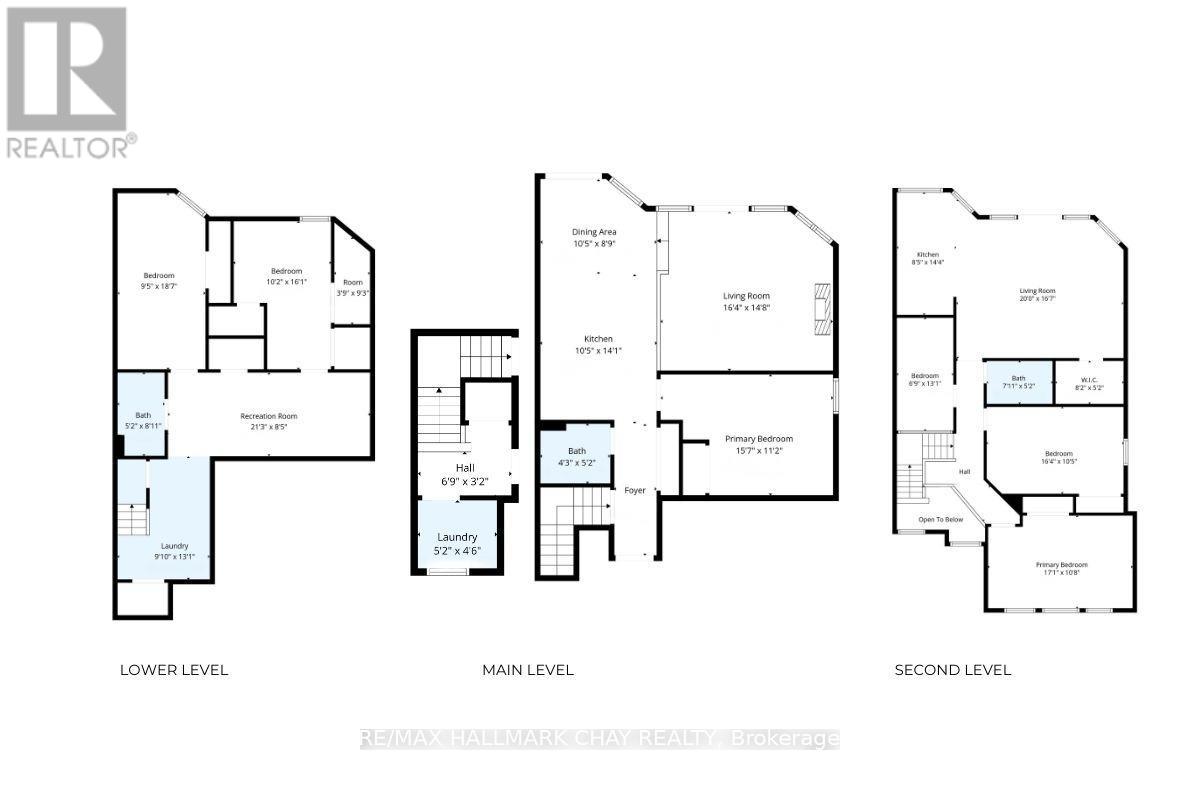
LEGAL DUPLEX - Outstanding opportunity to own a very large, well maintained, perfectly laid out legal duplex in a prime location. If you're an investor looking to add the perfect piece to your portfolio or a first time buyer looking to break into the housing market this home is for you. With nearly 3000 sq ft of finished living space this duplex is HUGE compared to most others on the market. Unit #1 is over 1600 sq ft and features 3 bedrooms and 2 full baths. This unit is spread out over the main floor of the home and the basement and also has its own laundry and direct access to the large back yard. Unit #2 is over 1300 sq ft and features 3 bedrooms and 1 bath. This unit is located on the second level of the home and also has its own laundry and a large balcony which overlooks lake Simcoe. The large two car garage is shared between the units and provides tons of additional storage for each. Both units are separately metered and tenants pay their own hydro. For first time buyers or those looking for a "mortgage helper" this is a fantastic opportunity to occupy one unit and rent the other. Both units are large and in great condition so you are not sacrificing on space or functionality. This property is exceptionally well maintained and has had plenty of recent mechanical improvements in the last 5 years making it a turn-key investment or a terrific live/rent scenario. Located in an outstanding, tenant friendly location - walking distance to Allandale GO station, Barrie's stunning waterfront and downtown. Close to public transportation, highway access, parks, schools, and shopping/dining. (id:64974)
Quick Facts
- Property Type: Duplex
- Bedrooms: 6 (4 above, 2 below)
- Bathrooms: 3
- Attached: Yes
- Fireplaces: 1
- Parking: 6 spaces (Attached Garage, Garage)
- Frontage: 33 ft (10.1 m)
Costs
- Annual Taxes: $5,492.00 (2025)
Listing Provided by: RE/MAX HALLMARK CHAY REALTY
Board: Toronto Regional Real Estate Board
Data provided via CREA DDF®.
Detailed Features
Interior & Systems
- Heating: Forced air, Natural gas
- Cooling: Central air conditioning
- Basement: Finished, N/A
- Appliances: Dishwasher, Dryer, Two stoves, Two Washers, Two Refrigerators
- Utilities: Sewer, Electricity
Exterior & Construction
- Exterior: Brick
- Foundation: Concrete
- Fencing: Fenced yard
- Sewer: Sanitary sewer
- Water: Municipal water
Lot & Land
- Frontage: 33 ft (10.1 m)
- Features: Flat site
- View: Lake view
Community & Neighbourhood
- Building: Separate Electricity Meters, Fireplace(s)
- Neighbourhood: Allandale
Room Details (15 rooms)
Listing Information
Listing History
Buy/Sell/Terminated/Expired listing history for 155 B CUMBERLAND STREET, Barrie (Allandale), Ontario, L4N2P9
Location & Neighborhood
🚗 Travel times
Neighborhood Walkability
Mortgage & Cost Calculators
Nearby Homes (Within 2km)
Similar Homes
Similar Properties
No rental comparables found in this area.
Sold Comparables
Access to sold property data requires a registered and verified account with TRREB DDF integration.
Coming SoonRented Comparables
Access to rented property data requires a registered and verified account with TRREB DDF integration.
Coming Soon
































