81 INNISFIL STREET, Barrie (Sanford), Ontario, L4N3E3
MLS: S12708440 | Other
$1,125,900















Property Description
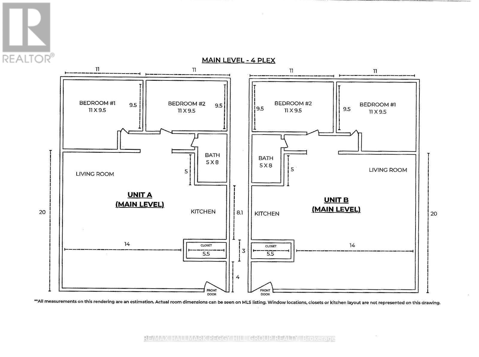
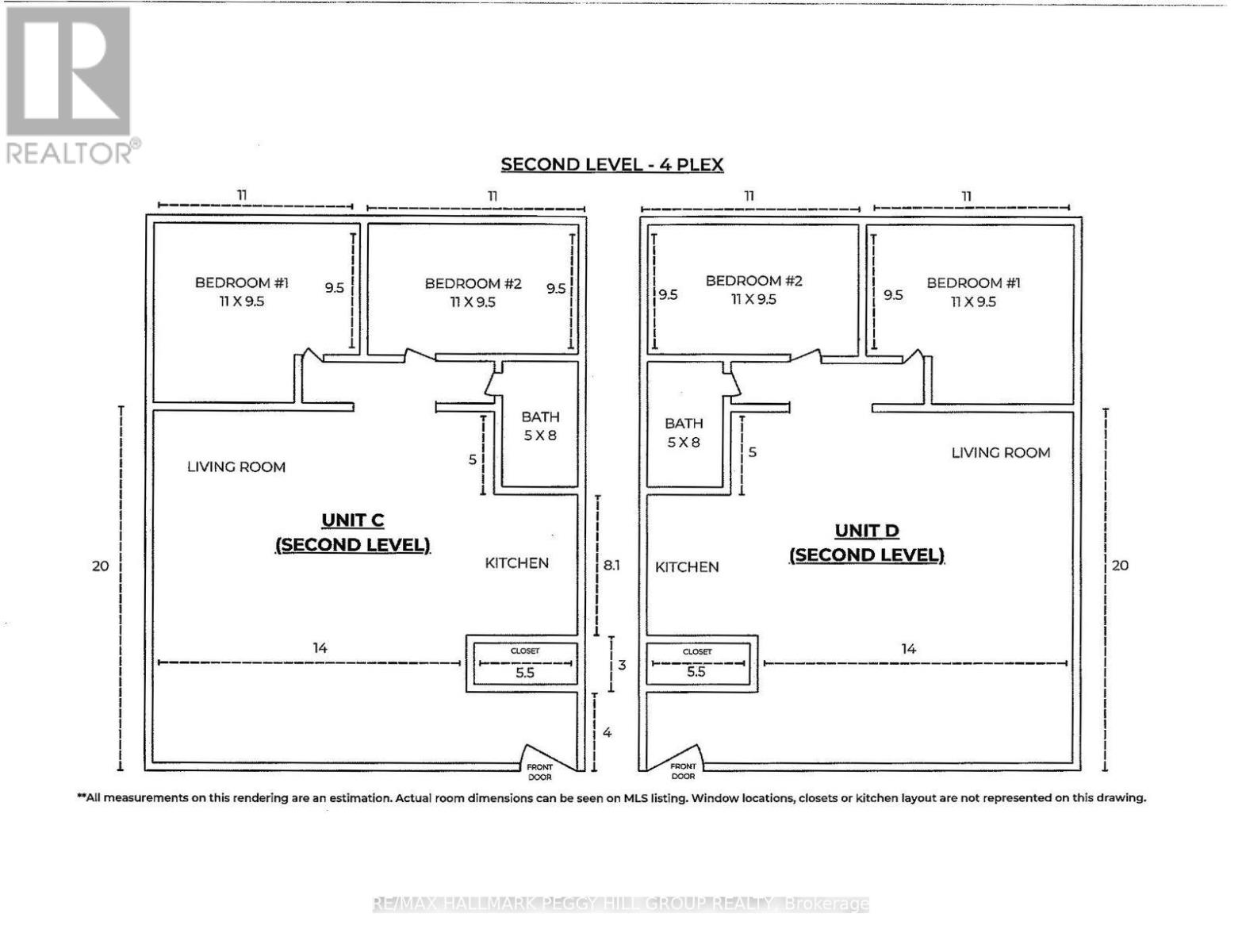
UNBEATABLE INVESTMENT OPPORTUNITY IN BARRIE'S LAKESHORE DISTRICT - RARE LEGAL MULTIPLEX WITH RELIABLE CASH FLOW & STRONG FUTURE GROWTH POTENTIAL! Outstanding opportunity to acquire a legal income-generating multiplex in one of Barrie's most coveted Lakeshore locations, just steps from Kempenfelt Bay and Centennial Beach. Within walking distance of restaurants, shopping, parks, and Barrie's vibrant downtown core filled with entertainment, community events, and waterfront activities, this property truly delivers on lifestyle and convenience. The location also offers excellent connectivity with quick access to the Allandale Waterfront GO Station, local transit routes, and Highway 400. The main front unit features a charming covered porch, a generous yard, a bright, open eat-in kitchen and living room, three upper-level bedrooms, and a full bath. Comfort is assured with forced-air heating and central air conditioning. Behind it, the rear fourplex offers four well-designed units, each with an eat-in kitchen, open living space, two bedrooms, and a full bath, all heated with electric baseboards. With an extended driveway providing ample parking, separate entrances and utility metres, individual storage for every unit, and all kitchen appliances included, this versatile property generates reliable income with plenty of potential for upgrades and future growth. Properties of this scale and in such a prime location are rarely available - secure this exceptional investment today and reap the rewards for years to come! (id:64974)
Quick Facts
- Property Type: Other
- Bedrooms: 11 (11 above)
- Bathrooms: 6 (1 half)
- Parking: 6 spaces (No Garage)
- Frontage: 66 ft (20.1 m)
Costs
- Annual Taxes: $9,726.99
Listing Provided by: RE/MAX HALLMARK PEGGY HILL GROUP REALTY
Board: Toronto Regional Real Estate Board
Data provided via CREA DDF®.
Detailed Features
Interior & Systems
- Heating: Forced air, Natural gas
- Cooling: Central air conditioning
- Basement: Full, Separate entrance
- Appliances: Washer, Refrigerator, Stove, Dryer, Water Heater
- Utilities: Sewer, Electricity, Cable
Exterior & Construction
- Exterior: Brick, Vinyl siding
- Foundation: Stone, Block
- Fencing: Partially fenced
- Sewer: Sanitary sewer
- Water: Municipal water
Lot & Land
- Frontage: 66 ft (20.1 m)
- Features: Flat site, Sump Pump
- Zoning: RM2
Community & Neighbourhood
- Building: Separate Electricity Meters
- Neighbourhood: Sanford
Room Details (22 rooms)
Listing Information
Listing History
Buy/Sell/Terminated/Expired listing history for 81 INNISFIL STREET, Barrie (Sanford), Ontario, L4N3E3
Location & Neighborhood
🚗 Travel times
Neighborhood Walkability
Mortgage & Cost Calculators
Nearby Homes (Within 2km)
Similar Homes
Similar Properties
No rental comparables found in this area.
Sold Comparables
Access to sold property data requires a registered and verified account with TRREB DDF integration.
Coming SoonRented Comparables
Access to rented property data requires a registered and verified account with TRREB DDF integration.
Coming Soon


































