15 BLAKETON ROAD, Toronto (Islington-City Centre West), Ontario, M9B4V8
MLS: W12976062 | House (Freehold)
$3,379,000








Property Description
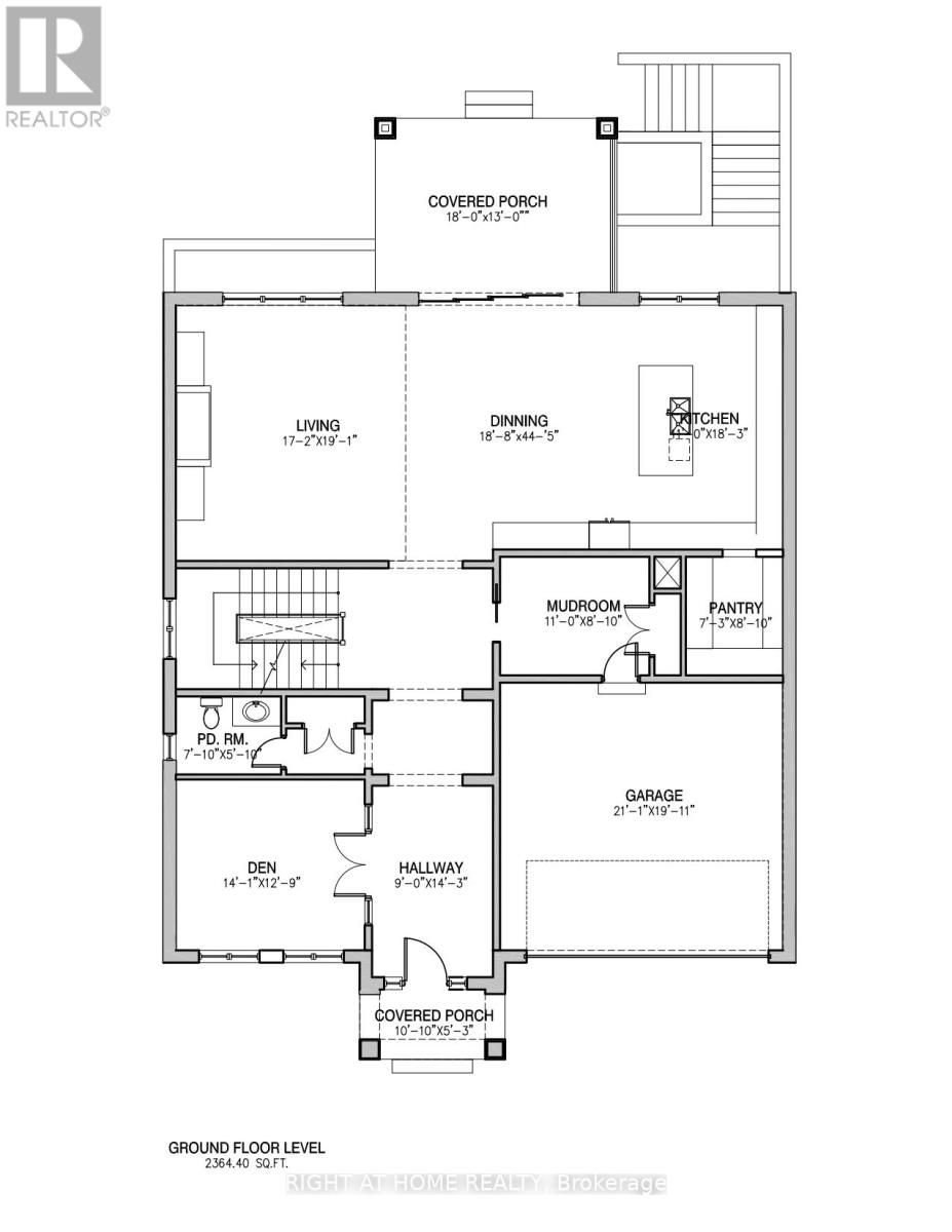
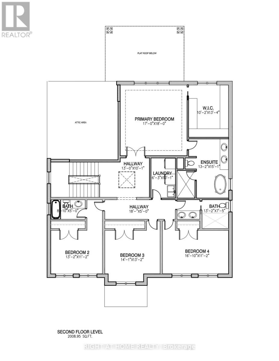
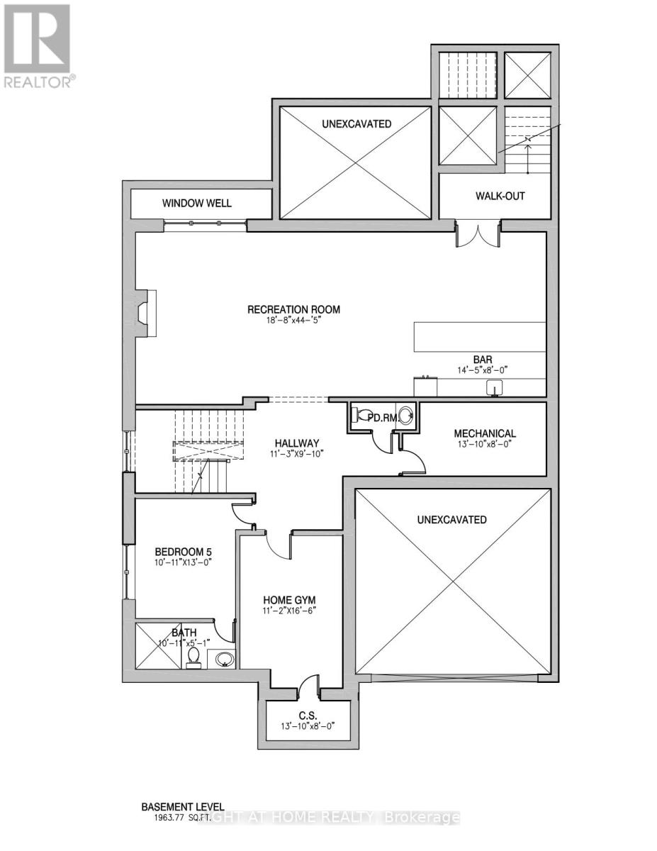
With permits secured and a respected local builder leading the way, this custom-built luxury residence, with nearly 6,000 sq ft of living space, offers a rare blend of timeless architecture and exceptional craftsmanship, all on an oversized lot backing onto peaceful greenspace. The exterior exudes elegance with custom-cut natural limestone, full-bed brick, premium shingles, colour-matched dual-pane windows and a grand 42" x 96" fiberglass entry door. Outdoor living is elevated with a 13' x 18' covered porch with cedar soffit, interlock pathways, fresh sod and a full brick walk-up from the basement, complemented by an insulated garage, limestone porch and paved drive. Inside, soaring 12', 10' and 9' ceilings, smooth finishes, plaster mouldings, wall paneling and wide-plank white oak flooring set a refined tone. The designer kitchen showcases custom cabinetry, a 5' x 9' island, 2" quartz counters, a hidden pantry and seamless accent lighting. The great room features a large statement linear fireplace with innovative accent detailing, while the library is framed by a stunning glass-panel entry. The primary suite offers a raised coffered ceiling, custom walk-in closet and a spa-inspired ensuite with oversized porcelain slabs, curbless steam shower and in-floor heating. Additional highlights include open-riser staircases, custom millwork, luxury baths, rough-in for a 12' basement bar, gym with glass entry and ample integrated storage. Modern systems include dual-stage Trane HVAC, rough-in for hydronic in-floor heating, Control4 automation, security cameras, distributed audio, central vac, WiFi boosters, EV-ready garage and extensive designer lighting. Steps to top-rated schools, transit, Kipling Station, restaurants, shops and all the amenities of Bloor St W and Dundas St W, with quick access to Hwy 427 and the city, this home delivers unmatched convenience and sophistication. (id:64974)
Quick Facts
- Property Type: House (Freehold)
- Bedrooms: 5 (4 above, 1 below)
- Bathrooms: 6 (2 half)
- Ownership: Freehold
- Attached: No
- Fireplaces: Yes
- Parking: 6.0 spaces (Garage)
- Frontage: 60 ft (18.3 m)
Costs
- Annual Taxes: $5,663.00
Listing Provided by: CREA DDF® Member Brokerage
Board: Toronto Regional Real Estate Board
Data provided via CREA DDF®.
Detailed Features
Interior & Systems
- Heating: Forced air, Natural gas
- Cooling: Central air conditioning
- Basement: Finished, Separate entrance, N/A, N/A
- Appliances: Central Vacuum, Garage door opener remote(s), Water Heater - Tankless
Exterior & Construction
- Exterior: Brick, Stone
- Foundation: Poured Concrete
- Sewer: Sanitary sewer
- Water: Municipal water
Lot & Land
- Frontage: 60 ft (18.3 m)
- Features: Carpet Free, In-Law Suite
Community & Neighbourhood
- Building: Separate Heating Controls
- Neighbourhood: Islington-City Centre West
Listing Information
Listing History
MLS listing activity for 15 BLAKETON ROAD, Toronto (Islington-City Centre West), Ontario, M9B4V8 — dates reflect when changes were recorded in the DDF
🚗 Travel times
Neighborhood Walkability
Mortgage & Cost Calculators
Nearby Homes ?Nearby Homes — Search CriteriaSearch Radius1 kmPrice Range±5%Match BedroomsYesMatch BathroomsYes

29 BLAKETON ROAD, Toronto (Islington-City Centre West)
House$2,745,000
$7,025/yr taxListing Courtesy of RE/MAX WEST REALTY INC.

MAIN FL - 15 HAMLYN CRESCENT, Toronto (Islington-City Centre West)
House$3,500/mo
Listing Courtesy of RE/MAX WEST REALTY INC.

27 NIPISSING DRIVE, Toronto (Islington-City Centre West)
House$1,129,000
$5,580/yr taxListing Courtesy of RE/MAX HALLMARK REALTY LTD.

25 CRONIN DRIVE, Toronto (Islington-City Centre West)
House$2,899,900
$5,354/yr taxListing Courtesy of Toronto Real Estate Realty Plus Inc

51 SMITHWOOD DRIVE, Toronto (Islington-City Centre West)
House$1,498,000
$6,033/yr taxListing Courtesy of ROYAL LEPAGE REAL ESTATE SERVICES LTD.

1003 - 5 VALHALLA INN ROAD, Toronto (Islington-City Centre West)
Condo - Apartment$484,900
$2,029/yr taxListing Courtesy of REALTY LIFE LTD.

9 FORMULA COURT, Toronto (Islington-City Centre West)
Row / Townhouse$3,800/mo
Listing Courtesy of ROYAL LEPAGE REAL ESTATE SERVICES LTD.

2701 - 10 EVA ROAD, Toronto (Etobicoke West Mall)
Condo - Apartment$599,000
$2,956/yr taxListing Courtesy of ROYAL LEPAGE SIGNATURE REALTY

2505 - 10 EVA ROAD, Toronto (Etobicoke West Mall)
Condo - Apartment$598,000
$2,971/yr taxListing Courtesy of ROYAL LEPAGE SIGNATURE REALTY

57 WESTGLEN CRESCENT, Toronto (Islington-City Centre West)
House$1,549,000
$5,529/yr taxListing Courtesy of RE/MAX WEST REALTY INC.

2 EVA Road Unit# 1724, Etobicoke
Condo - Apartment$549,900
$2,315/yr taxListing Courtesy of Real Broker Ontario Ltd

630 - 2 EVA ROAD, Toronto (Etobicoke West Mall)
Condo - Apartment$459,900
$2,493/yr taxListing Courtesy of SAM MCDADI REAL ESTATE INC.

2623 - 2 EVA ROAD, Toronto (Etobicoke West Mall)
Condo - Apartment$3,300/mo
Listing Courtesy of RE/MAX HALLMARK REALTY LTD.

522 - 2 EVA ROAD, Toronto (Etobicoke West Mall)
Condo - Apartment$2,550/mo
Listing Courtesy of CENTURY 21 PROPERTY ZONE REALTY INC.

1001 - 6 EVA ROAD, Toronto (Etobicoke West Mall)
Condo - Apartment$2,200/mo
Listing Courtesy of CENTURY 21 PROPERTY ZONE REALTY INC.
Similar Homes ?Similar Homes — Search CriteriaSearch Radius5 kmPrice Range±5%Match Home TypeYesMatch BedroomsYes

7 BENTLEY DRIVE, Toronto (Stonegate-Queensway)
House$3,399,000
$4,291/yr taxListing Courtesy of REALTY ONE GROUP FLAGSHIP

8 GREENFORD ROAD, Toronto (Edenbridge-Humber Valley)
House$3,299,000
$11,357/yr taxListing Courtesy of PANORAMA R.E. LIMITED

132 STRATH AVENUE, Toronto (Kingsway South)
House$3,298,000
$14,256/yr taxListing Courtesy of ROYAL LEPAGE REAL ESTATE SERVICES LTD.

40 HILLDOWNTREE ROAD, Toronto (Edenbridge-Humber Valley)
House$3,288,000
$13,076/yr taxListing Courtesy of REAL BROKER ONTARIO LTD.

72 EAGLE ROAD, Toronto (Stonegate-Queensway)
House$3,248,000
$13,943/yr taxListing Courtesy of ROYAL LEPAGE TERREQUITY REALTY
Similar Properties ?Active Comparables — Search CriteriaSearch Radius2 kmPrice Range±5%Match Home TypeYesMatch BedroomsYes
No active comparables found in this area.
Sold Comparables
Access to sold property data requires a registered and verified account with TRREB DDF integration.
Coming SoonRented Comparables
Access to rented property data requires a registered and verified account with TRREB DDF integration.
Coming SoonBook a Viewing
15 BLAKETON ROAD, Toronto (Islington-City Centre West), Ontario, M9B4V8

