145 HOLLOWAY TRAIL, Middlesex Centre (Ilderton), Ontario, N0M2A0
MLS: X12967740 | House (Freehold)
$699,900




Property Description
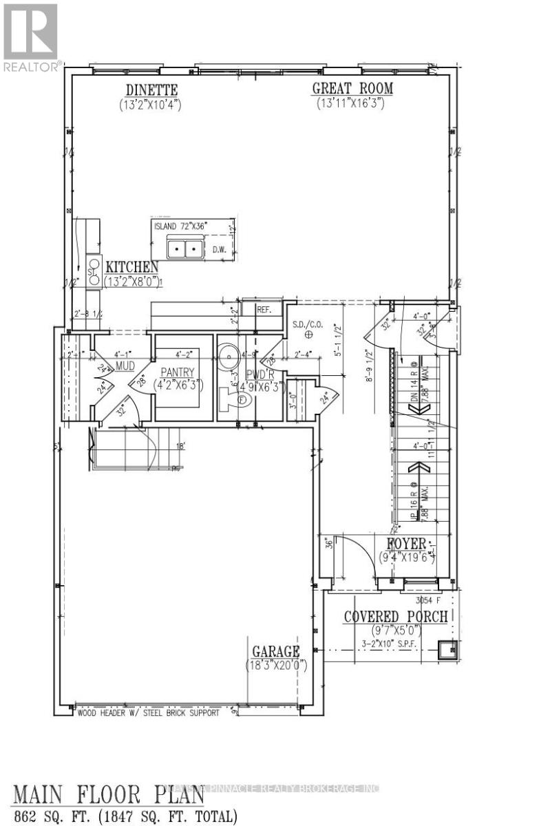
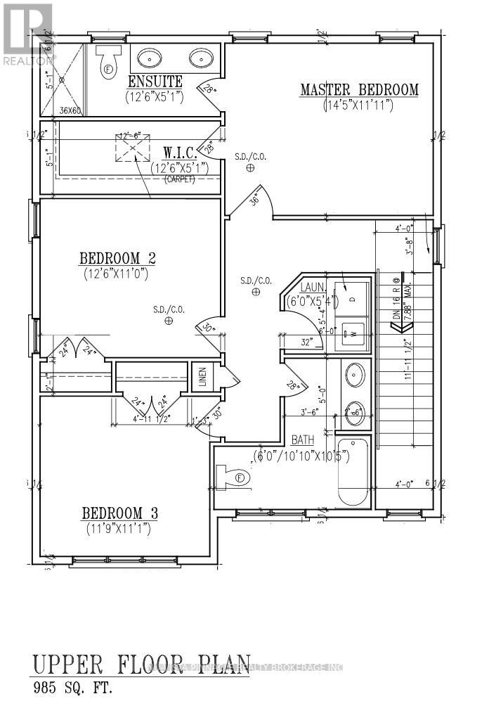
Welcome to your future dream home! This beautiful home is currently under construction by Richfield Custom Homes. This stunning two-storey residence offers 1,847 sqft. of thoughtfully designed living space with quality finishes. Step inside to find engineered hardwood floors throughout the main level, soaring 9-foot ceilings, and a luxury kitchen complete with walk-in pantry and bright dinette area; perfect for everyday living or entertaining. The spacious living room provides the ideal space to relax and unwind. Upstairs, retreat to the primary bedroom with a large walk-in closet and a spa-inspired ensuite. Two additional bedrooms, a full bathroom, and the convenience of an upstairs laundry room complete the second level. For added flexibility, this home features a separate entrance to the unfinished basement. Please note this home is currently under construction, the virtual tour attached to this listing is from a previously built spec home and may show upgrades/finishes not included at base price. (id:64974)
Quick Facts
- Property Type: House (Freehold)
- Bedrooms: 3 (3 above)
- Bathrooms: 3 (1 half)
- Ownership: Freehold
- Attached: No
- Parking: 4.0 spaces (Attached Garage, Garage)
- Frontage: 39 ft (12 m)
Listing Provided by: NU-VISTA PINNACLE REALTY BROKERAGE INC
Board: London and St. Thomas Association of REALTORS®
Data provided via CREA DDF®.
Detailed Features
Interior & Systems
- Heating: Forced air, Natural gas
- Cooling: Central air conditioning
- Basement: Unfinished, Full
Exterior & Construction
- Exterior: Stone, Hardboard
- Foundation: Poured Concrete
- Sewer: Sanitary sewer
- Water: Municipal water
Lot & Land
- Frontage: 39 ft (12 m)
- Features: Sump Pump
Community & Neighbourhood
- Neighbourhood: Ilderton
Room Details (7 rooms)
Listing Information
Listing History
MLS listing activity for 145 HOLLOWAY TRAIL, Middlesex Centre (Ilderton), Ontario, N0M2A0 — dates reflect when changes were recorded in the DDF
🚗 Travel times
Neighborhood Walkability
Mortgage & Cost Calculators
Nearby Homes ?Nearby Homes — Search CriteriaSearch Radius1 kmPrice Range±5%Match BedroomsYesMatch BathroomsYes

117 HOLLOWAY TRAIL, Middlesex Centre (Ilderton)
House$729,900
Listing Courtesy of CENTURY 21 FIRST CANADIAN CORP

210 BOWMAN DRIVE, Middlesex Centre (Ilderton)
House$669,900
Listing Courtesy of NU-VISTA PINNACLE REALTY BROKERAGE INC

6 WOODMERE PATH, Middlesex Centre (Ilderton)
House$729,900
Listing Courtesy of CENTURY 21 FIRST CANADIAN CORP

113 HOLLOWAY TRAIL, Middlesex Centre (Ilderton)
House$749,900
Listing Courtesy of CENTURY 21 FIRST CANADIAN CORP

109 HOLLOWAY TRAIL, Middlesex Centre (Ilderton)
House$729,900
Listing Courtesy of CENTURY 21 FIRST CANADIAN CORP

MAIN & SECOND FLOOR - 220 BOWMAN DRIVE, Middlesex Centre (Ilderton)
House$2,500/mo
Listing Courtesy of INFINITY REALTY INC.

224 BOWMAN DRIVE, Middlesex Centre (Ilderton)
House$629,900
Listing Courtesy of NU-VISTA PINNACLE REALTY BROKERAGE INC

197 BOWMAN DRIVE, Middlesex Centre (Ilderton)
Row / Townhouse$555,000
Listing Courtesy of RE/MAX ADVANTAGE SANDERSON REALTY

206 BOWMAN DRIVE, Middlesex Centre (Ilderton)
House$649,900
Listing Courtesy of NU-VISTA PINNACLE REALTY BROKERAGE INC

191 BOWMAN DRIVE, Middlesex Centre (Ilderton)
Row / Townhouse$555,000
Listing Courtesy of RE/MAX ADVANTAGE SANDERSON REALTY

193 BOWMAN DRIVE, Middlesex Centre (Ilderton)
Row / Townhouse$555,000
Listing Courtesy of RE/MAX ADVANTAGE SANDERSON REALTY

195 BOWMAN DRIVE, Middlesex Centre (Ilderton)
Row / Townhouse$555,000
Listing Courtesy of RE/MAX ADVANTAGE SANDERSON REALTY

231 BOWMAN DRIVE, Middlesex Centre (Ilderton)
Row / Townhouse$639,900
$3,499/yr taxListing Courtesy of RE/MAX ADVANTAGE REALTY LTD.

173 BOWMAN DRIVE, Middlesex Centre (Ilderton)
Row / Townhouse$570,000
Listing Courtesy of RE/MAX ADVANTAGE SANDERSON REALTY

27 WOOD LILY LANE, Middlesex Centre (Ilderton)
House$874,900
$5,150/yr taxListing Courtesy of CENTURY 21 FIRST CANADIAN CORP.
Similar Homes ?Similar Homes — Search CriteriaSearch Radius5 kmPrice Range±5%Match Home TypeYesMatch BedroomsYes

23904 DENFIELD ROAD, Middlesex Centre (Denfield)
House$697,500
$3,670/yr taxListing Courtesy of KELLER WILLIAMS LIFESTYLES

210 BOWMAN DRIVE, Middlesex Centre (Ilderton)
House$669,900
Listing Courtesy of NU-VISTA PINNACLE REALTY BROKERAGE INC

6 WOODMERE PATH, Middlesex Centre (Ilderton)
House$729,900
Listing Courtesy of CENTURY 21 FIRST CANADIAN CORP

117 HOLLOWAY TRAIL, Middlesex Centre (Ilderton)
House$729,900
Listing Courtesy of CENTURY 21 FIRST CANADIAN CORP
Similar Properties ?Active Comparables — Search CriteriaSearch Radius2 kmPrice Range±5%Match Home TypeYesMatch BedroomsYes

210 BOWMAN DRIVE, Middlesex Centre (Ilderton)
House$669,900
Listing Courtesy of NU-VISTA PINNACLE REALTY BROKERAGE INC

6 WOODMERE PATH, Middlesex Centre (Ilderton)
House$729,900
Listing Courtesy of CENTURY 21 FIRST CANADIAN CORP

117 HOLLOWAY TRAIL, Middlesex Centre (Ilderton)
House$729,900
Listing Courtesy of CENTURY 21 FIRST CANADIAN CORP
Sold Comparables
Access to sold property data requires a registered and verified account with TRREB DDF integration.
Coming SoonRented Comparables
Access to rented property data requires a registered and verified account with TRREB DDF integration.
Coming SoonBook a Viewing
145 HOLLOWAY TRAIL, Middlesex Centre (Ilderton), Ontario, N0M2A0
