113 HOLLOWAY TRAIL, Middlesex Centre (Ilderton), Ontario, N0M2A0
MLS: X12896028 | House (Freehold)
$749,900



Property Description
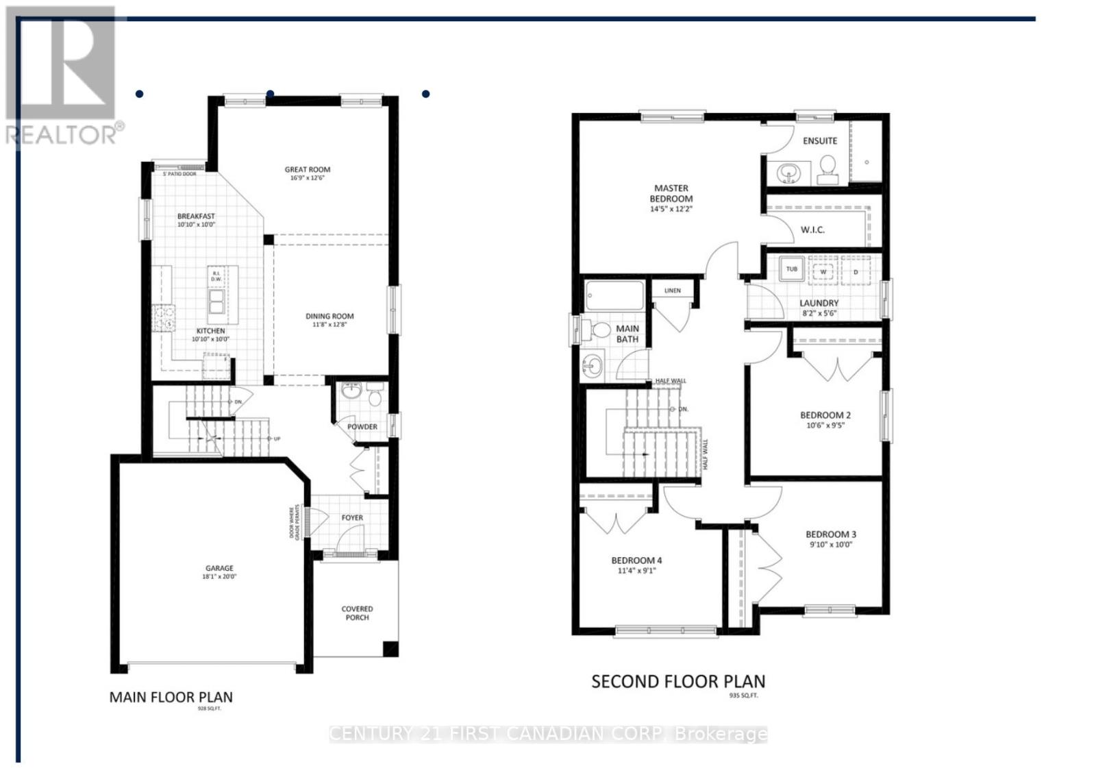
TO BE BUILT. FREE UPGRADE TO A PREMIUM LOT! A $50,000 value at no extra charge. Welcome to the NEW MOCOLEY layout with a NEW PRICE by Vranic Homes. 1863 sq ft of beauty and luxury. This 4 bedroom two storey home in beautiful Clear Skies is available with closing in late summer 2026. Come and select your own finishing, and don't wait - our special pricing is first come first served. Quartz counters throughout, plus design your own kitchen with our design consultant! See documents for a list of standard features. Visit our model at 133 Basil Cr in Ilderton, open Saturdays and Sundays from 2-4 or by appointment. Other models and lots are available, ask for the complete builder's package. (id:64974)
Quick Facts
- Property Type: House (Freehold)
- Bedrooms: 4 (4 above)
- Bathrooms: 3 (1 half)
- Ownership: Freehold
- Attached: No
- Parking: 4.0 spaces (Attached Garage, Garage)
- Frontage: 44 ft (13.5 m)
Listing Provided by: CENTURY 21 FIRST CANADIAN CORP
Board: London and St. Thomas Association of REALTORS®
Data provided via CREA DDF®.
Detailed Features
Interior & Systems
- Heating: Forced air, Natural gas
- Cooling: Central air conditioning
- Basement: Unfinished, N/A
- Appliances: Water Heater
Exterior & Construction
- Exterior: Brick, Vinyl siding
- Foundation: Poured Concrete
- Sewer: Sanitary sewer
- Water: Municipal water
Lot & Land
- Frontage: 44 ft (13.5 m)
- Zoning: UR=1
Community & Neighbourhood
- Neighbourhood: Ilderton
Room Details (12 rooms)
Listing Information
Listing History
MLS listing activity for 113 HOLLOWAY TRAIL, Middlesex Centre (Ilderton), Ontario, N0M2A0 — dates reflect when changes were recorded in the DDF
🚗 Travel times
Neighborhood Walkability
Mortgage & Cost Calculators
Nearby Homes ?Nearby Homes — Search CriteriaSearch Radius1 kmPrice Range±5%Match BedroomsYesMatch BathroomsYes

109 HOLLOWAY TRAIL, Middlesex Centre (Ilderton)
House$729,900
Listing Courtesy of CENTURY 21 FIRST CANADIAN CORP

117 HOLLOWAY TRAIL, Middlesex Centre (Ilderton)
House$729,900
Listing Courtesy of CENTURY 21 FIRST CANADIAN CORP

145 HOLLOWAY TRAIL, Middlesex Centre (Ilderton)
House$699,900
Listing Courtesy of NU-VISTA PINNACLE REALTY BROKERAGE INC

MAIN & SECOND FLOOR - 220 BOWMAN DRIVE, Middlesex Centre (Ilderton)
House$2,500/mo
Listing Courtesy of INFINITY REALTY INC.

224 BOWMAN DRIVE, Middlesex Centre (Ilderton)
House$629,900
Listing Courtesy of NU-VISTA PINNACLE REALTY BROKERAGE INC

206 BOWMAN DRIVE, Middlesex Centre (Ilderton)
House$649,900
Listing Courtesy of NU-VISTA PINNACLE REALTY BROKERAGE INC

210 BOWMAN DRIVE, Middlesex Centre (Ilderton)
House$669,900
Listing Courtesy of NU-VISTA PINNACLE REALTY BROKERAGE INC

191 BOWMAN DRIVE, Middlesex Centre (Ilderton)
Row / Townhouse$555,000
Listing Courtesy of RE/MAX ADVANTAGE SANDERSON REALTY

193 BOWMAN DRIVE, Middlesex Centre (Ilderton)
Row / Townhouse$555,000
Listing Courtesy of RE/MAX ADVANTAGE SANDERSON REALTY

195 BOWMAN DRIVE, Middlesex Centre (Ilderton)
Row / Townhouse$555,000
Listing Courtesy of RE/MAX ADVANTAGE SANDERSON REALTY

197 BOWMAN DRIVE, Middlesex Centre (Ilderton)
Row / Townhouse$555,000
Listing Courtesy of RE/MAX ADVANTAGE SANDERSON REALTY

231 BOWMAN DRIVE, Middlesex Centre (Ilderton)
Row / Townhouse$639,900
$3,499/yr taxListing Courtesy of RE/MAX ADVANTAGE REALTY LTD.

6 WOODMERE PATH, Middlesex Centre (Ilderton)
House$729,900
Listing Courtesy of CENTURY 21 FIRST CANADIAN CORP

173 BOWMAN DRIVE, Middlesex Centre (Ilderton)
Row / Townhouse$570,000
Listing Courtesy of RE/MAX ADVANTAGE SANDERSON REALTY

27 WOOD LILY LANE, Middlesex Centre (Ilderton)
House$874,900
$5,150/yr taxListing Courtesy of CENTURY 21 FIRST CANADIAN CORP.
Similar Homes ?Similar Homes — Search CriteriaSearch Radius5 kmPrice Range±5%Match Home TypeYesMatch BedroomsYes

22 PERIWINKLE DRIVE, Middlesex Centre (Ilderton)
House$735,000
$4,862/yr taxListing Courtesy of RE/MAX ADVANTAGE REALTY LTD.

109 HOLLOWAY TRAIL, Middlesex Centre (Ilderton)
House$729,900
Listing Courtesy of CENTURY 21 FIRST CANADIAN CORP

216 FOXBOROUGH PLACE, Thames Centre (Thorndale)
House$749,900
Listing Courtesy of CENTURY 21 FIRST CANADIAN CORP

121 BUSHMILL Circle, Freelton
House$749,900
Listing Courtesy of ROYAL LEPAGE CROWN REALTY SERVICES

667156 20 SIDE ROAD, Mulmur
House$749,900
$2,441/yr taxListing Courtesy of RE/MAX HALLMARK CHAY REALTY

236 FOXBOROUGH PLACE, Thames Centre (Thorndale)
House$749,900
Listing Courtesy of CENTURY 21 FIRST CANADIAN CORP

11 MONTEBELLO TERRACE, New Tecumseth (Alliston)
Condo$749,900
$4,169/yr taxListing Courtesy of ROYAL LEPAGE RCR REALTY

152 SIENNA AVENUE, Belleville (Belleville Ward)
House$749,900
Listing Courtesy of ROYAL LEPAGE PROALLIANCE REALTY

78 DEARING DRIVE, South Huron (Stephen)
House$749,900
Listing Courtesy of ROYAL LEPAGE TRILAND PREMIER BROKERAGE

34 CHURCH STREET, Port Colborne (Main Street)
House$749,900
$6,449/yr taxListing Courtesy of Real Broker Ontario Ltd.

220 FOXBOROUGH PLACE, Thames Centre (Thorndale)
House$749,900
Listing Courtesy of CENTURY 21 FIRST CANADIAN CORP

10629 COUNTY RD 2 ROAD, Alnwick/Haldimand (Grafton)
House$749,900
$4,286/yr taxListing Courtesy of ROYAL HERITAGE REALTY LTD.

3808 - 55 CHARLES STREET E, Toronto (Church-Yonge Corridor)
Condo - Apartment$749,900
$5,113/yr taxListing Courtesy of RE/MAX ROUGE RIVER REALTY LTD.

1662 COUNTY ROAD 40 ROAD, Douro-Dummer
House$749,900
$3,174/yr taxListing Courtesy of RIGHT AT HOME REALTY

914 KERR STREET, Cobourg
House$749,900
Listing Courtesy of ROYAL LEPAGE PROALLIANCE REALTY
Similar Properties ?Active Comparables — Search CriteriaSearch Radius2 kmPrice Range±5%Match Home TypeYesMatch BedroomsYes

22 PERIWINKLE DRIVE, Middlesex Centre (Ilderton)
House$735,000
$4,862/yr taxListing Courtesy of RE/MAX ADVANTAGE REALTY LTD.

109 HOLLOWAY TRAIL, Middlesex Centre (Ilderton)
House$729,900
Listing Courtesy of CENTURY 21 FIRST CANADIAN CORP
No rental comparables found in this area.
Sold Comparables
Access to sold property data requires a registered and verified account with TRREB DDF integration.
Coming SoonRented Comparables
Access to rented property data requires a registered and verified account with TRREB DDF integration.
Coming SoonBook a Viewing
113 HOLLOWAY TRAIL, Middlesex Centre (Ilderton), Ontario, N0M2A0
