12 TANNERY Street E, Cambridge, Ontario, N3C2B9
MLS: 40807503 | Other
$2,500,000


Property Description
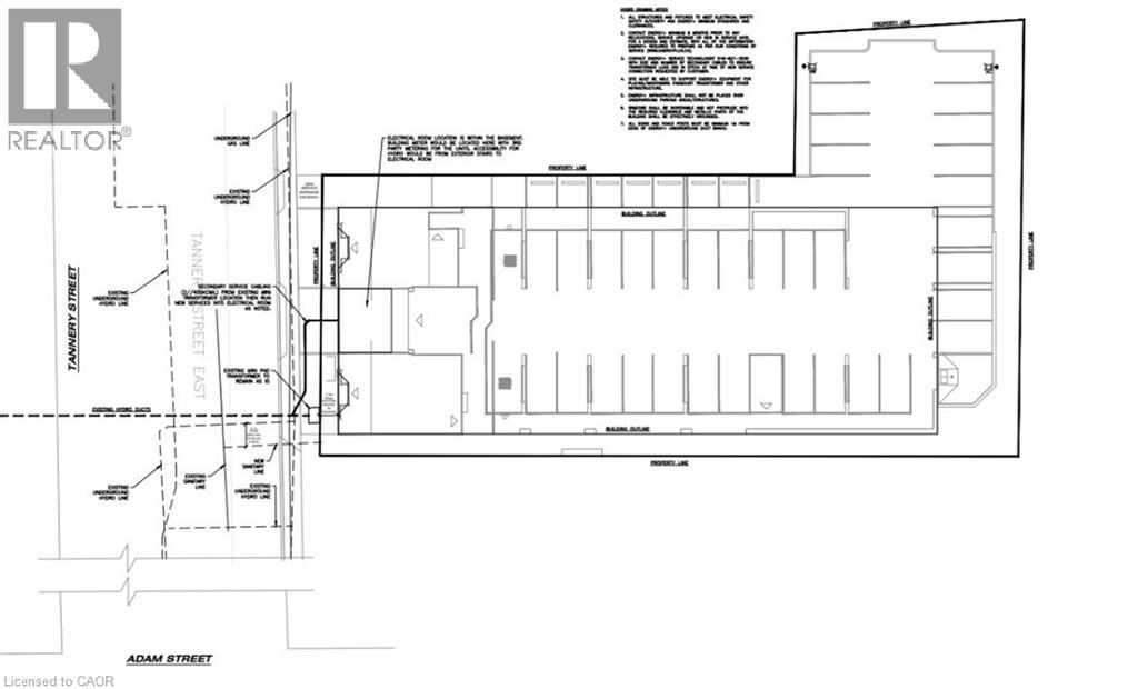
Rare, fully prepared development opportunity in the heart of Hespeler Village. Ideally located steps from the Speed River, boutique shops, cafés, and established residential neighbourhoods, this property offers the perfect blend of small-town charm and long-term investment potential. Site plan approved for 40 units and one cground floor commercial unit, this development offers a profitable mix of 1-2 and 3 bedroom units. Importantly, this site is not subject to the current regional development freeze related to municipal water servicing constraints. As one of the few areas in Waterloo Region where water allocation remains available, this property provides a significant advantage—allowing buyers to proceed without the uncertainty impacting many other projects. All required permits have been secured and fully paid, and the purchase price includes all development charges. With key approvals in place and major upfront costs already addressed, this is a true turnkey-ready opportunity that minimizes risk, shortens timelines, and accelerates the path to construction. Surrounded by a mix of historic character and thoughtful new development, 12 Tannery Street East presents an exceptional opportunity for builders and investors seeking a strategic project in one of Cambridge’s most desirable village settings. Full documentation available upon request. (id:64974)
Quick Facts
- Property Type: Other
- Bedrooms: None
- Bathrooms: None
- Living Area: 4,000 sq ft (371.6 m²)
- Ownership: Freehold
- Lot Size: 0.5000 acres (0.2 ha)
- Frontage: 86 ft (26.2 m)
Costs
- Annual Taxes: $10,680.00
Listing Provided by: RED AND WHITE REALTY INC.
Board: Cornerstone Association of REALTORS®
Data provided via CREA DDF®.
Detailed Features
Interior & Systems
- Basement: Partial
Exterior & Construction
- Sewer: Municipal sewage system
- Water: Municipal water
Lot & Land
- Lot Size: 0.5000 acres (0.2 ha)
- Frontage: 86 ft (26.2 m)
- Zoning: C1RM2
Community & Neighbourhood
- Subdivision: 43 - Hillcrest/Forbes Park
Listing Information
Listing History
Buy/Sell/Terminated/Expired listing history for 12 TANNERY Street E, Cambridge, Ontario, N3C2B9
Location & Neighborhood
🚗 Travel times
Neighborhood Walkability
Mortgage & Cost Calculators
Similar Homes
Similar Properties
No rental comparables found in this area.
Sold Comparables
Access to sold property data requires a registered and verified account with TRREB DDF integration.
Coming SoonRented Comparables
Access to rented property data requires a registered and verified account with TRREB DDF integration.
Coming Soon
























