10 ELM Street Unit# 301, Sudbury, Ontario, P3C1S8
MLS: 2120860 | Commercial Mix (Leasehold)
$11.00 / square feet














Property Description
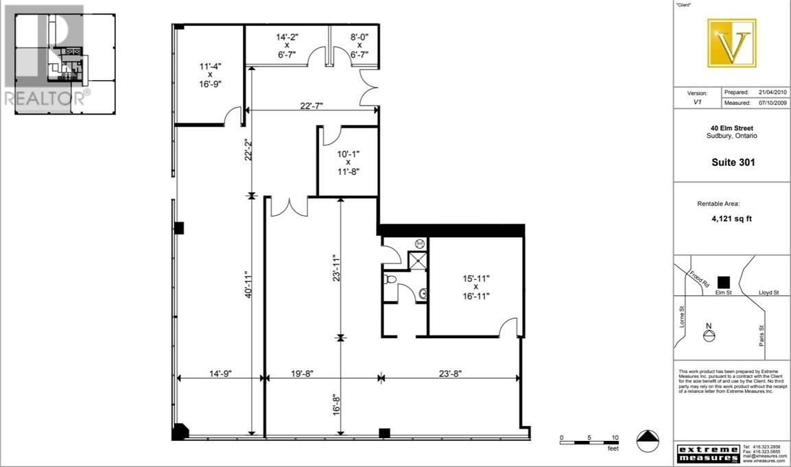
Located in the heart of Downtown Sudbury, Elm Place is a premier, high-traffic destination offering excellent visibility, a diverse tenant mix, and convenient access for both customers and employees. The Elm Place Office Tower offers Class A office space which only a few availabilities remaining ranging from 2,235-4,121 square feet. Elm Place features Sudbury’s largest downtown parking facility, which has undergone significant upgrades. The three-story garage offers 950+ stalls, including ground-level, covered, and upper-level parking. The building has also undergone extensive renovations, boasting luxury finishes throughout its common areas, such as marble flooring, elegant cornice details, accessible spaces and more. On-site amenities enhance both tenant and visitor experiences, including a food court, gym, movie theatre, spa, and the Radisson Hotel. Conveniently accessible from Elm Street and Ste. Anne Road, this prime location benefits from a daily traffic count of 28,847 vehicles and foot traffic of approximately 5,000 people per day, ensuring exceptional exposure and accessibility. This stunning 4121 sq. ft space features an open concept layout, surrounded by large windows that provide tons of natural light, along with a washroom and kitchenette. Secure your space in one of Sudbury’s most dynamic commercial hubs! Contact us today for leasing details. (id:64974)
Quick Facts
- Property Type: Commercial Mix (Leasehold)
- Bedrooms: None
- Bathrooms: None
- Ownership: Leasehold
Listing Provided by: RE/MAX CROWN REALTY (1989) INC., BROKERAGE (SUDBURY)
Board: Sudbury Real Estate Board
Data provided via CREA DDF®.
Detailed Features
Interior & Systems
- Cooling: Central air conditioning
- Security: Controlled entry
Exterior & Construction
- Sewer: Municipal sewage system
- Water: Municipal water
- Road Surface: Paved road
Lot & Land
- Zoning: C6(4)
Community & Neighbourhood
- Building: Shopping Area, Exercise Centre, Secured Parking, Air Conditioning
Listing Information
Listing History
Buy/Sell/Terminated/Expired listing history for 10 ELM Street Unit# 301, Sudbury, Ontario, P3C1S8
Location & Neighborhood
🚗 Travel times
Neighborhood Walkability
Mortgage & Cost Calculators
Similar Properties
No active comparables found in this area.
Sold Comparables
Access to sold property data requires a registered and verified account with TRREB DDF integration.
Coming SoonRented Comparables
Access to rented property data requires a registered and verified account with TRREB DDF integration.
Coming Soon














