1 Eleanor Street, Gore Bay, Ontario, P0P1H0
MLS: 2126854 | Multi-family
$415,000









































































Property Description
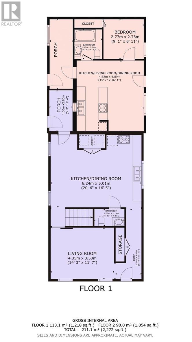
This Tri-Plex is in a prime location in the heart of downtown Gore Bay. There has been many upgrades in recent years including, insulation, electrical service, etc.. It has 2 - 1 bedroom units, with a larger 2-level unit that has 2 bedrooms and a den or possible 3rd bedroom. (Apartment #2 is shown as vacant, but it is currently occupied.) (id:64974)
Quick Facts
- Property Type: Multi-family
- Bedrooms: None
- Bathrooms: None
- Ownership: Freehold
Listing Provided by: BOUSQUET REALTY, BROKERAGE
Board: Sudbury Real Estate Board
Data provided via CREA DDF®.
Detailed Features
Interior & Systems
- Heating: Baseboard heaters, High-Efficiency Furnace
- Cooling: None
- Basement: Cellar
Exterior & Construction
- Exterior: Vinyl siding
- Roof: Asphalt shingle, Unknown
- Foundation: Stone, Poured Concrete
- Sewer: Municipal sewage system
- Water: Municipal water
Lot & Land
- Zoning: R1
Listing Information
Listing History
MLS listing activity for 1 Eleanor Street, Gore Bay, Ontario, P0P1H0 — dates reflect when changes were recorded in the DDF
🚗 Travel times
Neighborhood Walkability
Mortgage & Cost Calculators
Similar Homes ?Similar Homes — Search CriteriaSearch Radius5 kmPrice Range±5%Match Home TypeYesMatch BedroomsYes

188 Church ST, Sault Ste. Marie
Multi-Family$415,000
$5,994/yr taxListing Courtesy of Century 21 Choice Realty Inc.

41 HIGH STREET, London South (South F)
Duplex$414,900
$3,989/yr taxListing Courtesy of CENTURY 21 FIRST CANADIAN CORP

292 ST. JOSEPH STREET, Alfred and Plantagenet
Duplex$419,900
$2,410/yr taxListing Courtesy of EXIT REALTY MATRIX

1012 Victoria Ave. E., Thunder Bay
Multi-Family$419,900
$3,984/yr taxListing Courtesy of ROYAL LEPAGE LANNON REALTY

333-335 CAMERON STREET, Hawkesbury
Duplex$410,000
$3,389/yr taxListing Courtesy of SEGUIN REALTY LTD

307 PRINCE (LANE) STREET, Brockton
Duplex$409,900
$3,260/yr taxListing Courtesy of Royal LePage RCR Realty

309-313 FRONT ROAD, Hawkesbury
Duplex$425,000
$1,850/yr taxListing Courtesy of LPT REALTY

194 GLENGARRY AVENUE, Windsor
Triplex$425,000
Listing Courtesy of BUCKINGHAM REALTY (WINDSOR) LTD.

86 - 88 WEST STREET W, Greater Napanee (Greater Napanee)
Triplex$404,900
$4,195/yr taxListing Courtesy of CENTURY 21 LANTHORN REAL ESTATE LTD.

228 LACROIX Street, Chatham
Fourplex$429,900
$2,380/yr taxListing Courtesy of Gale Group Realty Brokerage

68/70 Elizabeth STREET, Chatham
Duplex$429,900
$4,163/yr taxListing Courtesy of ROYAL LEPAGE PEIFER REALTY Brokerage

228 LACROIX STREET, Chatham-Kent (Chatham)
Fourplex$429,900
$2,380/yr taxListing Courtesy of Gale Group Realty Brokerage Ltd

4674 RYERSON CRESCENT, Niagara Falls (Downtown)
Duplex$429,900
$3,587/yr taxListing Courtesy of COLDWELL BANKER ADVANTAGE REAL ESTATE INC, BROKERAGE

330 BLACK RIVER ROAD, Tweed (Elzevir (Twp))
Duplex$399,999
$1,977/yr taxListing Courtesy of EXIT REALTY GROUP

74 ERIE Avenue, Brantford
Duplex$399,919
$2,066/yr taxListing Courtesy of Pay It Forward Realty
Similar Properties ?Active Comparables — Search CriteriaSearch Radius2 kmPrice Range±5%Match Home TypeYesMatch BedroomsYes
No active comparables found in this area.
No rental comparables found in this area.
Sold Comparables
Access to sold property data requires a registered and verified account with TRREB DDF integration.
Coming SoonRented Comparables
Access to rented property data requires a registered and verified account with TRREB DDF integration.
Coming SoonBook a Viewing
1 Eleanor Street, Gore Bay, Ontario, P0P1H0
