UNIT A - 612 BERFORD STREET, South Bruce Peninsula, Ontario, N0H2T0
MLS: X12523694 | Offices
$750.00 / monthly







Property Description
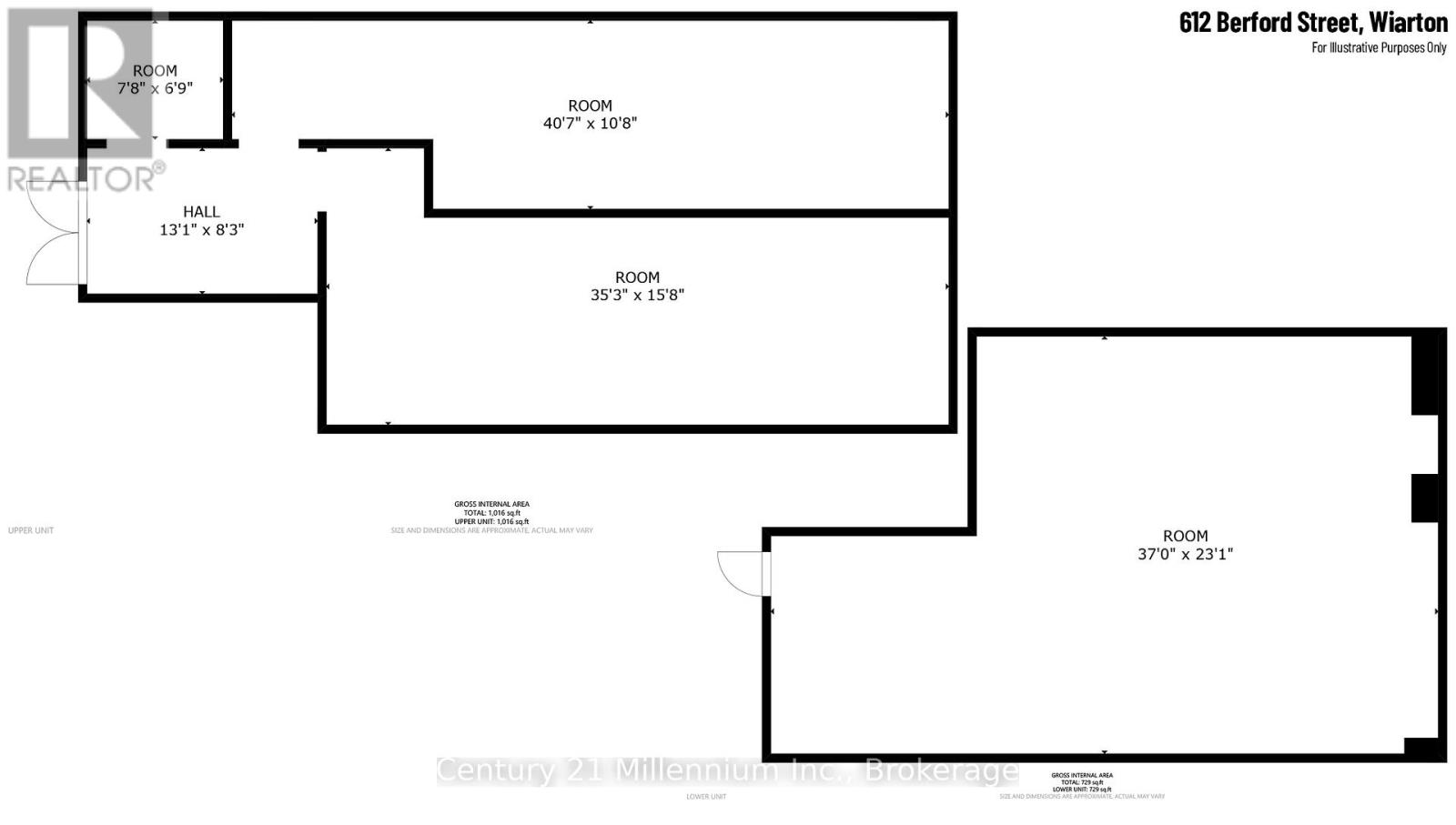
Commercial space for lease in the heart of Wiarton! Accessed from the back of the building off Louisa Street, Unit A offers a shared lobby and washroom, with the option to lease both units for the entire floor. The space is partially finished, allowing the tenant to complete it to their liking, and the landlord is open to negotiating the finishing details. Rent is plus TMI and a portion of utilities. Conveniently located near ample municipal parking and featuring a ramp for wheelchair accessibility, this unit provides great potential for a variety of business uses in a prime location. (id:64974)
Quick Facts
- Property Type: Offices
- Bedrooms: None
- Bathrooms: None
- Living Area: 560 sq ft (52.0 m²)
- Frontage: 26 ft (7.9 m)
Costs
- Annual Taxes: $87.00
Listing Provided by: Century 21 Millennium Inc.
Board: OnePoint Association of REALTORS®
Data provided via CREA DDF®.
Detailed Features
Interior & Systems
- Heating: Baseboard heaters
- Cooling: None
Exterior & Construction
- Water: Municipal water
Lot & Land
- Frontage: 26 ft (7.9 m)
- Zoning: C1B
Community & Neighbourhood
- Neighbourhood: South Bruce Peninsula
Listing Information
Listing History
Buy/Sell/Terminated/Expired listing history for UNIT A - 612 BERFORD STREET, South Bruce Peninsula, Ontario, N0H2T0
Location & Neighborhood
🚗 Travel times
Neighborhood Walkability
Mortgage & Cost Calculators
Nearby Homes (Within 2km)
Similar Homes
Similar Properties
Sold Comparables
Access to sold property data requires a registered and verified account with TRREB DDF integration.
Coming SoonRented Comparables
Access to rented property data requires a registered and verified account with TRREB DDF integration.
Coming Soon











