UNIT 40 - 3202 VIVIAN LINE, Stratford, Ontario, N5A0K6
MLS: X12729304 | Apartment (Condo)
$424,900
























Property Description
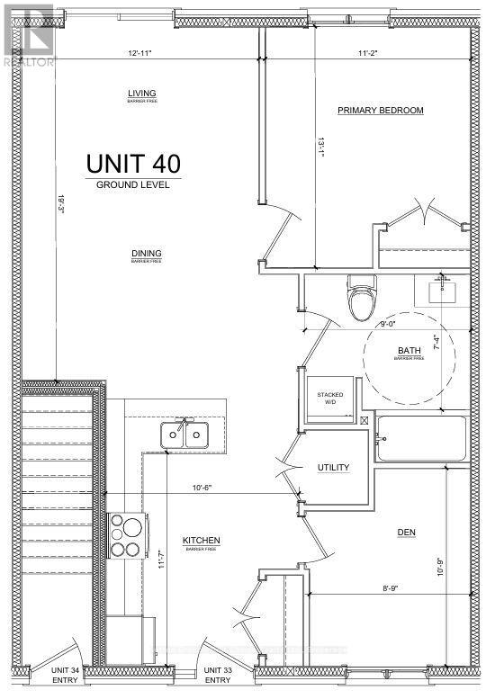
Looking for brand new, easy living with a great location? This condo is for you! This 2 bedroom, 1 bath condo is built to impress. Lots of natural Light throughout the unit, great patio space, one parking spot and all appliances, hot water heater and softener included. Let the condo corporation take care of all the outdoor maintenance, while you enjoy the easy life! Located on the outskirts of town, close to Stratford Country Club, and easy walk to parks and Theatre and quick access for commuters. *photos are of model unit 35 (id:64974)
Quick Facts
- Property Type: Apartment (Condo)
- Bedrooms: 2 (2 above)
- Bathrooms: 1
- Ownership: Condo/Strata
- Attached: Yes
- Parking: 1 space (No Garage)
Costs
- Condo/HOA Fee: $288.12 / monthly
- Corp: G3 Property Solutions
- Includes: Common Area Maintenance
Listing Provided by: Sutton Group - First Choice Realty Ltd.
Board: OnePoint Association of REALTORS®
Data provided via CREA DDF®.
Detailed Features
Interior & Systems
- Heating: Forced air, Natural gas
- Cooling: Central air conditioning, Air exchanger
- Basement: None
- Appliances: Washer, Refrigerator, Water softener, Dishwasher, Stove, Dryer, Microwave, Hood Fan, Water Heater - Tankless, Water Heater
- Utilities: Wireless
Exterior & Construction
- Exterior: Brick, Vinyl siding
- Foundation: Concrete
Lot & Land
- Features: In suite Laundry
- Zoning: UR
Community & Neighbourhood
- Community: Pets Allowed With Restrictions
- Building: Storage - Locker, Visitor Parking
- Neighbourhood: Stratford
Room Details (6 rooms)
Listing Information
Listing History
Buy/Sell/Terminated/Expired listing history for UNIT 40 - 3202 VIVIAN LINE, Stratford, Ontario, N5A0K6
Location & Neighborhood
🚗 Travel times
Neighborhood Walkability
Mortgage & Cost Calculators
Nearby Homes (Within 2km)
Similar Homes
Similar Properties
No rental comparables found in this area.
Sold Comparables
Access to sold property data requires a registered and verified account with TRREB DDF integration.
Coming SoonRented Comparables
Access to rented property data requires a registered and verified account with TRREB DDF integration.
Coming Soon





















