UNIT 4 - 78 GLADSTONE AVENUE, Toronto (Little Portugal), Ontario, M6J3K8
MLS: C12993144 | Other
$4,150 / monthly



























Property Description
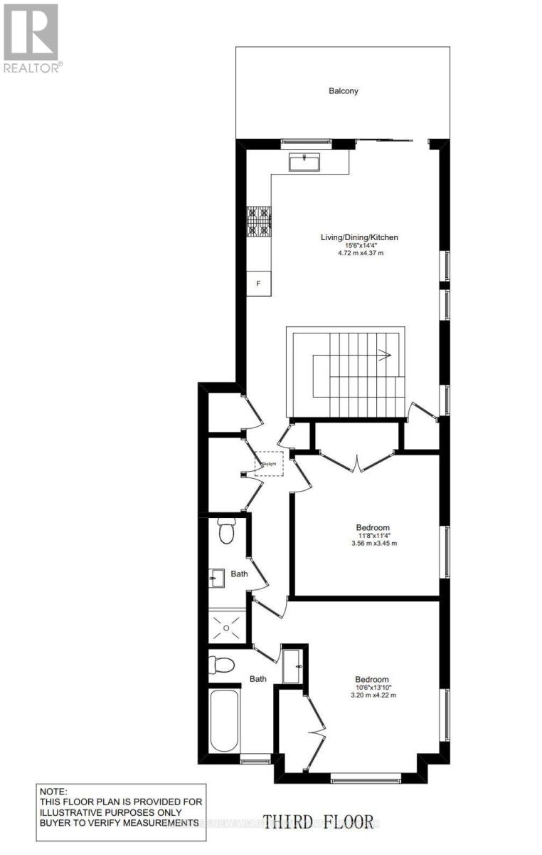
Welcome to the upper level of 980 sq. ft exceptionally bright, airy, spacious with great layout 2-bedroom, 2-bathroom apartment in the newly built multiplex. Located in one of the most vibrant and walkable neighborhoods in Toronto this unit offers a walking distance convenience to everything you need while offering a modern living and ample of functional space. This suite Is filled with Natural Light And Finished With High-End Touches Throughout including in floor heating system. The Spacious Living and Dining Areas Flow Seamlessly Into A Sleek Well-Appointed Kitchen with the gas stove and its private spacious terrace allowing for BBQ gatherings while enjoying the city view. The bedroom has a beautiful view of CN Tower adding.. Historic district offers the best - an international cuisine, cafe's, steps to major TTC transit arteries, galleries and shops. Perfect spot offering an unbeatable mix of culture and urban convenience. (id:64974)
Quick Facts
- Property Type: Other
- Bedrooms: 2 (2 above)
- Bathrooms: 2
- Fireplaces: Yes
Listing Provided by: HOMELIFE NEW WORLD REALTY INC.
Board: Toronto Regional Real Estate Board
Data provided via CREA DDF®.
Detailed Features
Interior & Systems
- Heating: Other
- Cooling: Central air conditioning
- Basement: None
Exterior & Construction
- Exterior: Brick
- Foundation: Block
- Sewer: Sanitary sewer
- Water: Municipal water
Lot & Land
- Features: Carpet Free
Community & Neighbourhood
- Neighbourhood: Little Portugal
Room Details (3 rooms)
Listing Information
Listing History
MLS listing activity for UNIT 4 - 78 GLADSTONE AVENUE, Toronto (Little Portugal), Ontario, M6J3K8 — dates reflect when changes were recorded in the DDF
🚗 Travel times
Neighborhood Walkability
Mortgage & Cost Calculators
Nearby Homes ?Nearby Homes — Search CriteriaSearch Radius1 kmPrice Range±5%Match BedroomsYesMatch BathroomsYes

UNIT 2 - 78 GLADSTONE AVENUE, Toronto (Little Portugal)
Other$3,975/mo
Listing Courtesy of HOMELIFE NEW WORLD REALTY INC.

UNIT 1 (MAIN LEVEL) - 78 GLADSTONE AVENUE, Toronto (Little Portugal)
Other$4,150/mo
Listing Courtesy of HOMELIFE NEW WORLD REALTY INC.

4 - 114 OSSINGTON AVENUE, Toronto (Trinity-Bellwoods)
Residential Commercial Mix$4,300/mo
Listing Courtesy of PSR

UNIT 6 - 78 GLADSTONE AVENUE, Toronto (Little Portugal)
Other$4,600/mo
Listing Courtesy of HOMELIFE NEW WORLD REALTY INC.

UNIT 5 - 78 GLADSTONE AVENUE, Toronto (Little Portugal)
Other$2,200/mo
Listing Courtesy of HOMELIFE NEW WORLD REALTY INC.

UNIT 3 - 78 GLADSTONE AVENUE, Toronto (Little Portugal)
Other$2,300/mo
Listing Courtesy of HOMELIFE NEW WORLD REALTY INC.

2 - 89 GLADSTONE AVENUE, Toronto (Little Portugal)
Fourplex$2,850/mo
Listing Courtesy of CENTURY 21 REGAL REALTY INC.

201 - 34 NOBLE STREET, Toronto (Roncesvalles)
Other$3,045/mo
Listing Courtesy of SUTTON GROUP-ADMIRAL REALTY INC.

LOWER - 158 DOVERCOURT ROAD, Toronto (Little Portugal)
Other$2,799/mo
Listing Courtesy of VALERY REAL ESTATE INC.

LOWER - 148 DOVERCOURT ROAD, Toronto (Little Portugal)
Triplex$2,350/mo
Listing Courtesy of RIGHT AT HOME REALTY

1320 QUEEN STREET W, Toronto (Roncesvalles)
Multi-Family$5,999,999
$25,019/yr taxListing Courtesy of The Realty Bulls

45 BROCK AVENUE, Toronto (South Parkdale)
Fourplex$2,795,000
$5,105/yr taxListing Courtesy of RIGHT AT HOME REALTY

MAIN - 91 DOVERCOURT ROAD, Toronto (Niagara)
Duplex$3,100/mo
Listing Courtesy of KELLER WILLIAMS REFERRED URBAN REALTY

41 ROLYAT STREET, Toronto (Trinity-Bellwoods)
Triplex$3,200,000
$12,088/yr taxListing Courtesy of RE/MAX PROFESSIONALS INC.

53 ARGYLE STREET, Toronto (Trinity-Bellwoods)
Duplex$3,900,000
$20,104/yr taxListing Courtesy of RE/MAX WEST REALTY INC.
Similar Homes ?Similar Homes — Search CriteriaSearch Radius5 kmPrice Range±5%Match Home TypeYesMatch BedroomsYes

UNIT 1 (MAIN LEVEL) - 78 GLADSTONE AVENUE, Toronto (Little Portugal)
Other$4,150/mo
Listing Courtesy of HOMELIFE NEW WORLD REALTY INC.

2 - 14 SALEM AVENUE, Toronto (Dovercourt-Wallace Emerson-Junction)
Other$4,200/mo
Listing Courtesy of RIGHT AT HOME REALTY

UPPER - 19 MELGUND ROAD, Toronto (Casa Loma)
Duplex$3,995/mo
Listing Courtesy of SOTHEBY'S INTERNATIONAL REALTY CANADA

UNIT 2 - 78 GLADSTONE AVENUE, Toronto (Little Portugal)
Other$3,975/mo
Listing Courtesy of HOMELIFE NEW WORLD REALTY INC.
Similar Properties ?Active Comparables — Search CriteriaSearch Radius2 kmPrice Range±5%Match Home TypeYesMatch BedroomsYes

UNIT 1 (MAIN LEVEL) - 78 GLADSTONE AVENUE, Toronto (Little Portugal)
Other$4,150/mo
Listing Courtesy of HOMELIFE NEW WORLD REALTY INC.

2 - 14 SALEM AVENUE, Toronto (Dovercourt-Wallace Emerson-Junction)
Other$4,200/mo
Listing Courtesy of RIGHT AT HOME REALTY

UPPER - 19 MELGUND ROAD, Toronto (Casa Loma)
Duplex$3,995/mo
Listing Courtesy of SOTHEBY'S INTERNATIONAL REALTY CANADA

UNIT 2 - 78 GLADSTONE AVENUE, Toronto (Little Portugal)
Other$3,975/mo
Listing Courtesy of HOMELIFE NEW WORLD REALTY INC.

UNIT 2 - 78 GLADSTONE AVENUE, Toronto (Little Portugal)
Other$3,975/mo
Listing Courtesy of HOMELIFE NEW WORLD REALTY INC.

UNIT 1 (MAIN LEVEL) - 78 GLADSTONE AVENUE, Toronto (Little Portugal)
Other$4,150/mo
Listing Courtesy of HOMELIFE NEW WORLD REALTY INC.

2 - 14 SALEM AVENUE, Toronto (Dovercourt-Wallace Emerson-Junction)
Other$4,200/mo
Listing Courtesy of RIGHT AT HOME REALTY
Sold Comparables
Access to sold property data requires a registered and verified account with TRREB DDF integration.
Coming SoonRented Comparables
Access to rented property data requires a registered and verified account with TRREB DDF integration.
Coming SoonBook a Viewing
UNIT 4 - 78 GLADSTONE AVENUE, Toronto (Little Portugal), Ontario, M6J3K8
