U#20 - 2 HEMLO DRIVE, Marathon, Ontario, P0T2E0
MLS: X12751018 | Retail
$15.00 / square feet
























Property Description
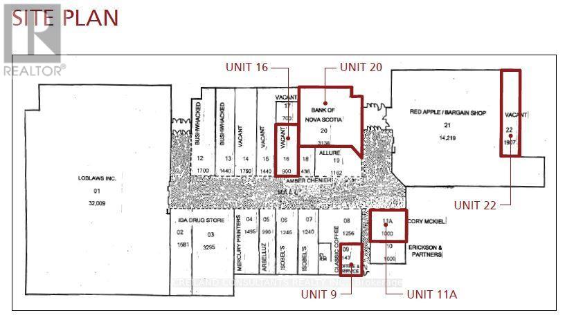
This retail unit is strategically situated within a neighbourhood shopping centre in the heart of one of the largest towns along Lake Superior's western shoreline. Anchored by Independent Grocer (Loblaws) and The Bargain Shop (Red Apple Stores), the centre offers a strong blend of national and local retailers, serving the daily needs of residents throughout this northern community and the surrounding region. Tenanted until May 12, 2026 (id:64974)
Directions: Hemlo Drive
Quick Facts
- Property Type: Retail
- Bedrooms: None
- Bathrooms: None
- Living Area: 3,141 sq ft (291.8 m²)
Costs
- Annual Taxes: $8.50
Listing Provided by: CREILAND CONSULTANTS REALTY INC.
Board: Toronto Regional Real Estate Board
Data provided via CREA DDF®.
Detailed Features
Interior & Systems
- Heating: Forced air, Natural gas
- Cooling: Fully air conditioned
Exterior & Construction
- Water: Municipal water
Lot & Land
- Zoning: General Commercial (C2)
Listing Information
Listing History
Buy/Sell/Terminated/Expired listing history for U#20 - 2 HEMLO DRIVE, Marathon, Ontario, P0T2E0
Location & Neighborhood
📍
