N/A LAND COUNTY RD 2, South Glengarry, Ontario, K0C1N0
MLS: X12772182 | Vacant Land
$10,999,000


Property Description
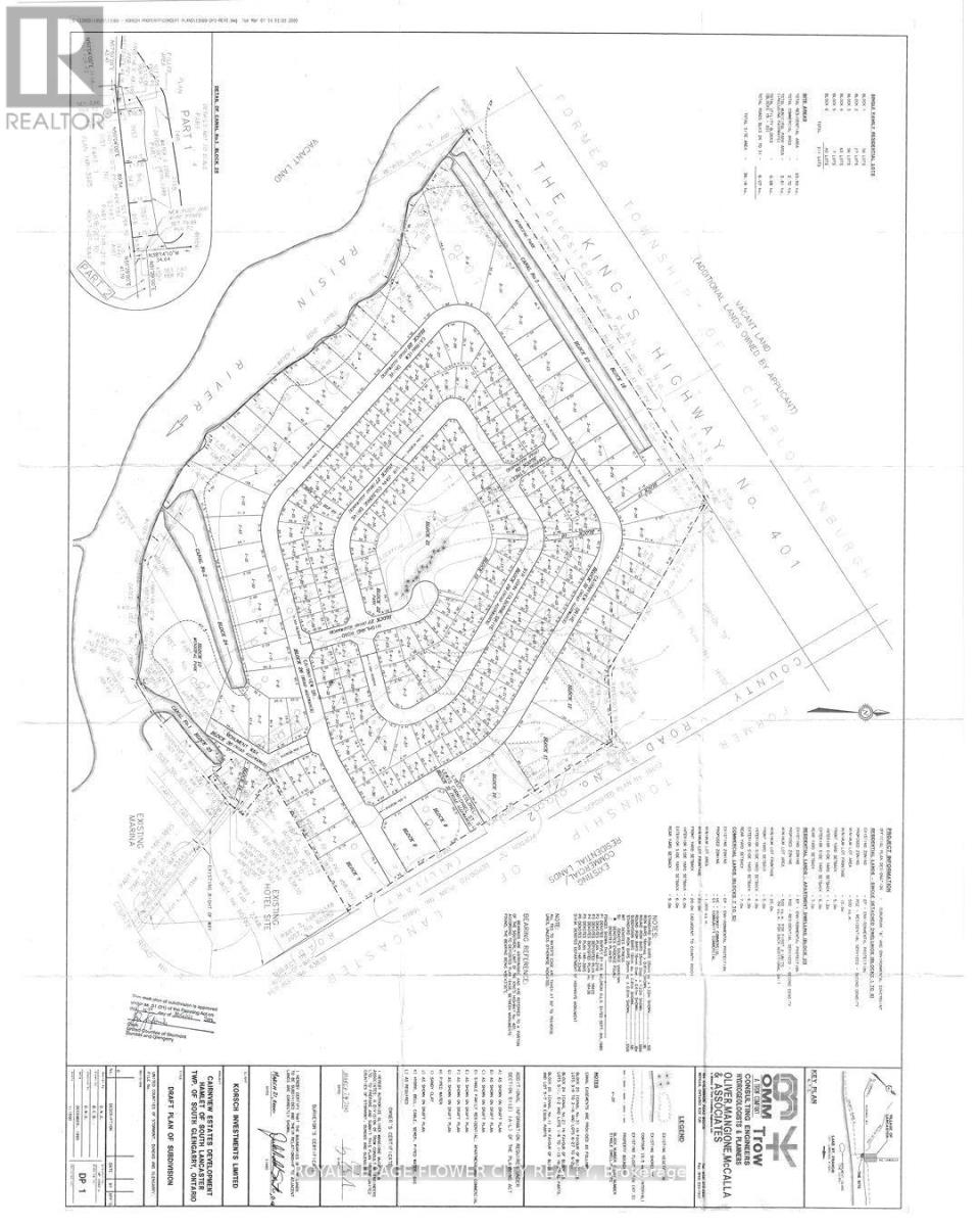
Property for sale formerly known as Cairnview Estates Development is a 68.82-acre property with an Approved Draft Plan of Subdivision located in South Lancaster, Ontario, in the Township of South Glengarry. The Draft Plan calls for 184 residential lots and 4 other blocks of land that could be commercial or institutional. 26 of the residential lots are waterfront lots backing onto the Raisin River and two private canals. From the Raison River, you have access (650meters) to the St. Lawrence River. Lancaster is located 21km from the Quebec/Ontario border and52km from Vaudreuil-Dorion. The Property has access to full services that include: municipal water, municipal sewers, electrical, and natural gas. (id:64974)
Quick Facts
- Property Type: Vacant Land
- Bedrooms: None
- Bathrooms: None
- Living Area: 69 sq ft (6.4 m²)
- Lot Size: 68.8150 acres (27.85 ha)
- Frontage: 69 ft (21 m)
Costs
- Annual Taxes: $14,000.00
Listing Provided by: ROYAL LEPAGE FLOWER CITY REALTY
Board: Toronto Regional Real Estate Board
Data provided via CREA DDF®.
Detailed Features
Lot & Land
- Lot Size: 68.8150 acres (27.85 ha)
- Frontage: 69 ft (21 m)
- Features: Irregular lot size
- Zoning: Res( Residential development Land)
Community & Neighbourhood
- Neighbourhood: 722 - Lancaster
Listing Information
Listing History
Buy/Sell/Terminated/Expired listing history for N/A LAND COUNTY RD 2, South Glengarry, Ontario, K0C1N0
Location & Neighborhood
🚗 Travel times
Neighborhood Walkability
Mortgage & Cost Calculators
Nearby Homes (Within 2km)
Similar Homes
Similar Properties
No active comparables found in this area.
No rental comparables found in this area.
Sold Comparables
Access to sold property data requires a registered and verified account with TRREB DDF integration.
Coming SoonRented Comparables
Access to rented property data requires a registered and verified account with TRREB DDF integration.
Coming Soon













