LPH03 - 56 ANNIE CRAIG DRIVE, Toronto (Mimico), Ontario, M8V0C8
MLS: W12852206 | Apartment (Condo)
Contact for Price


































Property Description
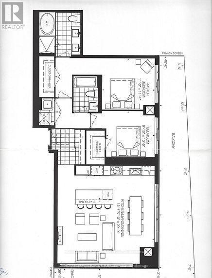
Luxurious LAGO Waterfront Condos! Stunning Lower Penthouse, Upgraded, 9'6" Smooth Ceilings, 34 Potlights, Engineering Hardwood Floors, Marble floors, Culture marble C/T with Undermount sinks in bathrooms, Kitchen includes High end Miele Appliance Pkg, Quartz C/T with High-Gloss White Cabinets & Backsplash Marble Mosaics, Floor premium paid for sky residence penthouse, Bright Open Concept Corner Suite with stunning water & city views, 1211sq.ft of living space balcony of 375sqft of Balcony includes 2 Bedrooms + 2 Full Baths. A Must See!!! huge (id:65010)
Quick Facts
- Property Type: Apartment (Condo)
- Bedrooms: 2
- Bathrooms: 2
Listing Provided by: CREA DDF® Member Brokerage
Data provided via CREA DDF®.
Detailed Features
Room Details (5 rooms)
Listing Information
Location & Neighborhood
🚗 Travel times
Neighborhood Walkability
Mortgage & Cost Calculators
Similar Properties
No active comparables found in this area.
Sold Comparables
Access to sold property data requires a registered and verified account with TRREB DDF integration.
Coming SoonRented Comparables
Access to rented property data requires a registered and verified account with TRREB DDF integration.
Coming Soon













