LOWER - 33 BRAEBURN STREET, Brighton, Ontario, K0K1H0
MLS: X12941528 | House (Freehold)
$1,800 / monthly














Property Description
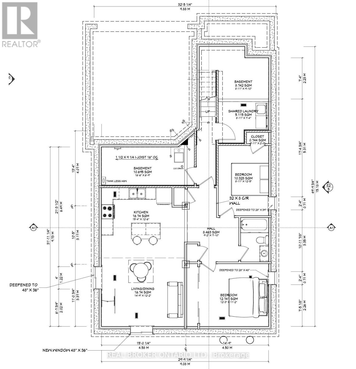
Move right into this recently completed, legal basement apartment offering modern finishes and everyday convenience. With utilities included, this bright and thoughtfully designed space features luxury vinyl plank flooring throughout and large windows that bring in plenty of natural light. The functional layout includes two well-sized bedrooms, each with its own closet, ideal for comfortable living. The contemporary kitchen is equipped with sleek quartz countertops and a built-in dishwasher, providing both style and practicality. Shared laundry is conveniently located in a common area, and one parking space is included. Tenant plays flat rate of 100/month for heat, hydro and water. (id:64974)
Quick Facts
- Property Type: House (Freehold)
- Style: Bungalow
- Bedrooms: 2 (2 above)
- Bathrooms: 1
- Ownership: Freehold
- Attached: No
- Parking: 1.0 space (Attached Garage, Garage)
Listing Provided by: REAL BROKER ONTARIO LTD.
Board: Central Lakes Association of REALTORS®
Data provided via CREA DDF®.
Detailed Features
Interior & Systems
- Heating: Forced air, Natural gas
- Cooling: Central air conditioning
- Basement: Finished, N/A
- Flooring: Vinyl
Exterior & Construction
- Style: Bungalow
- Exterior: Brick, Vinyl siding
- Foundation: Unknown
- Sewer: Sanitary sewer
- Water: Municipal water
Lot & Land
- Features: Carpet Free
Community & Neighbourhood
- Neighbourhood: Brighton
Room Details (4 rooms)
Listing Information
Listing History
MLS listing activity for LOWER - 33 BRAEBURN STREET, Brighton, Ontario, K0K1H0 — dates reflect when changes were recorded in the DDF
🚗 Travel times
Neighborhood Walkability
Mortgage & Cost Calculators
Nearby Homes ?Nearby Homes — Search CriteriaSearch Radius1 kmPrice Range±5%Match BedroomsYesMatch BathroomsYes

73 CORTLAND WAY, Brighton
House$549,900
$3,776/yr taxListing Courtesy of RE/MAX QUINTE JOHN BARRY REALTY LTD.

3 BRAEBURN STREET, Brighton
Row / Townhouse$499,900
$3,823/yr taxListing Courtesy of ROYAL HERITAGE REALTY LTD.

12 AMBROSIA WAY, Brighton
Row / Townhouse$542,000
Listing Courtesy of ROYAL LEPAGE PROALLIANCE REALTY

69 RUNDLE LANE, Brighton
Row / Townhouse$463,000
Listing Courtesy of ROYAL LEPAGE PROALLIANCE REALTY

73 RUNDLE LANE, Brighton
Row / Townhouse$486,000
Listing Courtesy of ROYAL LEPAGE PROALLIANCE REALTY

10 AMBROSIA WAY, Brighton
Row / Townhouse$508,000
Listing Courtesy of ROYAL LEPAGE PROALLIANCE REALTY

117 ROYAL GALA DRIVE, Brighton
House$663,000
Listing Courtesy of ROYAL LEPAGE PROALLIANCE REALTY

115 ROYAL GALA DRIVE, Brighton
House$596,000
Listing Courtesy of ROYAL LEPAGE PROALLIANCE REALTY

41 CORTLAND WAY, Brighton
House$774,900
$5,525/yr taxListing Courtesy of ROYAL LEPAGE FRANK REAL ESTATE

76 ROYAL GALA DRIVE, Brighton
House$749,900
$4,720/yr taxListing Courtesy of ROYAL LEPAGE PROALLIANCE REALTY

61 ROYAL GALA DRIVE, Brighton
House$600,000
$4,117/yr taxListing Courtesy of EXIT REALTY GROUP

LOT 47 LANCASTER DRIVE, Brighton
House$649,000
Listing Courtesy of ROYAL LEPAGE PROALLIANCE REALTY

LOT 48 LANCASTER DRIVE, Brighton
House$664,000
Listing Courtesy of ROYAL LEPAGE PROALLIANCE REALTY

LOT 49 LANCASTER DRIVE, Brighton
House$639,000
Listing Courtesy of ROYAL LEPAGE PROALLIANCE REALTY

667 HUFF ROAD, Brighton
House$1,395,000
$8,017/yr taxListing Courtesy of RE/MAX HALLMARK FIRST GROUP REALTY LTD.
Similar Homes ?Similar Homes — Search CriteriaSearch Radius5 kmPrice Range±5%Match Home TypeYesMatch BedroomsYes

1603B - 2360 DUNDAS STREET W, Toronto (High Park North)
Condo - Apartment$1,729/mo
Listing Courtesy of THE AGENCY

307 - 2 NEWHOLM ROAD, Toronto (Stonegate-Queensway)
Condo - Other$1,725/mo
Listing Courtesy of RE/MAX HALLMARK REALTY LTD.

1107 - 1435 CELEBRATION DRIVE, Pickering (Bay Ridges)
Condo - Apartment$1,725/mo
Listing Courtesy of RE/MAX REAL ESTATE CENTRE INC.

115 - 77 LELAND STREET, Hamilton (Ainslie Wood)
Condo - Apartment$1,725/mo
Listing Courtesy of CENTURY 21 KING'S QUAY REAL ESTATE INC.

107 - 5874 CR #19 ROAD, North Grenville
Other$1,725/mo
Listing Courtesy of REMAX BOARDWALK REALTY

1 - 105 MARY STREET E, Whitby (Downtown Whitby)
House$1,725/mo
Listing Courtesy of TRUSTWELL REALTY INC.

307 - 107 ROGERS STREET N, Waterloo
Condo - Apartment$1,725/mo
Listing Courtesy of TFN REALTY INC.

BASEMENT - 33 HAYERAFT STREET, Whitby
House$1,725/mo
Listing Courtesy of CENTURY 21 UNITED REALTY INC.

75 EAST 33RD Street Unit# LOWER, Hamilton
House$1,725/mo
Listing Courtesy of Coldwell Banker Community Professionals

605 - 90 GLEN EVEREST ROAD, Toronto (Birchcliffe-Cliffside)
Condo - Apartment$1,725/mo
Listing Courtesy of RE/MAX CONDOS PLUS CORPORATION

477 KING Street E Unit# 8, Hamilton
Apartment$1,725/mo
Listing Courtesy of Corcoran Horizon Realty

69 EAST MAIN Street Unit# 203, Welland
Apartment$1,725/mo
Listing Courtesy of Corcoran Horizon Realty

4411 - 251 JARVIS STREET, Toronto (Church-Yonge Corridor)
Condo - Apartment$1,725/mo
Listing Courtesy of WARWICK REALTY GROUP INC.

108 - 111 COSBURN AVENUE, Toronto (Danforth Village-East York)
Condo - Apartment$1,715/mo
Listing Courtesy of VALERY REAL ESTATE INC.

LOWER - 7701 CORTINA CRESCENT, Niagara Falls (Ascot)
House$1,711/mo
Listing Courtesy of RE/MAX NIAGARA REALTY LTD, BROKERAGE
Similar Properties ?Active Comparables — Search CriteriaSearch Radius2 kmPrice Range±5%Match Home TypeYesMatch BedroomsYes

1603B - 2360 DUNDAS STREET W, Toronto (High Park North)
Condo - Apartment$1,729/mo
Listing Courtesy of THE AGENCY

307 - 2 NEWHOLM ROAD, Toronto (Stonegate-Queensway)
Condo - Other$1,725/mo
Listing Courtesy of RE/MAX HALLMARK REALTY LTD.

1107 - 1435 CELEBRATION DRIVE, Pickering (Bay Ridges)
Condo - Apartment$1,725/mo
Listing Courtesy of RE/MAX REAL ESTATE CENTRE INC.

115 - 77 LELAND STREET, Hamilton (Ainslie Wood)
Condo - Apartment$1,725/mo
Listing Courtesy of CENTURY 21 KING'S QUAY REAL ESTATE INC.

107 - 5874 CR #19 ROAD, North Grenville
Other$1,725/mo
Listing Courtesy of REMAX BOARDWALK REALTY

1 - 105 MARY STREET E, Whitby (Downtown Whitby)
House$1,725/mo
Listing Courtesy of TRUSTWELL REALTY INC.

307 - 107 ROGERS STREET N, Waterloo
Condo - Apartment$1,725/mo
Listing Courtesy of TFN REALTY INC.

BASEMENT - 33 HAYERAFT STREET, Whitby
House$1,725/mo
Listing Courtesy of CENTURY 21 UNITED REALTY INC.

75 EAST 33RD Street Unit# LOWER, Hamilton
House$1,725/mo
Listing Courtesy of Coldwell Banker Community Professionals

605 - 90 GLEN EVEREST ROAD, Toronto (Birchcliffe-Cliffside)
Condo - Apartment$1,725/mo
Listing Courtesy of RE/MAX CONDOS PLUS CORPORATION

477 KING Street E Unit# 8, Hamilton
Apartment$1,725/mo
Listing Courtesy of Corcoran Horizon Realty

69 EAST MAIN Street Unit# 203, Welland
Apartment$1,725/mo
Listing Courtesy of Corcoran Horizon Realty

4411 - 251 JARVIS STREET, Toronto (Church-Yonge Corridor)
Condo - Apartment$1,725/mo
Listing Courtesy of WARWICK REALTY GROUP INC.

108 - 111 COSBURN AVENUE, Toronto (Danforth Village-East York)
Condo - Apartment$1,715/mo
Listing Courtesy of VALERY REAL ESTATE INC.

LOWER - 7701 CORTINA CRESCENT, Niagara Falls (Ascot)
House$1,711/mo
Listing Courtesy of RE/MAX NIAGARA REALTY LTD, BROKERAGE
No rental comparables found in this area.
Sold Comparables
Access to sold property data requires a registered and verified account with TRREB DDF integration.
Coming SoonRented Comparables
Access to rented property data requires a registered and verified account with TRREB DDF integration.
Coming SoonBook a Viewing
LOWER - 33 BRAEBURN STREET, Brighton, Ontario, K0K1H0
