LOWER - 114 SIMCOE STREET, Peterborough (Town Ward 3), Ontario, K9H2H4
MLS: X12803834 | Offices
$569.00 / monthly




Property Description
Prime retail space located in the heart of downtown Peterborough. Almost 400 Sqft available. Parking available. Directly across from Peterborough Square mall, Galaxy cinema, and Millennium waterfront Park. Do not miss out on this fantastic opportunity to be located in a central location, with high vibrancy and conveniently very walkable! (id:64974)
Quick Facts
- Property Type: Offices
- Bedrooms: None
- Bathrooms: None
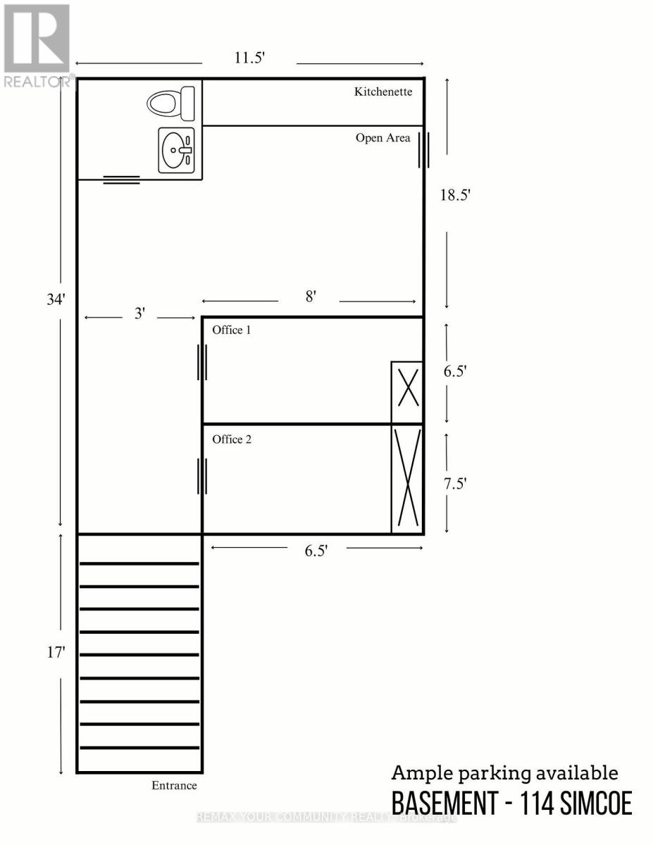
- Living Area: 391 sq ft (36.3 m²)
- Frontage: 80 ft (24.3 m)
Costs
- Annual Taxes: $426.15
Listing Provided by: REMAX YOUR COMMUNITY REALTY
Board: Toronto Regional Real Estate Board
Data provided via CREA DDF®.
Detailed Features
Interior & Systems
- Heating: Forced air, Natural gas
- Cooling: Fully air conditioned
Exterior & Construction
- Water: Municipal water
Lot & Land
- Frontage: 80 ft (24.3 m)
- Zoning: C6
Community & Neighbourhood
- Neighbourhood: Town Ward 3
Listing Information
Listing History
Buy/Sell/Terminated/Expired listing history for LOWER - 114 SIMCOE STREET, Peterborough (Town Ward 3), Ontario, K9H2H4
Location & Neighborhood
🚗 Travel times
Neighborhood Walkability
Mortgage & Cost Calculators
Nearby Homes (Within 2km)
Similar Homes
Similar Properties
Sold Comparables
Access to sold property data requires a registered and verified account with TRREB DDF integration.
Coming SoonRented Comparables
Access to rented property data requires a registered and verified account with TRREB DDF integration.
Coming Soon



















