LOT 43 WOODLAND WALK, Southwold, Ontario, N5P3T2SOLD
MLS: X12945048 | House (Freehold)
$899,900




Property Description
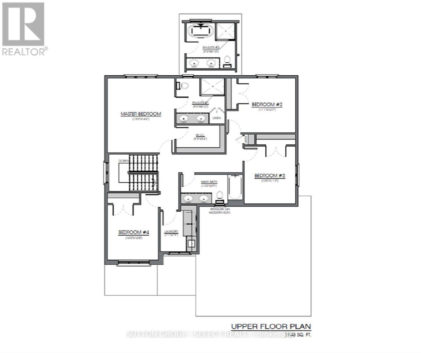
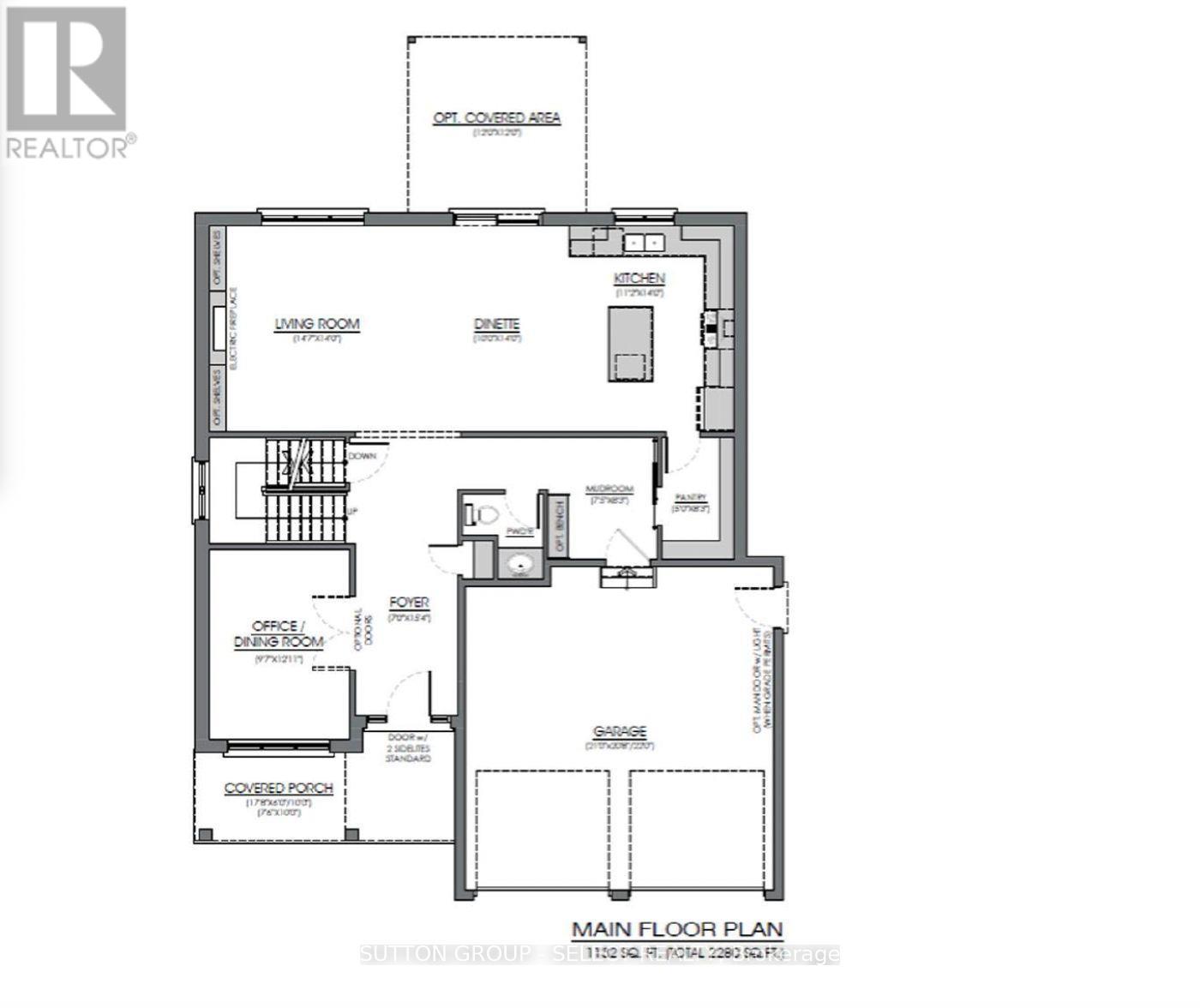
Qualifying GST/HST rebate price now just $820,700 - an incredible opportunity to own a brand new Vara Home at an exceptional value! To Be Built | Vara Homes Waterbury Model - a rare chance to create the home you've always envisioned. Brand new, fully customizable, and crafted with the quality and attention to detail Vara Homes is known for, this is your opportunity to design a space that truly reflects your style and needs. Offering nearly 2,300 sq. ft. of thoughtfully designed living space, this model features 4 spacious bedrooms, 3 bathrooms, and a versatile den-perfect as a home office, formal dining room, or cozy lounge. Because the home is yet to be built, you'll have the exciting ability to select your own finishes, from cabinetry and flooring to fixtures and countertops, bringing your dream home to life. Step into a bright, open-concept layout designed for both everyday living and effortless entertaining. The functional floor plan offers generous living spaces ideal for family gatherings and quiet nights in alike. Each bedroom is well-sized for comfort and privacy, while the primary suite serves as a luxurious retreat complete with a spa-inspired ensuite and walk-in closet. Situated in the growing community of Talbotville, this location offers the perfect balance of peaceful, small-town living with unbeatable convenience. You're just 10 minutes to Highway 401, London, and Port Stanley Beach, and only 3 minutes to the thriving city of St. Thomas. Additional lots are available, giving you even more flexibility to secure the perfect setting for your new home. Experience the craftsmanship, customization, and lifestyle that come with every Vara Homes build. (id:64974)
Quick Facts
- Property Type: House (Freehold)
- Bedrooms: 4 (4 above)
- Bathrooms: 3 (1 half)
- Ownership: Freehold
- Attached: No
- Fireplaces: 1
- Parking: 4.0 spaces (Attached Garage, Garage)
- Frontage: 54 ft (16.5 m)
Listing Provided by: SUTTON GROUP - SELECT REALTY
Board: London and St. Thomas Association of REALTORS®
Data provided via CREA DDF®.
Detailed Features
Interior & Systems
- Heating: Forced air, Natural gas
- Cooling: Central air conditioning, Ventilation system
- Basement: Unfinished, Full
- Appliances: Garage door opener remote(s)
- Security: Smoke Detectors
Exterior & Construction
- Exterior: Stone, Hardboard
- Foundation: Poured Concrete
- Sewer: Sanitary sewer
- Water: Municipal water
Lot & Land
- Frontage: 54 ft (16.5 m)
- Features: Irregular lot size, Sump Pump
Community & Neighbourhood
- Community: School Bus, Community Centre
- Building: Fireplace(s)
- Neighbourhood: Rural Southwold
Room Details (12 rooms)
Listing Information
Listing History
MLS listing activity for LOT 43 WOODLAND WALK, Southwold, Ontario, N5P3T2 — dates reflect when changes were recorded in the DDF
🚗 Travel times
Neighborhood Walkability
Mortgage & Cost Calculators
Nearby Homes ?Nearby Homes — Search CriteriaSearch Radius1 kmPrice Range±5%Match BedroomsYesMatch BathroomsYes

LOT 52 ROYAL CRESCENT, Southwold (Talbotville)
House$899,900
Listing Courtesy of THE REALTY FIRM INC.

95 OPTIMIST DRIVE, Southwold
House$889,000
$4,683/yr taxListing Courtesy of STREETCITY REALTY INC.

15 OPTIMIST DRIVE, Southwold
Row / Townhouse$577,900
Listing Courtesy of SUTTON GROUP - SELECT REALTY

56 OPTIMIST DRIVE, Southwold
House$1,075,000
$5,313/yr taxListing Courtesy of EXP REALTY

29 OPTIMIST DRIVE, Southwold
Row / Townhouse$586,800
Listing Courtesy of SUTTON GROUP - SELECT REALTY

5 SYCAMORE ROAD, Southwold (Talbotville)
House$1,199,000
Listing Courtesy of SUTTON GROUP - SELECT REALTY

4 SYCAMORE ROAD, Southwold (Talbotville)
House$1,549,900
$7,882/yr taxListing Courtesy of THE REALTY FIRM INC.

48 ROYAL CRESCENT, Southwold
House$1,690,000
$7,773/yr taxListing Courtesy of SUTTON GROUP - SELECT REALTY

52 ROYAL CRESCENT, Southwold (Talbotville)
House$1,359,000
Listing Courtesy of THE REALTY FIRM INC.

39876 SHADY LANE CRESCENT, Southwold (Talbotville)
House$975,000
$5,570/yr taxListing Courtesy of RE/MAX CENTRE CITY REALTY INC.

10308 GREENPARK ROAD, Southwold (Talbotville)
House$999,000
$5,843/yr taxListing Courtesy of THE REALTY FIRM INC.

16 - 175 GLENGARIFF DRIVE, Southwold (Talbotville)
Condo - Row / Townhouse$496,250
Listing Courtesy of SUTTON GROUP PREFERRED REALTY INC.

28 - 175 GLENGARIFF DRIVE, Southwold
Row / Townhouse$555,000
Listing Courtesy of SUTTON GROUP PREFERRED REALTY INC.
Similar Homes ?Similar Homes — Search CriteriaSearch Radius5 kmPrice Range±5%Match Home TypeYesMatch BedroomsYes

LOT 52 ROYAL CRESCENT, Southwold (Talbotville)
House$899,900
Listing Courtesy of THE REALTY FIRM INC.

95 OPTIMIST DRIVE, Southwold
House$889,000
$4,683/yr taxListing Courtesy of STREETCITY REALTY INC.

27 GLENWOOD STREET, St. Thomas
House$919,000
$6,440/yr taxListing Courtesy of REAL BROKER ONTARIO LTD

303 - 55 MAIN STREET, St. Catharines (Port Dalhousie)
Condo - Apartment$899,900
$5,023/yr taxListing Courtesy of ROYAL LEPAGE NRC REALTY

401 MAIN Street, Port Dover
House$899,900
$7,202/yr taxListing Courtesy of RE/MAX Erie Shores Realty Inc. Brokerage

752 GORHAM ROAD, Fort Erie (Ridgeway)
House$899,900
Listing Courtesy of REVEL Realty Inc., Brokerage

5801 BOSSERT ROAD, Niagara Falls (Lyons Creek)
House$899,900
$5,700/yr taxListing Courtesy of ROYAL LEPAGE INTEGRITY REALTY

2380 VIRGINIA DRIVE, Ottawa
Row / Townhouse$899,900
$7,329/yr taxListing Courtesy of RE/MAX HALLMARK PILON GROUP REALTY

430 PEARL Street Unit# 410, Burlington
Condo - Apartment$899,900
$3,945/yr taxListing Courtesy of RE/MAX Escarpment Realty Inc.

568 BLACK STREET, Centre Wellington (Fergus)
House$899,900
$2,908/yr taxListing Courtesy of Keller Williams Home Group Realty

247 BROCK STREET Unit# 201, Amherstburg
Condo - Apartment$899,900
Listing Courtesy of REMAX CAPITAL DIAMOND REALTY

317 - 9909 PINE VALLEY DRIVE, Vaughan (Vellore Village)
Condo - Apartment$899,900
$4,000/yr taxListing Courtesy of RE/MAX EXPERTS

26 LUROSA CRESCENT, Whitby (Taunton North)
House$899,900
$7,194/yr taxListing Courtesy of RE/MAX CROSSROADS REALTY INC.

731 PLOUGHMAN PLACE, Ottawa
House$899,900
Listing Courtesy of EXP REALTY

105 RIVERWALK PLACE, Guelph/Eramosa (Rockwood)
Row / Townhouse$899,900
$5,292/yr taxListing Courtesy of Royal LePage Royal City Realty
Similar Properties ?Active Comparables — Search CriteriaSearch Radius2 kmPrice Range±5%Match Home TypeYesMatch BedroomsYes
No rental comparables found in this area.
Sold Comparables
Access to sold property data requires a registered and verified account with TRREB DDF integration.
Coming SoonRented Comparables
Access to rented property data requires a registered and verified account with TRREB DDF integration.
Coming SoonBook a Viewing
LOT 43 WOODLAND WALK, Southwold, Ontario, N5P3T2
