LOT 27 DEMELO COURT, Southwest Middlesex (Glencoe), Ontario, N0L1M0
MLS: X12952236 | House (Freehold)
$729,900




Property Description
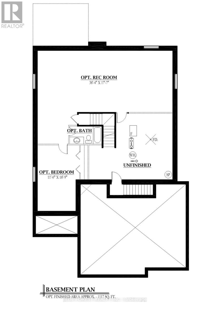
Discover this beautifully designed spacious 3 bedroom bungalow on a premium pie-shaped lot, offering extra outdoor space and a layout built for comfort, convenience and SERENITY! The open concept layout offers a bright, spacious atmosphere ideal for everyday living and entertaining. The kitchen serves as the heart of the home with granite countertops, pendant lighting over the large island with seating perfect for casual dining, and ample cupboard space with soft-closing hardware. Potlights galore! Main floor laundry convenience! Many upgrades come standard, such as an upgraded trim package with modern black hardware that adds a contemporary touch throughout the home. Other features include hardwood flooring and tile throughout the main living areas, creating a clean and modern feel with low maintenance durability. One of the standout features is the rare triple car garage, providing exceptional space for vehicles, storage, recreational equipment, or even a workshop - perfect for homeowners who value both functionality and flexibility. To truly appreciate the craftsmanship and quality here and for the opportunity to experience the layout and finishes firsthand, a model home of this design is available to view! Ask for more details. Other lots available. Glencoe offers everyday amenities such as groceries, restaurants, the Glencoe Arena, and daily Via Rail service. Conveniently located near Hwy 401, Newbury, Four Counties Hospital, and Wardsville Golf Club, and just 35 minutes to London or Chatham. (id:64974)
Quick Facts
- Property Type: House (Freehold)
- Style: Bungalow
- Bedrooms: 3 (3 above)
- Bathrooms: 2
- Ownership: Freehold
- Attached: No
- Fireplaces: Yes
- Parking: 6.0 spaces (Attached Garage, Garage)
- Frontage: 53 ft (16 m)
Listing Provided by: BLUE FOREST REALTY INC.
Board: London and St. Thomas Association of REALTORS®
Data provided via CREA DDF®.
Detailed Features
Interior & Systems
- Heating: Forced air, Natural gas
- Cooling: Central air conditioning
- Basement: Unfinished, Full, Separate entrance, N/A, N/A
Exterior & Construction
- Style: Bungalow
- Exterior: Brick, Vinyl siding
- Foundation: Poured Concrete
- Sewer: Sanitary sewer
- Water: Municipal water
Lot & Land
- Frontage: 53 ft (16 m)
- Features: Sump Pump, In-Law Suite
Community & Neighbourhood
- Building: Fireplace(s)
- Neighbourhood: Glencoe
Room Details (6 rooms)
Listing Information
Listing History
MLS listing activity for LOT 27 DEMELO COURT, Southwest Middlesex (Glencoe), Ontario, N0L1M0 — dates reflect when changes were recorded in the DDF
🚗 Travel times
Neighborhood Walkability
Mortgage & Cost Calculators
Nearby Homes ?Nearby Homes — Search CriteriaSearch Radius1 kmPrice Range±5%Match BedroomsYesMatch BathroomsYes

LOT 25 DEMELO COURT, Southwest Middlesex (Glencoe)
House$729,900
Listing Courtesy of BLUE FOREST REALTY INC.

LOT 22 DEMELO COURT, Southwest Middlesex (Glencoe)
House$649,900
Listing Courtesy of BLUE FOREST REALTY INC.

LOT 14 MARCUS AVENUE, Southwest Middlesex (Glencoe)
House$649,700
Listing Courtesy of EXP REALTY

LOT 48 STELLA AVENUE, Southwest Middlesex (Glencoe)
House$537,500
Listing Courtesy of BLUE FOREST REALTY INC.

205 SYMES STREET, Southwest Middlesex (Glencoe)
House$574,900
$2,714/yr taxListing Courtesy of PLATINUM KEY REALTY INC.

203 MCKELLAR STREET, Southwest Middlesex (Glencoe)
House$379,000
$1,640/yr taxListing Courtesy of EXP REALTY

283 ELIZABETH STREET, Southwest Middlesex (Glencoe)
House$649,900
Listing Courtesy of THE REALTY FIRM INC.

285 ELIZABETH STREET, Southwest Middlesex (Glencoe)
House$779,900
Listing Courtesy of THE REALTY FIRM INC.

291 KING STREET, Southwest Middlesex (Glencoe)
House$699,900
Listing Courtesy of THE REALTY FIRM INC.

190 ELIZABETH STREET, Southwest Middlesex (Glencoe)
House$524,999
$2,667/yr taxListing Courtesy of BLUE FOREST REALTY INC.

289 KING STREET, Southwest Middlesex (Glencoe)
House$649,900
Listing Courtesy of THE REALTY FIRM INC.

190 KING STREET, Southwest Middlesex (Glencoe)
House$414,900
$1,607/yr taxListing Courtesy of STREETCITY REALTY INC.

191 SOUTH STREET, Southwest Middlesex (Glencoe)
House$599,000
$4,103/yr taxListing Courtesy of ROYAL LEPAGE TRILAND REALTY
Similar Homes ?Similar Homes — Search CriteriaSearch Radius5 kmPrice Range±5%Match Home TypeYesMatch BedroomsYes

291 KING STREET, Southwest Middlesex (Glencoe)
House$699,900
Listing Courtesy of THE REALTY FIRM INC.

401 - 66 BAY STREET S, Hamilton (Durand)
Condo - Apartment$729,900
$5,824/yr taxListing Courtesy of ROYAL LEPAGE STATE REALTY

601 - 7 STECKLEY HOUSE LANE, Richmond Hill
Condo - Row / Townhouse$729,900
Listing Courtesy of ROYAL LEPAGE TERREQUITY REALTY

2307 - 120 HOMEWOOD AVENUE, Toronto (Moss Park)
Condo - Apartment$729,900
$3,740/yr taxListing Courtesy of DEL REALTY INCORPORATED

1703 - 108 PETER STREET, Toronto (Waterfront Communities)
Condo - Apartment$729,900
$3,461/yr taxListing Courtesy of HOMELIFE LANDMARK REALTY INC.

1003 WARDMAN CRESCENT, Whitby (Williamsburg)
House$729,900
$4,700/yr taxListing Courtesy of EASY LIST REALTY LTD.

1225 RIVERSIDE DRIVE West Unit# 1103, Windsor
Condo - Apartment$729,900
Listing Courtesy of LC PLATINUM REALTY INC.

192 GRANDVIEW DRIVE, Alnwick/Haldimand
House$729,900
$3,819/yr taxListing Courtesy of KELLER WILLIAMS ENERGY REAL ESTATE

805 - 1880 GORDON STREET, Guelph (Pineridge/Westminster Woods)
Condo - Apartment$729,900
$6,583/yr taxListing Courtesy of eXp Realty

185 ROBINSON Street Unit# 203, Oakville
Condo - Apartment$729,900
$3,714/yr taxListing Courtesy of Keller Williams Edge Realty

30 REGATTA WAY, Central Elgin
House$729,900
$5,017/yr taxListing Courtesy of ELGIN REALTY LIMITED

114 FROST COURT, Milton (FO Ford)
Row / Townhouse$729,900
$3,139/yr taxListing Courtesy of iCloud Realty Ltd.

165 PIKE CREEK Drive, Cayuga
House$729,900
$1/yr taxListing Courtesy of RE/MAX Escarpment Realty Inc.

163 PIKE CREEK Drive, Cayuga
House$729,900
$1/yr taxListing Courtesy of RE/MAX Escarpment Realty Inc.

1411 - 292 VERDALE CROSSING, Markham (Unionville)
Condo - Apartment$729,900
$2,927/yr taxListing Courtesy of EXP REALTY
Similar Properties ?Active Comparables — Search CriteriaSearch Radius2 kmPrice Range±5%Match Home TypeYesMatch BedroomsYes
No rental comparables found in this area.
Sold Comparables
Access to sold property data requires a registered and verified account with TRREB DDF integration.
Coming SoonRented Comparables
Access to rented property data requires a registered and verified account with TRREB DDF integration.
Coming SoonBook a Viewing
LOT 27 DEMELO COURT, Southwest Middlesex (Glencoe), Ontario, N0L1M0
