LOT 17 QUEENS LINE, West Elgin (Rodney), Ontario, N0L2C0
MLS: X12834148 | House (Freehold)
$599,000




Property Description
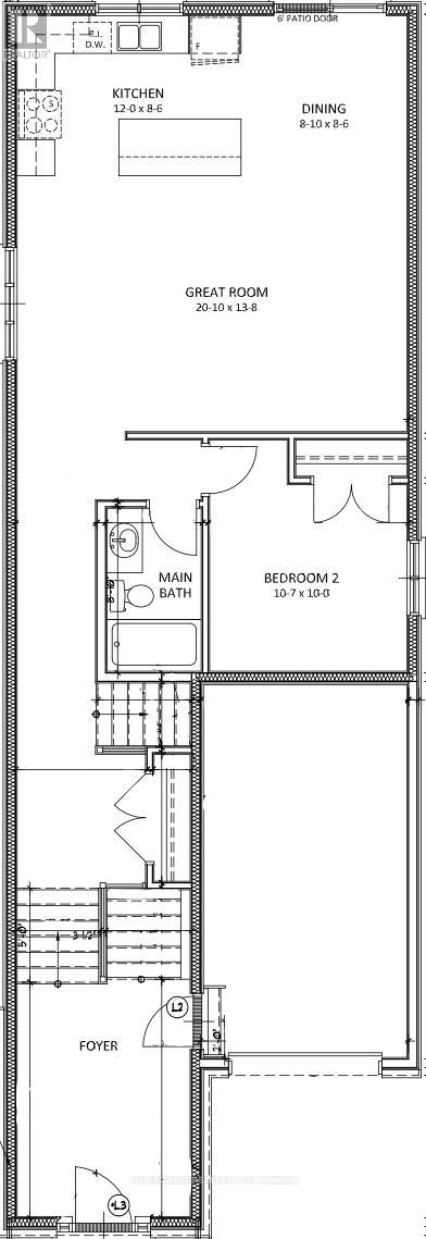
Welcome to "THE GARNET," a stunning raised ranch crafted by Liersche Custom Homes offering 2,118sqft. of finished living space. Be greeted when you walk inside the front foyer by the open-concept main floor features a stylish kitchen with an island overlooking a bright dining and great room. Enjoy a main floor 4pc bathroom plus a versatile bedroom. Upstairs holds the private primary suite with an ensuite and a walk-in closet. The finished basement adds a spacious rec room, two more bedrooms, a full bath, and a dedicated laundry. Complete with an attached garage and a welcoming front porch, this home is the perfect mix of style, comfort, and function, ready for you to move in! TO BE BUILT! Other lots and designs are available. Price based on base lot, premiums extra. (id:64974)
Quick Facts
- Property Type: House (Freehold)
- Style: Raised bungalow
- Bedrooms: 4 (2 above, 2 below)
- Bathrooms: 3
- Ownership: Freehold
- Attached: No
- Parking: 3 spaces (Garage)
- Frontage: 41 ft (12.5 m)
Listing Provided by: BLUE FOREST REALTY INC.
Board: London and St. Thomas Association of REALTORS®
Data provided via CREA DDF®.
Detailed Features
Interior & Systems
- Heating: Forced air, Natural gas
- Cooling: Central air conditioning
- Basement: Finished, Full, Walk out
Exterior & Construction
- Style: Raised bungalow
- Exterior: Brick, Vinyl siding
- Foundation: Poured Concrete
- Sewer: Sanitary sewer
- Water: Municipal water
Lot & Land
- Frontage: 41 ft (12.5 m)
- Features: Sump Pump
Community & Neighbourhood
- Neighbourhood: Rodney
Listing Information
Listing History
Buy/Sell/Terminated/Expired listing history for LOT 17 QUEENS LINE, West Elgin (Rodney), Ontario, N0L2C0
Location & Neighborhood
🚗 Travel times
Neighborhood Walkability
Mortgage & Cost Calculators
Nearby Homes (Within 2km)
Similar Homes
Similar Properties
No rental comparables found in this area.
Sold Comparables
Access to sold property data requires a registered and verified account with TRREB DDF integration.
Coming SoonRented Comparables
Access to rented property data requires a registered and verified account with TRREB DDF integration.
Coming Soon

















