LOT 1 TENTH STREET, LaSalle, Ontario, N8N1M2
MLS: 26007176 | House (Freehold)
$1,300,000















Property Description
Multi-Generational Living | Net Zero Ready Solar Optional | Income Potential. Experience modern luxury in the heart of LaSalle with approx. 3,500 sq.ft. Living space this home is designed for today’s evolving families. Built with premium ICF construction, this property delivers superior soundproofing, durability, exceptional energy efficiency—offering lower utility costs for long-term value. Featuring 6 bedrooms, 4 full baths, 3 kitchens,3 laundry, 2 car garage. This home is perfectly configured for multi-family living with privacy. The innovative 3-in-1 layout includes a main floor 1-bed suite, spacious 3-bed upper level, and a fully self-contained legal 2-bedroom ADU w/separate entrance—ideal for rental income or extended family. Bright open spaces, high ceilings, double car insulated garage. Contact Listing Agent directly for more information and promotions today!! CURRENT PRICING NOW REFLECTS THE ONTARIO GOVERNMENTS FULL **HST** REBATE (id:64974)
Quick Facts
- Property Type: House (Freehold)
- Bedrooms: 6 (4 above, 2 below)
- Bathrooms: 4
- Living Area: 3,446 sq ft (320.1 m²)
- Above Grade: 3,446 sq ft (320.1 m²)
- Ownership: Freehold
- Attached: Yes
Listing Provided by: KW SIGNATURE
Board: Windsor-Essex County Association of REALTORS®
Data provided via CREA DDF®.
Detailed Features
Interior & Systems
- Heating: Heat Pump, Heat Recovery Ventilation (HRV), Electric, Solar
- Cooling: Central air conditioning, Heat Pump
- Flooring: Cushion/Lino/Vinyl
Exterior & Construction
- Exterior: Brick, Aluminum/Vinyl
- Foundation: Concrete
Lot & Land
- Features: Double width or more driveway, Concrete Driveway, Finished Driveway, Front Driveway
- Zoning: RES
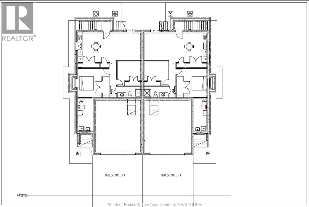
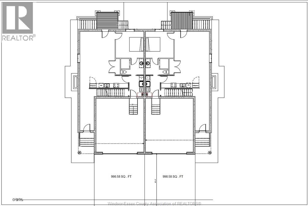
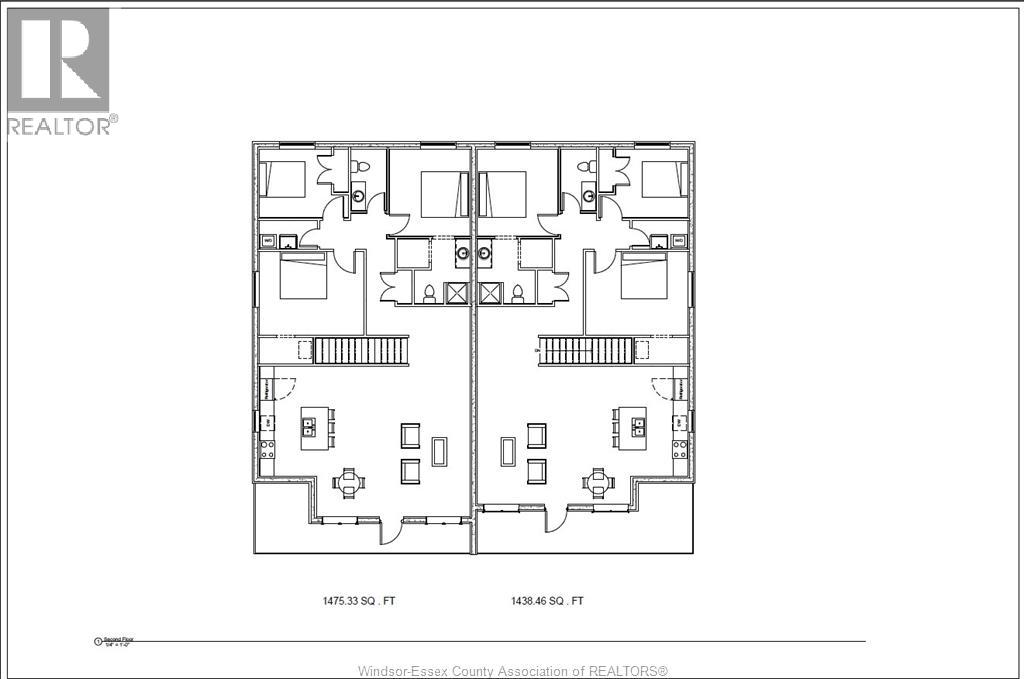
Room Details (19 rooms)
Listing Information
Listing History
MLS listing activity for LOT 1 TENTH STREET, LaSalle, Ontario, N8N1M2 — dates reflect when changes were recorded in the DDF
🚗 Travel times
Neighborhood Walkability
Mortgage & Cost Calculators
Nearby Homes ?Nearby Homes — Search CriteriaSearch Radius1 kmPrice Range±5%Match BedroomsYesMatch BathroomsYes
Similar Homes ?Similar Homes — Search CriteriaSearch Radius5 kmPrice Range±5%Match Home TypeYesMatch BedroomsYes

2194 UNICORN ROAD, Dysart et al (Dysart)
House$1,300,000
$3,756/yr taxListing Courtesy of Century 21 Granite Realty Group Inc.

70 TIMBERLINE TRAIL, Aurora (Aurora Highlands)
House$1,300,000
$7,896/yr taxListing Courtesy of RE/MAX HALLMARK REALTY LTD.

7 - 517 KINGSTON ROAD, Toronto (The Beaches)
Condo - Apartment$1,300,000
$4,894/yr taxListing Courtesy of SAGE REAL ESTATE LIMITED

35 WINTERMUTE BOULEVARD, Toronto (Steeles)
House$1,300,000
$6,440/yr taxListing Courtesy of BENCHMARK SIGNATURE REALTY INC.

188 MORRIS ISLAND DRIVE, Ottawa
House$1,300,000
$7,352/yr taxListing Courtesy of COLDWELL BANKER SARAZEN REALTY

431 BLAKE BOULEVARD, Ottawa
House$1,300,000
$7,055/yr taxListing Courtesy of RE/MAX HALLMARK REALTY GROUP

500 SELSEY DRIVE, Mississauga (Cooksville)
House$1,300,000
$7,712/yr taxListing Courtesy of ROYAL LEPAGE CREDIT VALLEY REAL ESTATE

3714 QUAYSIDE DRIVE, Severn (West Shore)
House$1,300,000
$3,714/yr taxListing Courtesy of THE AGENCY

1032 BURR ROAD, Prince Edward County (Hillier Ward)
House$1,300,000
$769/yr taxListing Courtesy of KELLER WILLIAMS ENERGY REAL ESTATE

58 DE LA SEIGNEURIE STREET, Champlain
House$1,300,000
$7,372/yr taxListing Courtesy of EXIT REALTY MATRIX

411 NIAGARA BOULEVARD, Fort Erie (Central)
House$1,300,000
$5,965/yr taxListing Courtesy of ROYAL LEPAGE REAL ESTATE SERVICES LTD.

475 SOUTH PINE VIEW RIDGE LANE, Tudor & Cashel
House$1,300,000
$3,800/yr taxListing Courtesy of CENTURY 21 LANTHORN REAL ESTATE LTD.

17 - 19 WEST ST N STREET, Kawartha Lakes (Fenelon Falls)
Condo - Row / Townhouse$1,300,000
$5,143/yr taxListing Courtesy of SOTHEBY'S INTERNATIONAL REALTY CANADA

315 EARL STREET, Kingston (Central City East)
House$1,300,000
$8,752/yr taxListing Courtesy of RE/MAX RISE EXECUTIVES, BROKERAGE

124 ALFRED PATERSON DRIVE, Markham (Greensborough)
House$1,300,000
$5,132/yr taxListing Courtesy of ROYAL LEPAGE VISION REALTY
Similar Properties ?Active Comparables — Search CriteriaSearch Radius2 kmPrice Range±5%Match Home TypeYesMatch BedroomsYes
No active comparables found in this area.
No rental comparables found in this area.
Sold Comparables
Access to sold property data requires a registered and verified account with TRREB DDF integration.
Coming SoonRented Comparables
Access to rented property data requires a registered and verified account with TRREB DDF integration.
Coming SoonBook a Viewing
LOT 1 TENTH STREET, LaSalle, Ontario, N8N1M2


