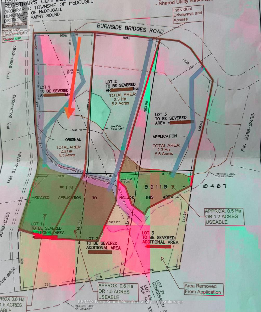
LOT 1 BURNSIDE BRIDGE ROAD, McDougall, Ontario, P2A2W9
MLS: X12974500 | Vacant Land
$174,900



















Property Description
Stunning 6.3 acre building lot with 320 feet frontage on the outskirts of Parry Sound in the Township of McDougall. Hydro at the lot line. Located in one of the most desirable areas for residential rural homes Close to Mill lake/Mountain Basin/Portage Lake. A year-round maintained municipal road. A full lush forest for great privacy. Hydro at the road.Just minutes away from the town of Parry Sound with schools, College, shopping, theatre of the arts and hospital. Enjoy all season activities in the area. Go boating at many area lakes and Georgian Bay. ATVing, snowmobiling, hiking, ice fishing. Live rural yet be close to all necessities. Live work and play in cottage country. Click on the media arrow for video. Hst in addition to price.Taxes have not been assessed at the time of listing. This is a newly severed lot. (id:64974)
Quick Facts
- Property Type: Vacant Land
- Bedrooms: None
- Bathrooms: 0
- Frontage: 328 ft (100 m)
Listing Provided by: RE/MAX Parry Sound Muskoka Realty Ltd
Board: OnePoint Association of REALTORS®
Data provided via CREA DDF®.
Detailed Features
Interior & Systems
- Utilities: Electricity
Lot & Land
- Frontage: 328 ft (100 m)
Community & Neighbourhood
- Neighbourhood: McDougall
Listing Information
Listing History
MLS listing activity for LOT 1 BURNSIDE BRIDGE ROAD, McDougall, Ontario, P2A2W9 — dates reflect when changes were recorded in the DDF
🚗 Travel times
Neighborhood Walkability
Mortgage & Cost Calculators
Nearby Homes ?Nearby Homes — Search CriteriaSearch Radius1 kmPrice Range±5%Match BedroomsYesMatch BathroomsYes

LOT 2 BURNSIDE BRIDGE ROAD, McDougall
Vacant Land$174,900
Listing Courtesy of RE/MAX Parry Sound Muskoka Realty Ltd

0 MILL LAKE TRAIL, McDougall
Vacant Land$225,000
$281/yr taxListing Courtesy of Royal LePage Team Advantage Realty

LT 57 BROSTEAD DRIVE, McDougall
Vacant Land$725,000
$847/yr taxListing Courtesy of Royal LePage Team Advantage Realty
Similar Homes ?Similar Homes — Search CriteriaSearch Radius5 kmPrice Range±5%Match Home TypeYesMatch BedroomsYes

LOT 3 BURNSIDE BRIDGE ROAD, McDougall
Vacant Land$174,900
Listing Courtesy of RE/MAX Parry Sound Muskoka Realty Ltd

LOT 2 BURNSIDE BRIDGE ROAD, McDougall
Vacant Land$174,900
Listing Courtesy of RE/MAX Parry Sound Muskoka Realty Ltd

17 OAKRIDGE ROAD N, McDougall
Vacant Land$182,000
$216/yr taxListing Courtesy of RE/MAX Parry Sound Muskoka Realty Ltd

3555 PAUL CRESCENT, Plympton-Wyoming
No Building$174,900
Listing Courtesy of Coldwell Banker Southwest Realty

314 MARSHALL AVENUE, Welland (Broadway)
Vacant Land$174,900
$3,385/yr taxListing Courtesy of RE/MAX ESCARPMENT REALTY INC., BROKERAGE

0 COOKS ROAD, Greater Napanee (Greater Napanee)
Vacant Land$174,900
$653/yr taxListing Courtesy of MCCAFFREY REALTY INC., BROKERAGE

3551 PAUL CRESCENT, Plympton-Wyoming
No Building$174,900
Listing Courtesy of Coldwell Banker Southwest Realty

38 LASALLE TRAIL, Tiny
Vacant Land$174,900
$389/yr taxListing Courtesy of RE/MAX HALLMARK PEGGY HILL GROUP REALTY

LOT 34 LEITCH STREET, Dutton/Dunwich (Dutton)
Vacant Land$174,900
$968/yr taxListing Courtesy of CENTURY 21 FIRST CANADIAN CORP

314 MARSHALL Avenue, Welland
Vacant Land$174,900
Listing Courtesy of RE/MAX Escarpment Realty Inc.

00 LIBBY, North Grenville
Vacant Land$174,900
$2,350/yr taxListing Courtesy of ROYAL LEPAGE TEAM REALTY

. South of East Line RD, Thessalon
Vacant Land$175,000
$273/yr taxListing Courtesy of Exit Realty True North

124 CARDWELL LAKE ROAD, Huntsville (Stisted)
Vacant Land$175,000
$476/yr taxListing Courtesy of RE/MAX Professionals North

00 BUTTERMILK FALLS ROAD, Greater Napanee (Greater Napanee)
Vacant Land$175,000
$565/yr taxListing Courtesy of EXIT REALTY ACCELERATION REAL ESTATE, BROKERAGE

LOT 17 GRANDY ROAD, Kawartha Lakes (Bexley)
Vacant Land$175,000
$365/yr taxListing Courtesy of RE/MAX JAZZ INC.
Similar Properties ?Active Comparables — Search CriteriaSearch Radius2 kmPrice Range±5%Match Home TypeYesMatch BedroomsYes

LOT 3 BURNSIDE BRIDGE ROAD, McDougall
Vacant Land$174,900
Listing Courtesy of RE/MAX Parry Sound Muskoka Realty Ltd

LOT 2 BURNSIDE BRIDGE ROAD, McDougall
Vacant Land$174,900
Listing Courtesy of RE/MAX Parry Sound Muskoka Realty Ltd
No rental comparables found in this area.
Sold Comparables
Access to sold property data requires a registered and verified account with TRREB DDF integration.
Coming SoonRented Comparables
Access to rented property data requires a registered and verified account with TRREB DDF integration.
Coming SoonBook a Viewing
LOT 1 BURNSIDE BRIDGE ROAD, McDougall, Ontario, P2A2W9
