C - 52 STANLEY TERRACE, Toronto (Niagara), Ontario, M6J2R4
MLS: C12841286 | House (Freehold)
$1,795.00 / monthly














Property Description
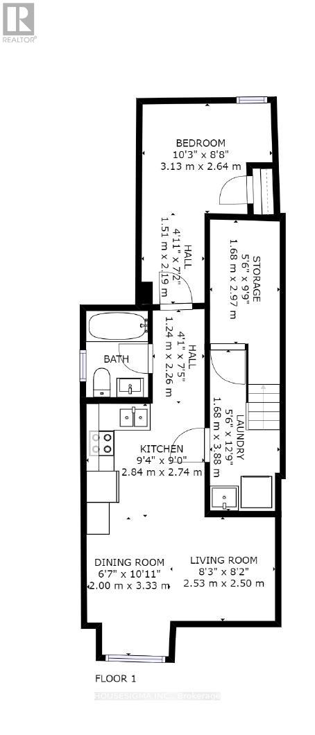
Furnished Victorian semi in an impeccable location, facing a park. Don't miss this gorgeously renovated 1-bedroom basement in King West. The bedroom flooring has been newly replaced and painted. Quietly nestled across from a park and just a 15-minute walk to the lake. Bright, open-concept layout with multiple windows, pot lights, laminate flooring, and stainless steel appliances. Lowest ceiling point just over 7 ft. Minutes to restaurants, shops, and parks. Heat, water, and high speed internet included. Lease terms under one year available. (id:64974)
Quick Facts
- Property Type: House (Freehold)
- Bedrooms: 1 (1 above)
- Bathrooms: 1
- Ownership: Freehold
- Attached: Yes
Listing Provided by: HOUSESIGMA INC.
Board: Toronto Regional Real Estate Board
Data provided via CREA DDF®.
Detailed Features
Interior & Systems
- Heating: Forced air, Natural gas
- Cooling: Central air conditioning
- Basement: Finished, N/A
- Utilities: Sewer, Cable
Exterior & Construction
- Exterior: Brick
- Foundation: Concrete
- Sewer: Sanitary sewer
- Water: Municipal water
Lot & Land
- Features: Carpet Free
Community & Neighbourhood
- Neighbourhood: Niagara
Listing Information
Listing History
Buy/Sell/Terminated/Expired listing history for C - 52 STANLEY TERRACE, Toronto (Niagara), Ontario, M6J2R4
Location & Neighborhood
🚗 Travel times
Neighborhood Walkability
Mortgage & Cost Calculators
Nearby Homes (Within 2km)
Similar Homes
Similar Properties
Sold Comparables
Access to sold property data requires a registered and verified account with TRREB DDF integration.
Coming SoonRented Comparables
Access to rented property data requires a registered and verified account with TRREB DDF integration.
Coming Soon
































