C - 1771 LAMOUREUX DRIVE, Ottawa, Ontario, K1E2N5
MLS: X12871870 | Townhouse (Condo)
$399,900

































Property Description
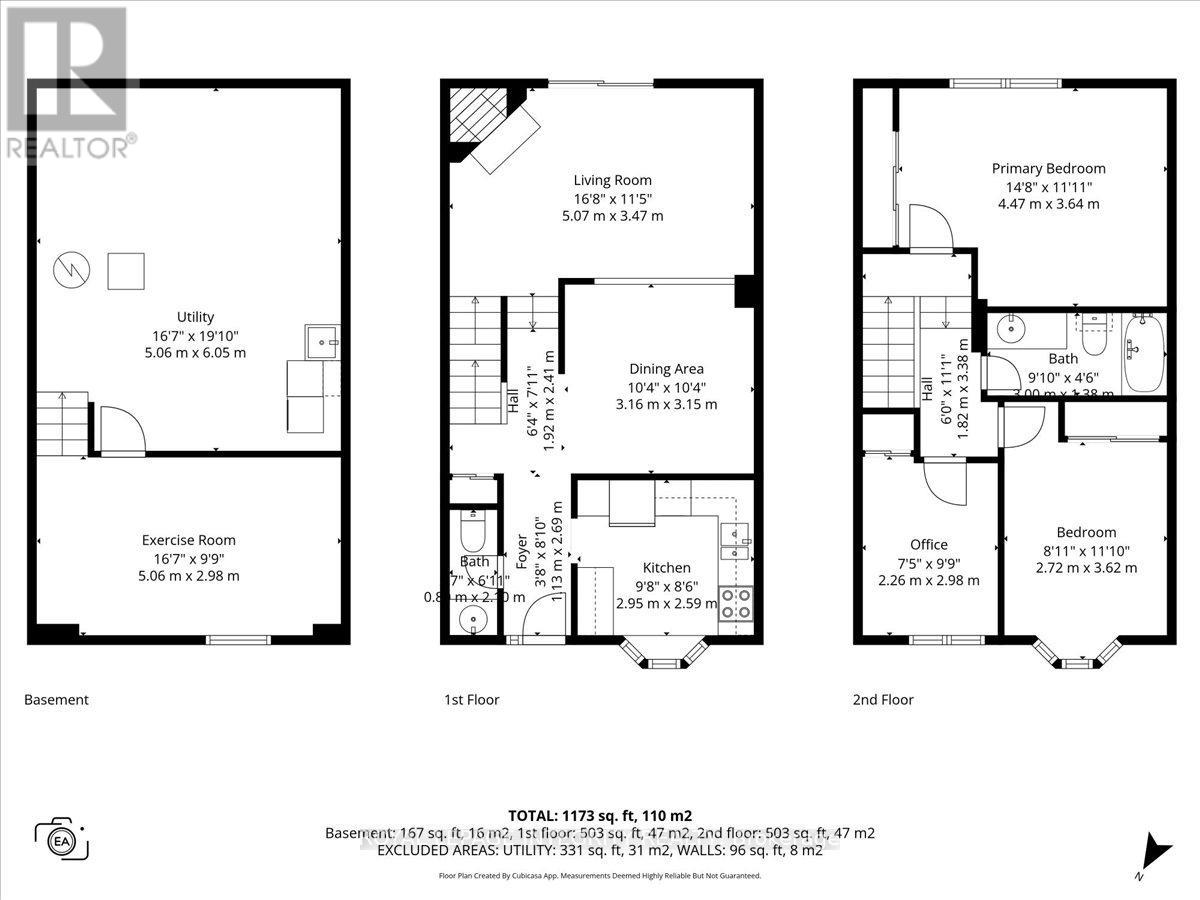
Welcome to 1771C Lamoureux Drive in Orléans, a move-in ready condo townhome ideally located close to everything you need! This well-maintained 3 bedroom, 2 bathroom home offers a functional layout, generous living spaces, and a private backyard setting that's hard to find. Step inside to a welcoming main level thoughtfully designed for comfortable everyday living. The bright kitchen features ample counter space, well-kept white cabinetry with updated hardware, a charming bay window that adds character, and great amount of storage. Just beyond, the dedicated dining area offers ample space for hosting dinners and entertaining guests. The spacious living room impresses with soaring ceilings, a cozy wood-burning fireplace, and large patio doors that flood the space with natural light while providing direct access to the private backyard with large deck, surrounded by mature trees with no rear neighbours. Upstairs, you'll find a generously sized primary bedroom with wall-to-wall closet space, along with two additional bedrooms and a full bathroom with tub/shower combination. The finished lower level adds valuable extra living space with a comfortable family room perfect for movie nights, a play area, or home gym, along with a large utility room featuring laundry and plenty of storage. Ideally situated within excellent school districts and walking distance to shopping, restaurants, parks, and public transit, while just minutes to the highway for an easy commute, this charming home blends everyday convenience with the warmth of an established community. Recent updates include a new furnace & air conditioning in 2023 and a new washer in 2021 - fantastic opportunity for first-time buyers, downsizers, or investors alike! (id:64974)
Quick Facts
- Property Type: Townhouse (Condo)
- Bedrooms: 3 (3 above)
- Bathrooms: 2 (1 half)
- Ownership: Condo/Strata
- Attached: Yes
- Fireplaces: 1
- Parking: 1 space (No Garage)
Costs
- Annual Taxes: $2,574.50 (2025)
- Condo/HOA Fee: $757.10 / monthly
- Corp: CMG
- Includes: Insurance
Listing Provided by: ROYAL LEPAGE INTEGRITY REALTY
Board: Ottawa Real Estate Board
Data provided via CREA DDF®.
Detailed Features
Interior & Systems
- Heating: Forced air, Natural gas
- Cooling: Central air conditioning
- Basement: Finished, Full
- Appliances: Washer, Refrigerator, Dishwasher, Stove, Dryer, Window Coverings
Exterior & Construction
- Exterior: Brick, Vinyl siding
Community & Neighbourhood
- Community: Pets Allowed With Restrictions
- Neighbourhood: 1104 - Queenswood Heights South
Room Details (11 rooms)
Listing Information
Listing History
Buy/Sell/Terminated/Expired listing history for C - 1771 LAMOUREUX DRIVE, Ottawa, Ontario, K1E2N5
Location & Neighborhood
🚗 Travel times
Neighborhood Walkability
Mortgage & Cost Calculators
Nearby Homes (Within 2km)
Similar Homes
Similar Properties
No rental comparables found in this area.
Sold Comparables
Access to sold property data requires a registered and verified account with TRREB DDF integration.
Coming SoonRented Comparables
Access to rented property data requires a registered and verified account with TRREB DDF integration.
Coming Soon

























