B500 - 1376 BANK STREET, Ottawa, Ontario, K1H7Y3
MLS: X12790926 | Offices
$2,300.00 / monthly











Property Description
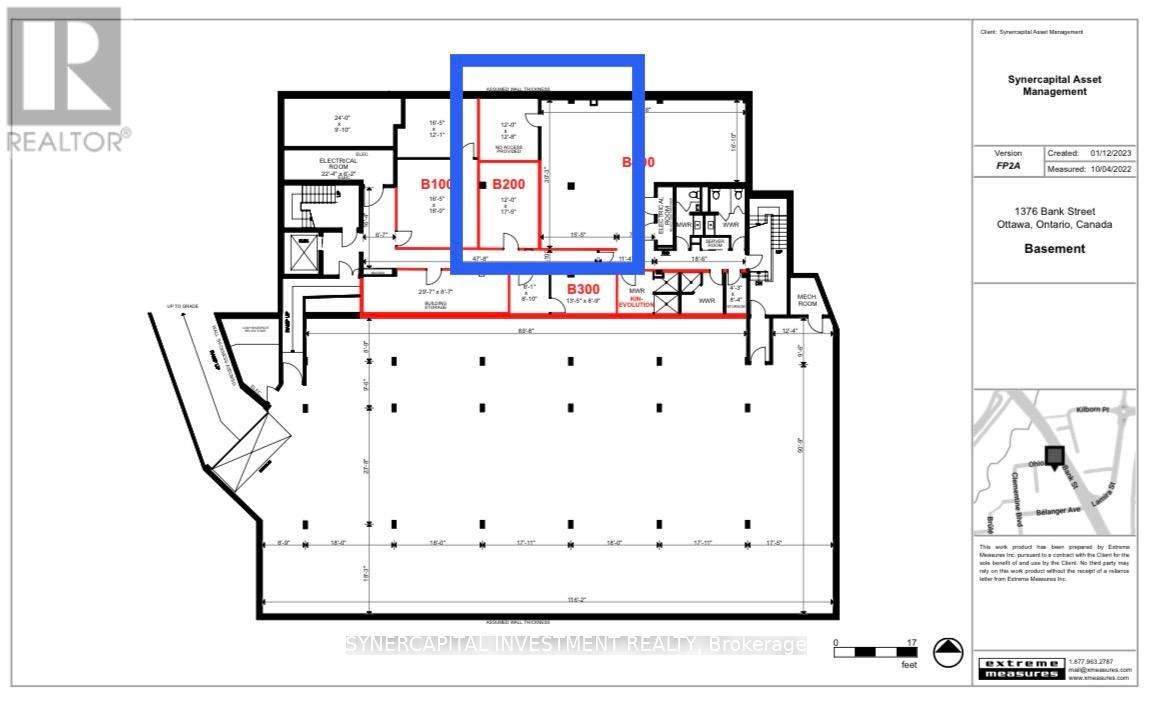
Approx 900 rentable square feet of turn-key office space in basement of well-managed office building! Currently divided into 3 large rooms, and can be divided further. Landlord can provide/organize desired fit-up at cost, pro-rated over the lease term! Space is currently used as physiotherapy/osteopathy/RMT wellness practitioners but has wide variety of applications.See marked-up floorplans in tandem with the following description: the proposed new space crops some of the (current) B400 open floor plan and closes it off for owner personal use; B200 is absorbed, and doors opened between spaces as tenant requires. There is some flexibility re: placement of walls; possible inclusion of all or some gym equipment in the rental. Equipment is not for sale unless tenant is leasing space. All utilities and operating expenses included in the rent - fully Gross Lease! Escalations of $50/mo/year. Excellent location close to 417, Riverside Drive,Bank Street, and Billings Bridge shopping plaza. Building is home to professional tenants such as law offices, mental wellness practitioners, not-for-profit, technology, etc. Video walk through is available upon request. (id:64974)
Quick Facts
- Property Type: Offices
- Bedrooms: None
- Bathrooms: None
- Living Area: 895 sq ft (83.1 m²)
- Frontage: 142 ft (43.3 m)
Listing Provided by: SYNERCAPITAL INVESTMENT REALTY
Board: Ottawa Real Estate Board
Data provided via CREA DDF®.
Detailed Features
Interior & Systems
- Heating: Baseboard heaters
- Cooling: Fully air conditioned
Exterior & Construction
- Water: Municipal water
Lot & Land
- Frontage: 142 ft (43.3 m)
- Features: Elevator
- Zoning: R5S
Community & Neighbourhood
- Neighbourhood: 4601 - Billings Bridge
Listing Information
Listing History
Buy/Sell/Terminated/Expired listing history for B500 - 1376 BANK STREET, Ottawa, Ontario, K1H7Y3
Location & Neighborhood
🚗 Travel times
Neighborhood Walkability
Mortgage & Cost Calculators
Nearby Homes (Within 2km)
Similar Homes
Similar Properties
Sold Comparables
Access to sold property data requires a registered and verified account with TRREB DDF integration.
Coming SoonRented Comparables
Access to rented property data requires a registered and verified account with TRREB DDF integration.
Coming Soon


























