992 BALLANTYNE DRIVE, Ottawa, Ontario, K4A4H4
MLS: X12963384 | House (Freehold)
$909,900













































Property Description
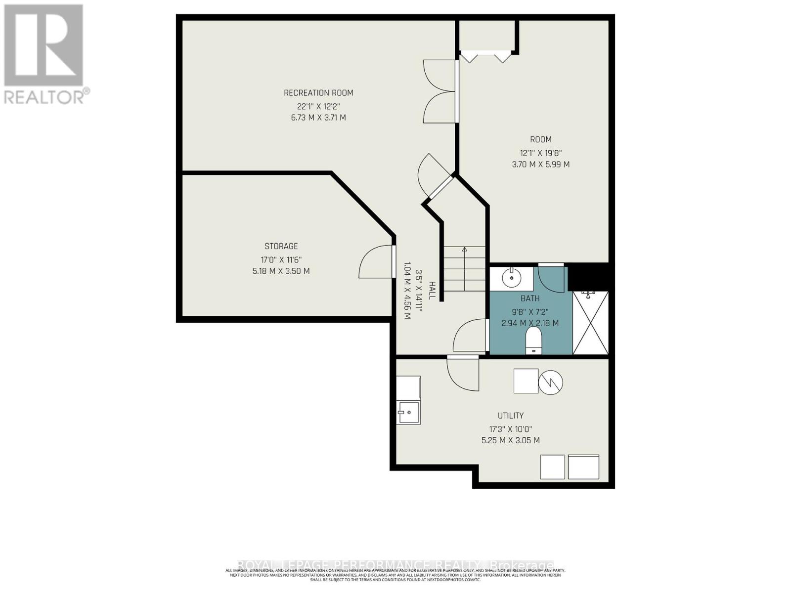
Welcome to this exceptional, beautifully renovated home offering approx. 3,400 sq. ft. of living space, featuring 4 bedrooms + LOFT, main floor DEN, 3.5 bathrooms & a finished basement with full bath. Ideally located in a sought-after, family-friendly neighbourhood within walking distance to parks, schools & amenities. A welcoming foyer with ample closet space leads to a thoughtfully designed main level showcasing rich hardwood & ceramic flooring throughout. Elegant formal living & dining rooms flow seamlessly-perfect for both entertaining and everyday living. At the heart of the home is the stunning 2022 RENOVATED CHEF'S KITCHEN, complete with a centre island, walk-in pantry, and a bright eat-in area with patio doors opening to a private deck and fully fenced yard-ideal for summer enjoyment. The adjoining family room features a striking stone fireplace, creating a warm and inviting space. A stylish powder room, dedicated main floor office with designer ceiling detail, and inside entry to the double garage complete this level. The beautifully updated curved staircase (2022) leads to the second level, offering a spacious primary retreat with walk-in closet and a RENOVATED 5-piece ensuite with double sinks and corner soaker tub. Three additional bedrooms, an updated main bath (2022), and convenient laundry add functionality, while the loft provides versatile bonus space. The finished lower level features a large recreation room, multi-purpose room (currently bedroom), full 3-piece bath, and ample storage. Updates include roof (2019), select windows (2019), kitchen (2022), bathrooms (2022), and staircase (2022). A perfect blend of space, style, and location for modern family living. (id:64974)
Quick Facts
- Property Type: House (Freehold)
- Bedrooms: 4 (4 above)
- Bathrooms: 4 (1 half)
- Ownership: Freehold
- Attached: No
- Fireplaces: Yes
- Parking: 6.0 spaces (Attached Garage, Garage, Inside Entry)
- Frontage: 44 ft (13.5 m)
Costs
- Annual Taxes: $6,071.20 (2025)
Listing Provided by: ROYAL LEPAGE PERFORMANCE REALTY
Board: Ottawa Real Estate Board
Data provided via CREA DDF®.
Detailed Features
Interior & Systems
- Heating: Forced air, Natural gas
- Cooling: Central air conditioning
- Basement: Finished, N/A
- Appliances: Washer, Refrigerator, Dishwasher, Stove, Dryer, Microwave, Garage door opener, Garage door opener remote(s)
- Flooring: Hardwood
Exterior & Construction
- Exterior: Brick, Vinyl siding
- Foundation: Poured Concrete
- Fencing: Fenced yard, Fully Fenced
- Sewer: Sanitary sewer
- Water: Municipal water
Lot & Land
- Frontage: 44 ft (13.5 m)
- Features: Lane
- Zoning: R1V - Residential
Community & Neighbourhood
- Community: Community Centre
- Building: Fireplace(s)
- Neighbourhood: 1106 - Fallingbrook/Gardenway South
Room Details (21 rooms)
Listing Information
Listing History
MLS listing activity for 992 BALLANTYNE DRIVE, Ottawa, Ontario, K4A4H4 — dates reflect when changes were recorded in the DDF
🚗 Travel times
Neighborhood Walkability
Mortgage & Cost Calculators
Nearby Homes ?Nearby Homes — Search CriteriaSearch Radius1 kmPrice Range±5%Match BedroomsYesMatch BathroomsYes

919 MARKWICK CRESCENT, Ottawa
Row / Townhouse$619,900
$4,010/yr taxListing Courtesy of MARTELS REAL ESTATE INC.

988 LUCILLE WAY, Ottawa
Row / Townhouse$589,900
$3,647/yr taxListing Courtesy of RE/MAX HALLMARK REALTY GROUP

1096 BALLANTYNE DRIVE, Ottawa
Row / Townhouse$579,900
$3,113/yr taxListing Courtesy of POWER MARKETING REAL ESTATE INC.

907 MARKWICK CRESCENT, Ottawa
Row / Townhouse$2,700/mo
Listing Courtesy of IAN CHARLEBOIS REAL ESTATE & MORTGAGES INC

857 NESTING WAY NW, Ottawa
Row / Townhouse$529,900
$3,201/yr taxListing Courtesy of RE/MAX HALLMARK REALTY GROUP

2191 SATURN CRESCENT, Ottawa
House$874,900
$5,900/yr taxListing Courtesy of ROYAL LEPAGE PERFORMANCE REALTY

1189 LICHEN AVENUE, Ottawa
Row / Townhouse$539,000
$3,382/yr taxListing Courtesy of FIRST CHOICE REALTY ONTARIO LTD.

1110 LUESBY CRESCENT, Ottawa
House$949,900
$6,062/yr taxListing Courtesy of ROYAL LEPAGE INTEGRITY REALTY

1118 LICHEN AVENUE, Ottawa
House$799,900
$5,176/yr taxListing Courtesy of RIGHT AT HOME REALTY

853 SWALLOWTAIL CRESCENT, Ottawa
House$824,900
$5,085/yr taxListing Courtesy of RE/MAX HALLMARK REALTY GROUP

1665 FRENETTE STREET, Ottawa
House$825,000
$4,760/yr taxListing Courtesy of ROYAL LEPAGE PERFORMANCE REALTY

1513 DEMETER STREET, Ottawa
Row / Townhouse$572,750
$3,666/yr taxListing Courtesy of EXP REALTY

1902 HENNESSY CRESCENT, Ottawa
Row / Townhouse$564,900
$3,458/yr taxListing Courtesy of COLDWELL BANKER FIRST OTTAWA REALTY

1092 BRASSEUR CRESCENT, Ottawa
Row / Townhouse$529,900
$3,777/yr taxListing Courtesy of ENGEL & VOLKERS OTTAWA

1820 MCCALLUM DRIVE, Ottawa
House$849,900
$5,753/yr taxListing Courtesy of ROYAL LEPAGE PERFORMANCE REALTY
Similar Homes ?Similar Homes — Search CriteriaSearch Radius5 kmPrice Range±5%Match Home TypeYesMatch BedroomsYes

68 MALACHIGAN CRESCENT, Ottawa
House$899,900
$6,587/yr taxListing Courtesy of ROYAL LEPAGE INTEGRITY REALTY

333 TIMBERTRAIL TERRACE, Ottawa
House$899,900
$5,716/yr taxListing Courtesy of ROYAL LEPAGE PERFORMANCE REALTY

1682 BARRINGTON STREET, Ottawa
House$924,000
$5,188/yr taxListing Courtesy of ROYAL LEPAGE PERFORMANCE REALTY

372 AQUAVIEW DRIVE, Ottawa
House$924,900
$6,194/yr taxListing Courtesy of ROYAL LEPAGE PERFORMANCE REALTY

142 AUBRAIS CRESCENT, Ottawa
House$929,999
$6,329/yr taxListing Courtesy of EXECUTIVE HOMES REALTY INC.

2234 CLERMONT CRESCENT, Ottawa
House$939,900
$6,200/yr taxListing Courtesy of RE/MAX HALLMARK PILON GROUP REALTY

1476 BOURCIER DRIVE, Ottawa
House$879,000
$5,888/yr taxListing Courtesy of BENNETT PROPERTY SHOP REALTY

109 SOLEIL AVENUE, Ottawa
House$874,900
$5,835/yr taxListing Courtesy of ROYAL LEPAGE INTEGRITY REALTY

2191 SATURN CRESCENT, Ottawa
House$874,900
$5,900/yr taxListing Courtesy of ROYAL LEPAGE PERFORMANCE REALTY

1889 MONTMERE AVENUE, Ottawa
House$874,000
$5,888/yr taxListing Courtesy of RE/MAX DELTA REALTY TEAM

570 BAIE-DES-CASTORS STREET, Ottawa
House$949,900
$5,986/yr taxListing Courtesy of RE/MAX HALLMARK REALTY GROUP

133 MANDALAY STREET, Ottawa
House$869,900
$6,510/yr taxListing Courtesy of RE/MAX HALLMARK PILON GROUP REALTY

54 MALACHIGAN CRESCENT, Ottawa
House$949,900
$6,044/yr taxListing Courtesy of CENTURY 21 ACTION POWER TEAM LTD.

267 NORTHWIND STREET, Ottawa
House$949,900
$5,025/yr taxListing Courtesy of ROYAL LEPAGE TEAM REALTY

6586 MORNINGVIEW STREET, Ottawa
House$949,900
$5,286/yr taxListing Courtesy of RE/MAX HALLMARK REALTY GROUP
Similar Properties ?Active Comparables — Search CriteriaSearch Radius2 kmPrice Range±5%Match Home TypeYesMatch BedroomsYes

333 TIMBERTRAIL TERRACE, Ottawa
House$899,900
$5,716/yr taxListing Courtesy of ROYAL LEPAGE PERFORMANCE REALTY

372 AQUAVIEW DRIVE, Ottawa
House$924,900
$6,194/yr taxListing Courtesy of ROYAL LEPAGE PERFORMANCE REALTY

2234 CLERMONT CRESCENT, Ottawa
House$939,900
$6,200/yr taxListing Courtesy of RE/MAX HALLMARK PILON GROUP REALTY

2191 SATURN CRESCENT, Ottawa
House$874,900
$5,900/yr taxListing Courtesy of ROYAL LEPAGE PERFORMANCE REALTY

1889 MONTMERE AVENUE, Ottawa
House$874,000
$5,888/yr taxListing Courtesy of RE/MAX DELTA REALTY TEAM

267 NORTHWIND STREET, Ottawa
House$949,900
$5,025/yr taxListing Courtesy of ROYAL LEPAGE TEAM REALTY
Sold Comparables
Access to sold property data requires a registered and verified account with TRREB DDF integration.
Coming SoonRented Comparables
Access to rented property data requires a registered and verified account with TRREB DDF integration.
Coming SoonBook a Viewing
992 BALLANTYNE DRIVE, Ottawa, Ontario, K4A4H4

