96 BROCK STREET, Brockville, Ontario, K6V4G1
MLS: X12846620 | House (Freehold)
$349,900




































Property Description
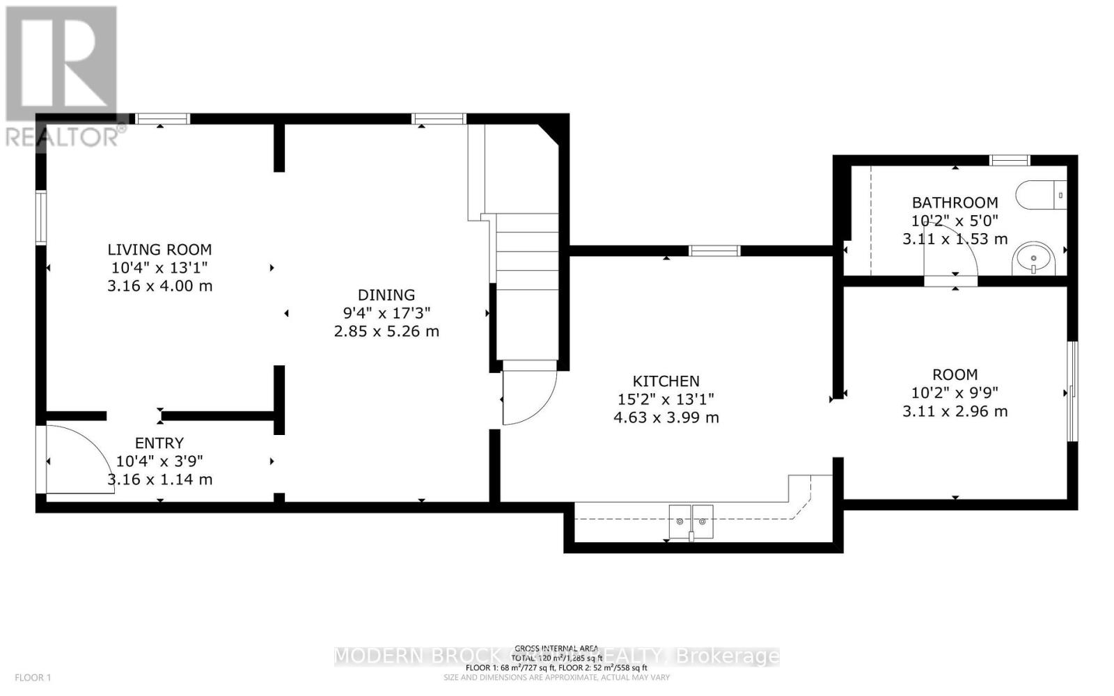
Great starter home close to downtown Brockville. This three bedroom, two bathroom home has been fully renovated and is ready for its next family. New roof in 2025, owned hot water tank in 2024, a/c unit in 2021, natural gas furnace in 2012, newer 200 amp panel, freshly painted and new flooring throughout. All there is to do is move in and relax. The laundry in on the main floor and there is an extra room off of the kitchen, perfect for an office or a playroom for the kids. Book your showing today. (id:64974)
Quick Facts
- Property Type: House (Freehold)
- Bedrooms: 3 (3 above)
- Bathrooms: 2 (1 half)
- Ownership: Freehold
- Attached: No
- Parking: 1 space (No Garage)
- Frontage: 50 ft (15.2 m)
Costs
- Annual Taxes: $1,534.00 (2025)
Listing Provided by: MODERN BROCK GROUP REALTY
Board: Rideau - St. Lawrence Real Estate Board
Data provided via CREA DDF®.
Detailed Features
Interior & Systems
- Heating: Forced air, Natural gas
- Cooling: Central air conditioning
- Basement: Unfinished, N/A
- Appliances: Water Heater
- Utilities: Sewer, Electricity, Cable
Exterior & Construction
- Exterior: Vinyl siding
- Foundation: Stone
- Sewer: Sanitary sewer
- Water: Municipal water
Lot & Land
- Frontage: 50 ft (15.2 m)
- Features: Level
Community & Neighbourhood
- Neighbourhood: 810 - Brockville
Room Details (10 rooms)
Listing Information
Listing History
Buy/Sell/Terminated/Expired listing history for 96 BROCK STREET, Brockville, Ontario, K6V4G1
Location & Neighborhood
🚗 Travel times
Neighborhood Walkability
Mortgage & Cost Calculators
Nearby Homes (Within 2km)
Similar Homes
Similar Properties
No rental comparables found in this area.
Sold Comparables
Access to sold property data requires a registered and verified account with TRREB DDF integration.
Coming SoonRented Comparables
Access to rented property data requires a registered and verified account with TRREB DDF integration.
Coming Soon



















