959 PROSPERITY COURT, London East (East D), Ontario, N5V5C7
MLS: X12772200 | House (Freehold)
$549,900

















































Property Description
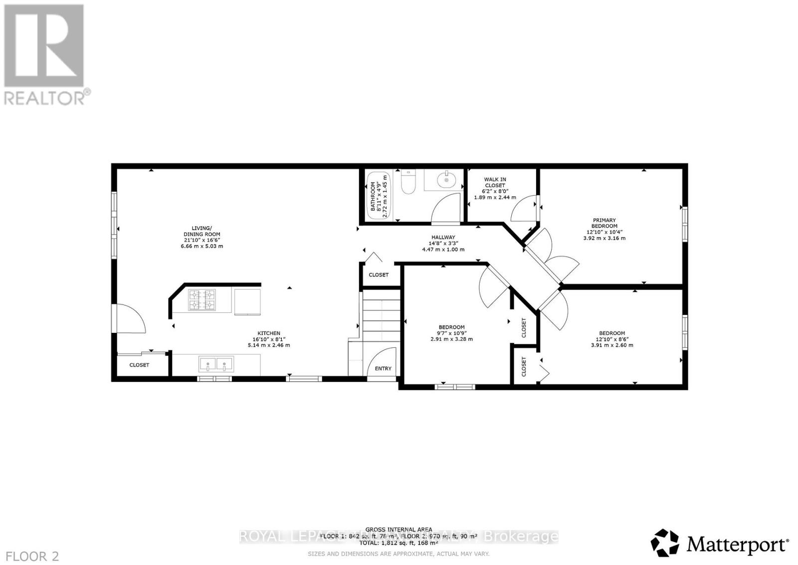
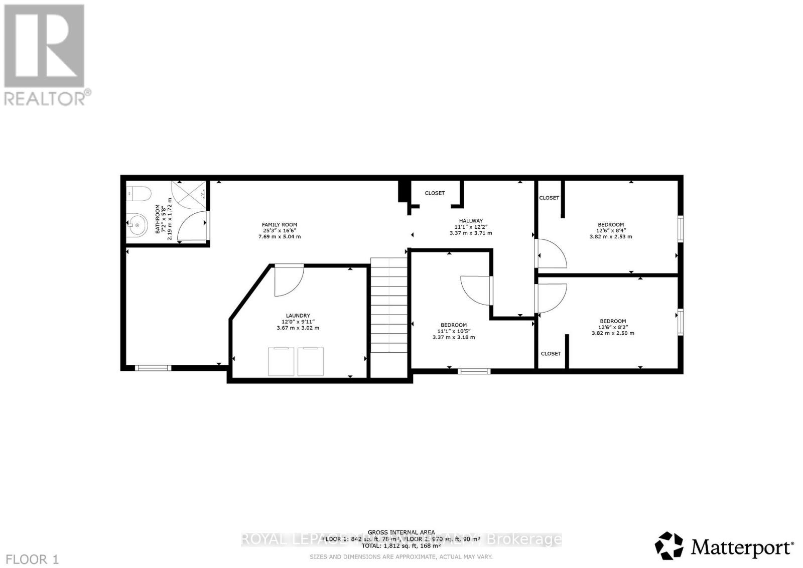
Excellent turnkey student rental opportunity located just 500 metres from the main gates of Fanshawe College. This fully renovated bungalow offers strong income potential in one of Londons most reliable & high demand rental markets, with close proximity to public transit, grocery stores, restaurants, parks, & major amenities along Oxford Street East & Highbury Avenue. This property also presents an ideal investment for parents with children attending Fanshawe College, offering the ability to house students while offsetting ownership costs with rental income. The main floor offers 3 bedrooms, a bright & sun filled living & dining area, & a full four piece bathroom with updated tub surround & quartz topped vanity. Recent renovations include luxury vinyl plank flooring throughout the living room, dining area, kitchen, hallway & bathroom, with the bedrooms finished in laminate flooring. Freshly painted throughout, the updated kitchen features high gloss Ikea cabinetry, quartz counters, & stainless steel fridge & stove.The lower level has also been fully updated & provides three additional bedrooms, a spacious living room, a three piece bathroom, & laundry area, all finished with luxury vinyl plank flooring. Updated light fixtures throughout complete the modernized interior. The exterior offers a stamped concrete driveway & walkway with parking for four vehicles, & a spacious fully fenced backyard ideal for tenant use. Major updates include shingles replaced in 2018 & a new furnace in 2025. The property has not been occupied since renovations were completed, allowing a new owner to start fresh with selecting their own tenants. Prior to updates the home was consistently rented, with the most recent rent at $3200 per month. With the extensive upgrades already completed, the property presents excellent potential for increased rents, strong cash flow, & long term investment value in a proven student rental location just steps from Fanshawe College. (id:64974)
Quick Facts
- Property Type: House (Freehold)
- Style: Bungalow
- Bedrooms: 6 (3 above, 3 below)
- Bathrooms: 2
- Ownership: Freehold
- Attached: No
- Parking: 4 spaces (No Garage, Tandem)
- Frontage: 39 ft (12 m)
Costs
- Annual Taxes: $3,738.00 (2025)
Listing Provided by: ROYAL LEPAGE TRILAND REALTY
Board: London and St. Thomas Association of REALTORS®
Data provided via CREA DDF®.
Detailed Features
Interior & Systems
- Heating: Forced air, Natural gas
- Cooling: Central air conditioning
- Basement: Finished, Full
- Appliances: Washer, Refrigerator, Water meter, Stove, Dryer
- Utilities: Sewer, Electricity, Cable
- Security: Smoke Detectors
Exterior & Construction
- Style: Bungalow
- Exterior: Brick, Vinyl siding
- Foundation: Poured Concrete
- Fencing: Fenced yard
- Sewer: Sanitary sewer
- Water: Municipal water
Lot & Land
- Frontage: 39 ft (12 m)
- Features: Cul-de-sac, Irregular lot size, Sump Pump
- Zoning: R1-3
Community & Neighbourhood
- Community: School Bus, Community Centre
- Neighbourhood: East D
Room Details (12 rooms)
Listing Information
Listing History
Buy/Sell/Terminated/Expired listing history for 959 PROSPERITY COURT, London East (East D), Ontario, N5V5C7
Location & Neighborhood
🚗 Travel times
Neighborhood Walkability
Mortgage & Cost Calculators
Nearby Homes (Within 2km)
Similar Homes
Similar Properties
No rental comparables found in this area.
Sold Comparables
Access to sold property data requires a registered and verified account with TRREB DDF integration.
Coming SoonRented Comparables
Access to rented property data requires a registered and verified account with TRREB DDF integration.
Coming Soon


























