930 - 169 FORT YORK BOULEVARD, Toronto (Waterfront Communities), Ontario, M5V0C8
MLS: C12959826 | Apartment (Condo)
$2,850 / monthly












Property Description
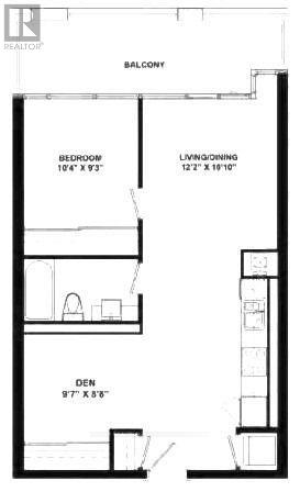
Garrison At The Yard Is An Exciting Urban Community To Toronto's Historic Fort York Neighbourhood. 662 Sq. Ft Unit Floor To Ceiling Windows, Large Den, Unobstructed Views Of The City And Fort York, High Ceilings (9' Foot), Granite Counter-Tops, Engineered Hardwood Flooring, Porcelain Tile Flooring In Bathroom, Stainless Steel Appliances, 1 Parking And 1 Locker. (id:64974)
Quick Facts
- Property Type: Apartment (Condo)
- Bedrooms: 2 (1 above, 1 below)
- Bathrooms: 1
- Ownership: Condo/Strata
- Attached: Yes
- Parking: 1.0 space (Garage, Underground)
Listing Provided by: RE/MAX REALTRON JIM MO REALTY
Board: Toronto Regional Real Estate Board
Data provided via CREA DDF®.
Detailed Features
Interior & Systems
- Heating: Forced air, Natural gas
- Cooling: Central air conditioning
- Basement: None
- Appliances: Washer, Refrigerator, Dishwasher, Dryer, Microwave, Cooktop, Hood Fan, Window Coverings
- Flooring: Laminate
Exterior & Construction
- Exterior: Brick
Lot & Land
- Features: Balcony, Carpet Free
Community & Neighbourhood
- Community: Pets Allowed With Restrictions
- Building: Storage - Locker, Exercise Centre, Sauna, Security/Concierge, Visitor Parking
- Neighbourhood: Waterfront Communities C1
Room Details (5 rooms)
Listing Information
Listing History
MLS listing activity for 930 - 169 FORT YORK BOULEVARD, Toronto (Waterfront Communities), Ontario, M5V0C8 — dates reflect when changes were recorded in the DDF
🚗 Travel times
Neighborhood Walkability
Mortgage & Cost Calculators
Nearby Homes ?Nearby Homes — Search CriteriaSearch Radius1 kmPrice Range±5%Match BedroomsYesMatch BathroomsYes

309 - 170 FORT YORK BOULEVARD, Toronto (Waterfront Communities)
Condo - Apartment$2,900/mo
Listing Courtesy of POWERLAND REALTY

2808 - 38 DAN LECKIE WAY, Toronto (Waterfront Communities)
Condo - Apartment$2,750/mo
Listing Courtesy of KELLER WILLIAMS REALTY CENTRES

339 - 32 STADIUM ROAD, Toronto (Niagara)
Condo - Row / Townhouse$2,750/mo
Listing Courtesy of CENTURY 21 HERITAGE GROUP LTD.

239 - 28 STADIUM ROAD, Toronto (Niagara)
Condo - Row / Townhouse$2,750/mo
Listing Courtesy of CENTURY 21 HERITAGE GROUP LTD.

601 - 705 KING STREET W, Toronto (Niagara)
Condo - Apartment$2,850/mo
Listing Courtesy of KELLER WILLIAMS PORTFOLIO REALTY

30 Ordnance STREET Unit# 2606, Toronto
Condo - Apartment$2,950/mo
Listing Courtesy of LISTIT.REALTY BROKERAGE INC

1611 - 35 MARINER TERRACE, Toronto (Waterfront Communities)
Condo - Apartment$2,850/mo
Listing Courtesy of BAY STREET GROUP INC.

2608 - 3 CONCORD CITYPLACE WAY, Toronto (Waterfront Communities)
Condo - Apartment$2,850/mo
Listing Courtesy of BAY STREET GROUP INC.

717 - 19 WESTERN BATTERY ROAD, Toronto (Niagara)
Condo - Apartment$2,800/mo
Listing Courtesy of INSIDER CONDOS INC.

3210 - 361 FRONT ST. STREET W, Toronto (Waterfront Communities)
Single Family$2,950/mo
Listing Courtesy of ROYAL LEPAGE REAL ESTATE SERVICES LTD.

418 - 399 ADELAIDE STREET, Toronto (Waterfront Communities)
Condo - Apartment$2,800/mo
Listing Courtesy of EXP REALTY

618 - 399 ADELAIDE STREET W, Toronto (Waterfront Communities)
Condo - Apartment$2,800/mo
Listing Courtesy of RE/MAX PLUS CITY TEAM INC.

510 - 27 CANNIFF STREET, Toronto (Niagara)
Single Family$2,900/mo
Listing Courtesy of RIGHT AT HOME REALTY

1301 - 8 CHARLOTTE STREET, Toronto (Waterfront Communities)
Condo - Apartment$2,900/mo
Listing Courtesy of FOREST HILL REAL ESTATE INC.

504 - 263 WELLINGTON STREET W, Toronto (Waterfront Communities)
Condo - Apartment$2,900/mo
Listing Courtesy of BAY STREET GROUP INC.
Similar Homes ?Similar Homes — Search CriteriaSearch Radius5 kmPrice Range±5%Match Home TypeYesMatch BedroomsYes

712 - 106 DOVERCOURT ROAD, Toronto (Trinity-Bellwoods)
Condo - Apartment$2,750/mo
Listing Courtesy of RIGHT AT HOME REALTY

907 - 55 REGENT PARK BOULEVARD, Toronto (Regent Park)
Condo - Apartment$2,750/mo
Listing Courtesy of HOMELIFE MAPLE LEAF REALTY LTD.

321 - 51 LOWER SIMCOE STREET, Toronto (Waterfront Communities)
Condo - Apartment$2,750/mo
Listing Courtesy of RE/MAX METROPOLIS REALTY

402 - 200 SUDBURY STREET, Toronto (Little Portugal)
Condo - Apartment$2,750/mo
Listing Courtesy of SUTTON GROUP-ADMIRAL REALTY INC.

339 - 32 STADIUM ROAD, Toronto (Niagara)
Condo - Row / Townhouse$2,750/mo
Listing Courtesy of CENTURY 21 HERITAGE GROUP LTD.

239 - 28 STADIUM ROAD, Toronto (Niagara)
Condo - Row / Townhouse$2,750/mo
Listing Courtesy of CENTURY 21 HERITAGE GROUP LTD.

721E - 576 FRONT STREET W, Toronto (Waterfront Communities)
Condo - Apartment$2,750/mo
Listing Courtesy of CHESTNUT PARK REAL ESTATE LIMITED

2515 - 55 MERCER STREET, Toronto (Waterfront Communities)
Condo - Apartment$2,750/mo
Listing Courtesy of BAY STREET GROUP INC.

309 - 8 MERCER STREET, Toronto (Waterfront Communities)
Condo - Apartment$2,750/mo
Listing Courtesy of BAY STREET GROUP INC.

225 - 4K SPADINA AVENUE, Toronto (Waterfront Communities)
Condo - Apartment$2,750/mo
Listing Courtesy of HOMELIFE LANDMARK REALTY INC.

#533 - 150 LOGAN AVENUE, Toronto (South Riverdale)
Condo - Apartment$2,750/mo
Listing Courtesy of AIMHOME REALTY INC.

#2310 - 319 JARVIS STREET, Toronto (Moss Park)
Condo - Apartment$2,750/mo
Listing Courtesy of RE/MAX REALTRON REAL REALTY TEAM

2115 - 400 ADELAIDE STREET E, Toronto (Moss Park)
Condo - Apartment$2,750/mo
Listing Courtesy of CONDOWONG REAL ESTATE INC.

2808 - 38 DAN LECKIE WAY, Toronto (Waterfront Communities)
Condo - Apartment$2,750/mo
Listing Courtesy of KELLER WILLIAMS REALTY CENTRES

1904 - 1420 DUPONT STREET, Toronto (Dovercourt-Wallace Emerson-Junction)
Condo - Apartment$2,747/mo
Listing Courtesy of CITYSCAPE REAL ESTATE LTD.
Similar Properties ?Active Comparables — Search CriteriaSearch Radius2 kmPrice Range±5%Match Home TypeYesMatch BedroomsYes

712 - 106 DOVERCOURT ROAD, Toronto (Trinity-Bellwoods)
Condo - Apartment$2,750/mo
Listing Courtesy of RIGHT AT HOME REALTY

907 - 55 REGENT PARK BOULEVARD, Toronto (Regent Park)
Condo - Apartment$2,750/mo
Listing Courtesy of HOMELIFE MAPLE LEAF REALTY LTD.

321 - 51 LOWER SIMCOE STREET, Toronto (Waterfront Communities)
Condo - Apartment$2,750/mo
Listing Courtesy of RE/MAX METROPOLIS REALTY

402 - 200 SUDBURY STREET, Toronto (Little Portugal)
Condo - Apartment$2,750/mo
Listing Courtesy of SUTTON GROUP-ADMIRAL REALTY INC.

339 - 32 STADIUM ROAD, Toronto (Niagara)
Condo - Row / Townhouse$2,750/mo
Listing Courtesy of CENTURY 21 HERITAGE GROUP LTD.

239 - 28 STADIUM ROAD, Toronto (Niagara)
Condo - Row / Townhouse$2,750/mo
Listing Courtesy of CENTURY 21 HERITAGE GROUP LTD.

721E - 576 FRONT STREET W, Toronto (Waterfront Communities)
Condo - Apartment$2,750/mo
Listing Courtesy of CHESTNUT PARK REAL ESTATE LIMITED

2515 - 55 MERCER STREET, Toronto (Waterfront Communities)
Condo - Apartment$2,750/mo
Listing Courtesy of BAY STREET GROUP INC.

309 - 8 MERCER STREET, Toronto (Waterfront Communities)
Condo - Apartment$2,750/mo
Listing Courtesy of BAY STREET GROUP INC.

225 - 4K SPADINA AVENUE, Toronto (Waterfront Communities)
Condo - Apartment$2,750/mo
Listing Courtesy of HOMELIFE LANDMARK REALTY INC.

#533 - 150 LOGAN AVENUE, Toronto (South Riverdale)
Condo - Apartment$2,750/mo
Listing Courtesy of AIMHOME REALTY INC.

#2310 - 319 JARVIS STREET, Toronto (Moss Park)
Condo - Apartment$2,750/mo
Listing Courtesy of RE/MAX REALTRON REAL REALTY TEAM

2115 - 400 ADELAIDE STREET E, Toronto (Moss Park)
Condo - Apartment$2,750/mo
Listing Courtesy of CONDOWONG REAL ESTATE INC.

2808 - 38 DAN LECKIE WAY, Toronto (Waterfront Communities)
Condo - Apartment$2,750/mo
Listing Courtesy of KELLER WILLIAMS REALTY CENTRES

1904 - 1420 DUPONT STREET, Toronto (Dovercourt-Wallace Emerson-Junction)
Condo - Apartment$2,747/mo
Listing Courtesy of CITYSCAPE REAL ESTATE LTD.

321 - 51 LOWER SIMCOE STREET, Toronto (Waterfront Communities)
Condo - Apartment$2,750/mo
Listing Courtesy of RE/MAX METROPOLIS REALTY

339 - 32 STADIUM ROAD, Toronto (Niagara)
Condo - Row / Townhouse$2,750/mo
Listing Courtesy of CENTURY 21 HERITAGE GROUP LTD.

239 - 28 STADIUM ROAD, Toronto (Niagara)
Condo - Row / Townhouse$2,750/mo
Listing Courtesy of CENTURY 21 HERITAGE GROUP LTD.

2808 - 38 DAN LECKIE WAY, Toronto (Waterfront Communities)
Condo - Apartment$2,750/mo
Listing Courtesy of KELLER WILLIAMS REALTY CENTRES

418 - 399 ADELAIDE STREET, Toronto (Waterfront Communities)
Condo - Apartment$2,800/mo
Listing Courtesy of EXP REALTY

2901 - 290 ADELAIDE STREET, Toronto (Waterfront Communities)
Condo - Apartment$2,800/mo
Listing Courtesy of HOMELIFE NEW WORLD REALTY INC.

618 - 399 ADELAIDE STREET W, Toronto (Waterfront Communities)
Condo - Apartment$2,800/mo
Listing Courtesy of RE/MAX PLUS CITY TEAM INC.

3210 - 38 WIDMER STREET, Toronto (Waterfront Communities)
Condo - Apartment$2,800/mo
Listing Courtesy of REAL ONE REALTY INC.

717 - 19 WESTERN BATTERY ROAD, Toronto (Niagara)
Condo - Apartment$2,800/mo
Listing Courtesy of INSIDER CONDOS INC.

1020 - 1029 KING STREET W, Toronto (Niagara)
Condo - Apartment$2,800/mo
Listing Courtesy of PSR

5605 - 88 HARBOUR STREET, Toronto (Waterfront Communities)
Condo - Apartment$2,800/mo
Listing Courtesy of RIGHT AT HOME REALTY

2608 - 3 CONCORD CITYPLACE WAY, Toronto (Waterfront Communities)
Condo - Apartment$2,850/mo
Listing Courtesy of BAY STREET GROUP INC.

601 - 705 KING STREET W, Toronto (Niagara)
Condo - Apartment$2,850/mo
Listing Courtesy of KELLER WILLIAMS PORTFOLIO REALTY

5403 - 70 TEMPERANCE STREET, Toronto (Bay Street Corridor)
Condo - Apartment$2,850/mo
Listing Courtesy of PROMPTON REAL ESTATE SERVICES CORP.

4610 - 38 WIDMER STREET, Toronto (Waterfront Communities)
Condo - Apartment$2,850/mo
Listing Courtesy of HC REALTY GROUP INC.
Sold Comparables
Access to sold property data requires a registered and verified account with TRREB DDF integration.
Coming SoonRented Comparables
Access to rented property data requires a registered and verified account with TRREB DDF integration.
Coming SoonBook a Viewing
930 - 169 FORT YORK BOULEVARD, Toronto (Waterfront Communities), Ontario, M5V0C8
