9230 BEACHDALE, Windsor, Ontario, N8R1R9
MLS: 26001580 | Single Family
$659,999











































Property Description
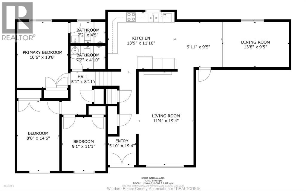
This remarkable property at 9230 Beachdale offers, The main floor features 3 generous bedrooms, including a primary suite with an ensuite bath, providing a comfortable retreat. The large kitchen is a chef's dream, offering ample space for meal preparation and gatherings. Additionally, the bonus family area enhances the home's versatility, perfect for recreation or as a cozy media room. Convenience is key with the main floor laundry and additional laundry f in the basement. Speaking of the basement, it boasts 2 more bedrooms, a full bathroom, and a second kitchen, making it an ideal space for guests, extended family, or potential rental income. Every appliance is brand new, ensuring efficiency and modernity throughout the home. With a newly installed furnace and air conditioning system, Top to bottom fully renovated House is looking for a new Family like you so book your showing now! (id:64974)
Quick Facts
- Property Type: Single Family
- Style: Other, 4 Level
- Bedrooms: 5 (3 above, 2 below)
- Bathrooms: 3
- Ownership: Freehold
- Attached: No
- Fireplaces: 1
Listing Provided by: REMAX PREFERRED REALTY LTD. - 585
Board: Windsor-Essex County Association of REALTORS®
Data provided via CREA DDF®.
Detailed Features
Interior & Systems
- Heating: Forced air, Natural gas, Furnace
- Cooling: Central air conditioning
- Appliances: Washer, Refrigerator, Dishwasher, Dryer, Two stoves, Two Refrigerators
- Flooring: Laminate, Other, Ceramic/Porcelain, Cushion/Lino/Vinyl
- Fireplace Features: Insert, Electric
Exterior & Construction
- Style: Other, 4 Level
- Exterior: Brick, Other, Aluminum/Vinyl
- Foundation: Block
Lot & Land
- Features: Golf course/parkland, Concrete Driveway, Front Driveway
- Zoning: RES
Room Details (18 rooms)
Listing Information
Listing History
Buy/Sell/Terminated/Expired listing history for 9230 BEACHDALE, Windsor, Ontario, N8R1R9
Location & Neighborhood
🚗 Travel times
Neighborhood Walkability
Mortgage & Cost Calculators
Nearby Homes (Within 2km)
Similar Homes
Similar Properties
Sold Comparables
Access to sold property data requires a registered and verified account with TRREB DDF integration.
Coming SoonRented Comparables
Access to rented property data requires a registered and verified account with TRREB DDF integration.
Coming Soon

























