92 ST MICHAELS Street, Delhi, Ontario, N4B0A3
MLS: 40770007 | House (Freehold)
$759,900




Property Description
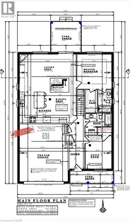
TO BE BUILT, Still time to choose Finishes in a brand new 2 bedroom, 2 bathroom Delhi Bungalow located in sought after Fairway Estates (which takes care of lawn & snow maintenance for a low monthly fee). Great curb appeal with stone & brick exterior. Flowing interior layout offers 1394 sq ft of masterfully designed living space highlighted by main living area with 9ft ceilings, oversized windows, gourmet kitchen with quartz countertops, custom contrasting eat at island, living room with gas fireplace & walkout to covered porch, gorgeous trim & millwork, main floor laundry, spacious master bedroom with 4pc ensuite & large W/I closet, secondary front bedroom (could be used as den or office), welcoming foyer, beautiful hardwood floors throughout, options for a finished basement (which could bring finished sf to almost 2800sf) are awaiting your personal touch and design with option for 3rd bathroom & extra bedroom(s) Conveniently located approx 15 mins to Simcoe & Tillsonburg, 35 mins to Brantford & Woodstock. AIA (id:64974)
Quick Facts
- Property Type: House (Freehold)
- Style: Bungalow
- Bedrooms: 2 (2 above)
- Bathrooms: 2
- Living Area: 1,394 sq ft (129.5 m²)
- Above Grade: 1,394 sq ft (129.5 m²)
- Ownership: Freehold
- Attached: No
- Parking: 6 spaces (Attached Garage)
- Frontage: 46 ft (14 m)
Costs
- Annual Taxes: $549.00
Listing Provided by: RE/MAX Escarpment Realty Inc.
Board: Cornerstone Association of REALTORS®
Data provided via CREA DDF®.
Detailed Features
Interior & Systems
- Heating: Forced air, Natural gas
- Cooling: Central air conditioning
- Basement: Unfinished, Full
Exterior & Construction
- Style: Bungalow
- Exterior: Stone, Stucco
- Foundation: Poured Concrete
- Sewer: Municipal sewage system
- Water: Municipal water
Lot & Land
- Frontage: 46 ft (14 m)
- Features: Southern exposure, Automatic Garage Door Opener
- Zoning: R1
Community & Neighbourhood
- Subdivision: Delhi
Room Details (6 rooms)
Listing Information
Listing History
Buy/Sell/Terminated/Expired listing history for 92 ST MICHAELS Street, Delhi, Ontario, N4B0A3
Location & Neighborhood
🚗 Travel times
Neighborhood Walkability
Mortgage & Cost Calculators
Similar Homes
Similar Properties
Sold Comparables
Access to sold property data requires a registered and verified account with TRREB DDF integration.
Coming SoonRented Comparables
Access to rented property data requires a registered and verified account with TRREB DDF integration.
Coming Soon

















