9183 SILVER STREET, West Lincoln (West Lincoln), Ontario, L0R1E0
MLS: X12695564 | House (Freehold)
$679,900
















































Property Description
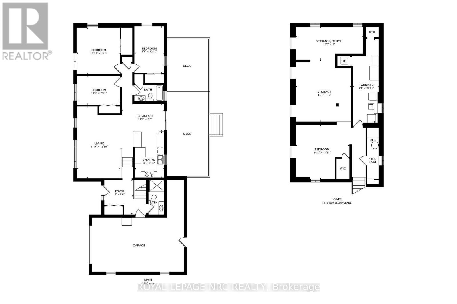
Welcome to 9183 Silver Street in Caistor Centre - a beautifully maintained 3-bedroom, 2-bath bungalow that is ready for a new family to call home. If you're looking for space, comfort, and lifestyle, this property truly has it all. From the moment you arrive, you'll appreciate the extra-large driveway with plenty of room for family and friends. Inside and out, the home is designed for both everyday living and entertaining, featuring a large deck ideal for hosting and relaxing outdoors. The garage includes a dedicated hobby shop, perfect for projects, storage, or creating your own workshop space. Directly across the street, you'll find a community centre and park, offering green space and recreation just steps from your front door. Enjoy the peace and charm of country living while still being only minutes from city conveniences, with Smithville and Binbrook both less than a 15-minute drive away. Extensive updates provide exceptional peace of mind, including a new septic tank and waterproofed front foundation wall completed in 2022, a new furnace, air conditioner, and water heater installed in 2023, a new roof and flashing in 2023, a waterproofed cistern in 2024, a new water pump in 2023, updated appliances including stove, fridge, washer, and dryer in 2022, a new dishwasher in 2025, a whole-home water filtration system with UV added in 2022, and a reverse osmosis water filter installed in 2022. This is an absolute must-see property that perfectly blends space, upgrades, and lifestyle - ready to welcome you home. (id:64974)
Quick Facts
- Property Type: House (Freehold)
- Style: Raised bungalow
- Bedrooms: 3 (3 above)
- Bathrooms: 2
- Ownership: Freehold
- Attached: No
- Parking: 7 spaces (Attached Garage, Garage)
- Frontage: 110 ft (33.5 m)
Costs
- Annual Taxes: $4,449.00 (2025)
Listing Provided by: ROYAL LEPAGE NRC REALTY
Board: Toronto Regional Real Estate Board
Data provided via CREA DDF®.
Detailed Features
Interior & Systems
- Heating: Forced air, Natural gas
- Cooling: Central air conditioning
- Basement: Unfinished, Full
- Appliances: All, Washer, Refrigerator, Dishwasher, Stove, Dryer, Freezer, Water Heater
Exterior & Construction
- Style: Raised bungalow
- Exterior: Vinyl siding
- Foundation: Block
- Sewer: Septic System
Lot & Land
- Frontage: 110 ft (33.5 m)
- Features: Sump Pump
- Zoning: R1
Community & Neighbourhood
- Neighbourhood: 056 - West Lincoln
Room Details (12 rooms)
Listing Information
Listing History
Buy/Sell/Terminated/Expired listing history for 9183 SILVER STREET, West Lincoln (West Lincoln), Ontario, L0R1E0
Location & Neighborhood
🚗 Travel times
Neighborhood Walkability
Mortgage & Cost Calculators
Nearby Homes (Within 2km)
Similar Homes
Similar Properties
No rental comparables found in this area.
Sold Comparables
Access to sold property data requires a registered and verified account with TRREB DDF integration.
Coming SoonRented Comparables
Access to rented property data requires a registered and verified account with TRREB DDF integration.
Coming Soon



















