91 CUNNINGHAM DRIVE, Barrie (Ardagh), Ontario, L4N8L5
MLS: S12779664 | House (Freehold)
$649,900




































Property Description
Welcome to 91 Cunningham Drive, a bright and beautifully maintained home located in one of Barrie's most desirable, family-friendly neighbourhoods. The open-concept main floor offers a functional and inviting layout featuring a welcoming entryway, open living and dining area, and an eat-in kitchen. Enjoy the convenience of a powder room, inside access to the garage, and a walk-out to the private backyard with no neighbours behind where a recently redone deck and gazebo create the perfect space for relaxing or entertaining. Upstairs, you'll find a spacious and sun-filled bedroom with a walk-in closet, a second bright bedroom, and a full 4-piece bathroom. The second floor is complete with a generous primary suite overlooking the private backyard, featuring a large ensuite, a walk in closet and offering a peaceful retreat filled with natural light. Additional highlights include some new front windows, central air conditioning installed just two years ago, and outdoor upgrades including the new deck and gazebo. Convenience of 3 parking spaces total, driveway parking for two cars side by side, and single car garage! Ideally located close to schools, parks, Ardagh Bluffs, restaurants, and everyday amenities, this home offers exceptional comfort, privacy, and convenience, with the added bonus of no backyard neighbours! (id:64974)
Quick Facts
- Property Type: House (Freehold)
- Bedrooms: 3 (3 above)
- Bathrooms: 3 (1 half)
- Ownership: Freehold
- Attached: Yes
- Parking: 3 spaces (Attached Garage, Garage, Inside Entry)
- Frontage: 27 ft (8.3 m)
Costs
- Annual Taxes: $4,390.00 (2025)
Listing Provided by: CENTURY 21 B.J. ROTH REALTY LTD.
Board: Toronto Regional Real Estate Board
Data provided via CREA DDF®.
Detailed Features
Interior & Systems
- Heating: Forced air, Natural gas
- Cooling: Central air conditioning
- Basement: Unfinished, Full
- Appliances: Refrigerator, Water softener, Dishwasher, Stove, Microwave, Garage door opener remote(s)
- Flooring: Hardwood
- Utilities: Sewer, Electricity, Cable
Exterior & Construction
- Exterior: Brick, Vinyl siding
- Foundation: Concrete
- Fencing: Fenced yard
- Sewer: Sanitary sewer
- Water: Municipal water
Lot & Land
- Frontage: 27 ft (8.3 m)
- Features: Conservation/green belt, Carpet Free
- Zoning: RM2-TH
Community & Neighbourhood
- Neighbourhood: Ardagh
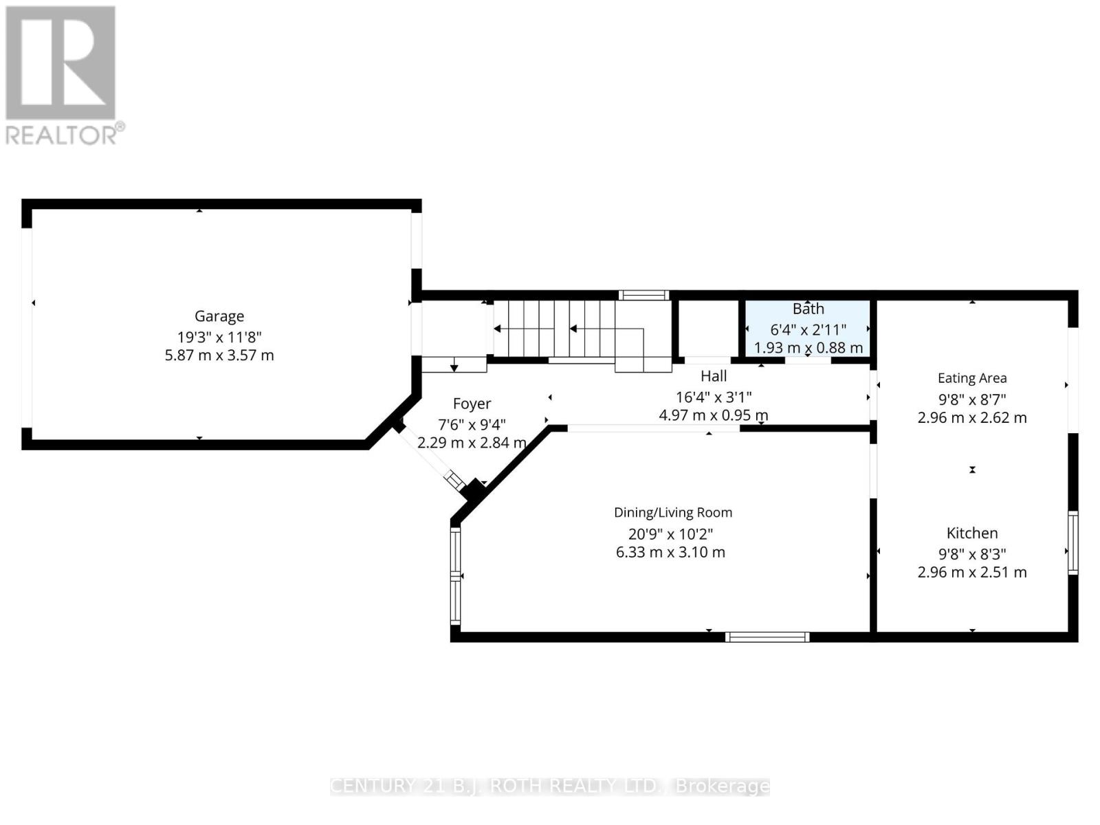
Room Details (7 rooms)
Listing Information
Listing History
Buy/Sell/Terminated/Expired listing history for 91 CUNNINGHAM DRIVE, Barrie (Ardagh), Ontario, L4N8L5
Location & Neighborhood
🚗 Travel times
Neighborhood Walkability
Mortgage & Cost Calculators
Nearby Homes (Within 2km)
Similar Homes
Similar Properties
No rental comparables found in this area.
Sold Comparables
Access to sold property data requires a registered and verified account with TRREB DDF integration.
Coming SoonRented Comparables
Access to rented property data requires a registered and verified account with TRREB DDF integration.
Coming Soon
























