906 - 185 ALBERTA AVENUE, Toronto (Oakwood Village), Ontario, M6C0A5
MLS: C12814344 | Apartment (Condo)
$3,850.00 / monthly






























Property Description
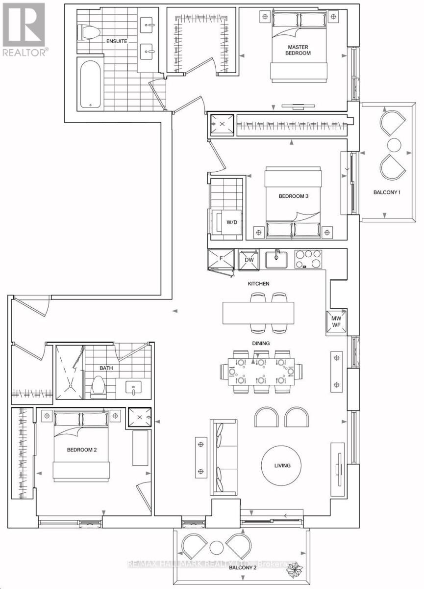
Experience urban living at its finest in this stunning 3-bedroom, 2-bathroom condo at 185 Alberta Ave With 1,284 sq ft of bright, spacious interiors, this home features large windows that fill every room with natural light. The contemporary design and high-end finishes create an inviting atmosphere perfect for both entertaining and relaxation. Situated in a vibrant neighborhood, you're just steps from public transit, making commuting easy. Enjoy being close to trendy cafes, restaurants, and shops, all within walking distance. This condo offers the perfect blend of luxury, convenience, and style in one of Toronto's most sought-after areas. Unit comes complete with 1 parking spot. (id:64974)
Quick Facts
- Property Type: Apartment (Condo)
- Bedrooms: 3 (3 above)
- Bathrooms: 2
- Ownership: Condo/Strata
- Attached: Yes
- Parking: 1 space (Garage, Underground)
Listing Provided by: RE/MAX HALLMARK REALTY LTD.
Board: Toronto Regional Real Estate Board
Data provided via CREA DDF®.
Detailed Features
Interior & Systems
- Heating: Forced air, Electric
- Cooling: Central air conditioning
- Basement: None
Exterior & Construction
- Exterior: Brick
Lot & Land
- Features: Balcony, In suite Laundry
Community & Neighbourhood
- Community: Pets Allowed With Restrictions
- Building: Exercise Centre, Party Room, Security/Concierge
- Neighbourhood: Oakwood Village
Room Details (8 rooms)
Listing Information
Listing History
Buy/Sell/Terminated/Expired listing history for 906 - 185 ALBERTA AVENUE, Toronto (Oakwood Village), Ontario, M6C0A5
Location & Neighborhood
🚗 Travel times
Neighborhood Walkability
Mortgage & Cost Calculators
Nearby Homes (Within 2km)
Similar Homes
Similar Properties
Sold Comparables
Access to sold property data requires a registered and verified account with TRREB DDF integration.
Coming SoonRented Comparables
Access to rented property data requires a registered and verified account with TRREB DDF integration.
Coming Soon


































