90 DEACON STREET, Pembroke, Ontario, K8A2J4
MLS: X12870448 | House (Freehold)
$439,500










































Property Description
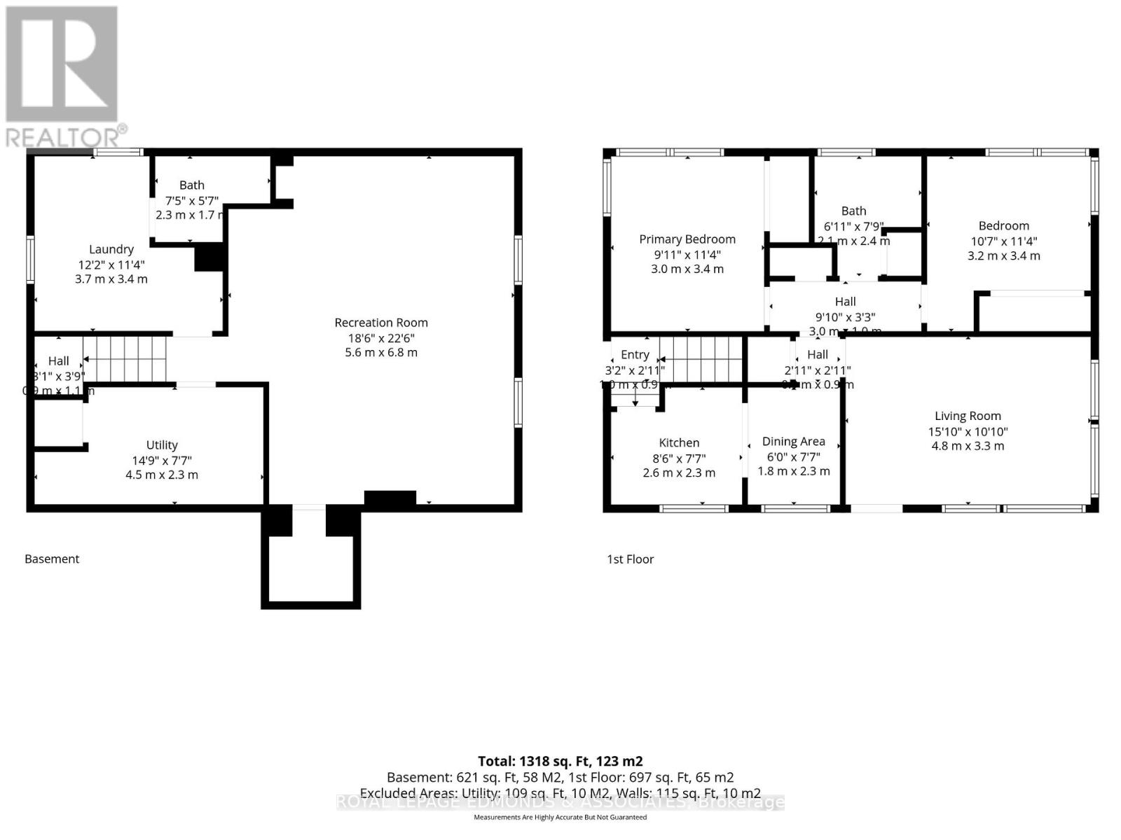
Welcome to this charming 2-bedroom, 2-bathroom home in the heart of Pembroke - perfectly located just steps from the hospital and close to all amenities. Combining comfort and practicality, this well-maintained home offers bright, functional living spaces and fantastic bonus features you won't often find in the city. A highlight of the property is the oversized and insulated detached garage/workshop, ideal for those who need space for projects, storage, or hobbies. You'll also enjoy the large covered deck, beautifully updated in 2023 - a great place to unwind or entertain guests. The convenient oversized carport off the side entrance provides additional covered parking and easy access to the home. Inside, the inviting living room with plenty of windows fills the space with natural light, while the eat-in kitchen offers room for family meals and includes a new dishwasher for added convenience. The main floor features two generous bedrooms and a 4-piece bathroom. Downstairs, you'll find a spacious rec room - perfect for family gatherings, a home office, or a workout space - a large laundry area with plenty of counter space, and a second 3-piece bathroom for added functionality. While a few modern touches could make it your own, this solid home offers incredible potential. Whether you're a first-time buyer, downsizing, or looking for a property with ample garage and work space right in town, this home is a rare find in a highly desirable location. 24 hour irrevocable on all offers. (id:64974)
Quick Facts
- Property Type: House (Freehold)
- Style: Bungalow
- Bedrooms: 2 (2 above)
- Bathrooms: 2
- Ownership: Freehold
- Attached: No
- Parking: 5 spaces (Detached Garage, Garage)
- Frontage: 61 ft (18.5 m)
Costs
- Annual Taxes: $4,003.28
Listing Provided by: ROYAL LEPAGE EDMONDS & ASSOCIATES
Board: Renfrew County Real Estate Board
Data provided via CREA DDF®.
Detailed Features
Interior & Systems
- Heating: Forced air, Electric
- Cooling: Central air conditioning
- Basement: Finished, N/A
- Appliances: Washer, Refrigerator, Dishwasher, Stove, Dryer, Garage door opener, Garage door opener remote(s)
- Utilities: Sewer, Electricity, Cable
Exterior & Construction
- Style: Bungalow
- Exterior: Brick
- Foundation: Block
- Sewer: Sanitary sewer
- Water: Municipal water
Lot & Land
- Frontage: 61 ft (18.5 m)
Community & Neighbourhood
- Neighbourhood: 530 - Pembroke
Room Details (9 rooms)
Listing Information
Listing History
Buy/Sell/Terminated/Expired listing history for 90 DEACON STREET, Pembroke, Ontario, K8A2J4
Location & Neighborhood
🚗 Travel times
Neighborhood Walkability
Mortgage & Cost Calculators
Nearby Homes (Within 2km)
Similar Homes
Similar Properties
No rental comparables found in this area.
Sold Comparables
Access to sold property data requires a registered and verified account with TRREB DDF integration.
Coming SoonRented Comparables
Access to rented property data requires a registered and verified account with TRREB DDF integration.
Coming Soon






















