8910 LYNNWOOD PARK PRIVATE, Ottawa, Ontario, K0A1V0
MLS: X12865912 | Mobile Home (Leasehold)
$279,500
















Property Description
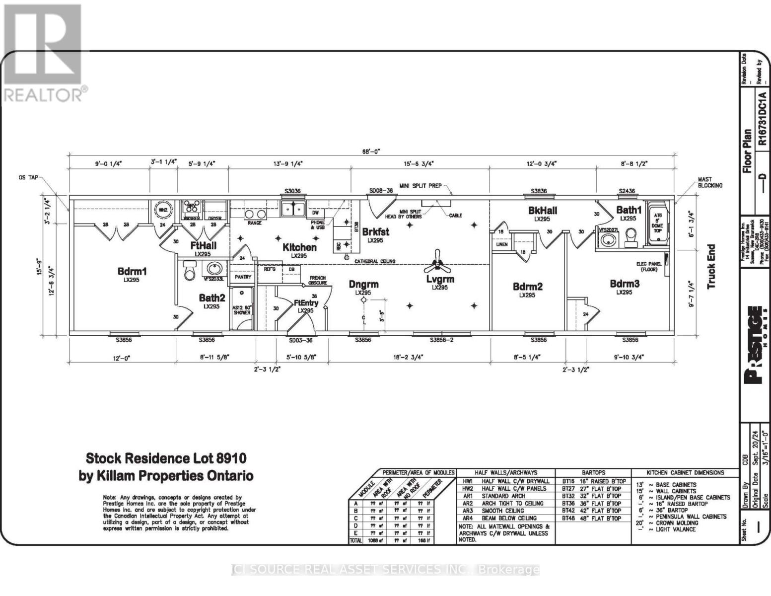
Price reduced for quick sale! Due to an overstock of homes in the land lease communities, these homes are aggressively being sold! Welcome to the beautiful land lease community of Lynnwood Gardens in Edwards Ontario! Home is 68 x 16 and nestled on an insulated concrete pad (this houses 18" of clean dry storage!) Comes with all appliances (washer/dryer, dishwasher, range, fridge). Home is heated/cooled with a very cost efficient mini-split heat pump. This modular is 3 bedrooms, 2 full bathrooms. Close proximity to the 417 near the Amazon plant. Several schools, shopping and walking trails in the area! Land lease fees are $768 per month and include property taxes, water testing, sewage and garbage pick up. This home qualifies for the HST rebate, with a cash-back to the buyer of 20K!! This stunning home won't last long! *For Additional Property Details Click The Brochure Icon Below* (id:64974)
Quick Facts
- Property Type: Mobile Home (Leasehold)
- Style: Bungalow
- Bedrooms: 3 (3 above)
- Bathrooms: 2
- Ownership: Leasehold
- Parking: 2 spaces (No Garage)
Listing Provided by: ICI SOURCE REAL ASSET SERVICES INC.
Board: Toronto Regional Real Estate Board
Data provided via CREA DDF®.
Detailed Features
Interior & Systems
- Heating: Heat Pump, Electric
- Basement: None
- Appliances: All, Water Heater
- Utilities: Sewer, Electricity
Exterior & Construction
- Style: Bungalow
- Exterior: Vinyl siding
- Sewer: Septic System
Lot & Land
- Features: Lane
Community & Neighbourhood
- Neighbourhood: 1605 - Osgoode Twp North of Reg Rd 6
Room Details (2 rooms)
Listing Information
Listing History
Buy/Sell/Terminated/Expired listing history for 8910 LYNNWOOD PARK PRIVATE, Ottawa, Ontario, K0A1V0
Location & Neighborhood
🚗 Travel times
Neighborhood Walkability
Mortgage & Cost Calculators
Nearby Homes (Within 2km)
Similar Homes
Similar Properties
No rental comparables found in this area.
Sold Comparables
Access to sold property data requires a registered and verified account with TRREB DDF integration.
Coming SoonRented Comparables
Access to rented property data requires a registered and verified account with TRREB DDF integration.
Coming Soon














