88 - 1100 OXFORD STREET, Oshawa (Lakeview), Ontario, L1J6G4
MLS: E12853522 | Townhouse (Condo)
$380,000





























Property Description
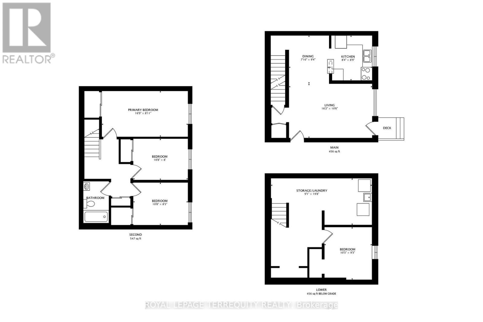
Welcome to the stunning and scenic Lakeview Community in Oshawa! A well kept 3+1 bedroom condo townhouse in a quaint and quiet neighbourhood. Family and pet friendly complex with a spacious layout for a growing family and a extra bedroom for in-laws and guests! Enjoy your private fenced yard for entertaining and relaxation! The low maintenance fees makes it easy to live freely as it includes heat, hydro, water, building insurance, common elements and parking! Conveniently located close to amenities including grocery stores, schools, shopping, transit, and GO trains, all while being minutes away from the 401 and the Lake! A great opportunity for home ownership near the lake for first time home buyers, empty nesters and investors! (id:64974)
Quick Facts
- Property Type: Townhouse (Condo)
- Bedrooms: 4 (3 above, 1 below)
- Bathrooms: 1
- Ownership: Condo/Strata
- Attached: Yes
- Parking: 1 space (No Garage)
Costs
- Annual Taxes: $2,073.28
- Condo/HOA Fee: $695.46 / monthly
- Corp: STRONGHOLD MANAGEMENT GROUP INC
- Includes: Common Area Maintenance, Heat, Electricity, Water, Insurance, Parking
Listing Provided by: ROYAL LEPAGE TERREQUITY REALTY
Board: Toronto Regional Real Estate Board
Data provided via CREA DDF®.
Detailed Features
Interior & Systems
- Heating: Baseboard heaters, Natural gas
- Cooling: Window air conditioner
- Basement: Partially finished, N/A
- Appliances: Washer, Refrigerator, Dishwasher, Stove, Dryer, Alarm System, Window Coverings, Water Heater
- Flooring: Laminate
Exterior & Construction
- Exterior: Brick, Aluminum siding
- Fencing: Fenced yard
Community & Neighbourhood
- Community: Pets Allowed With Restrictions
- Building: Storage - Locker, Visitor Parking
- Neighbourhood: Lakeview
Room Details (8 rooms)
Listing Information
Listing History
Buy/Sell/Terminated/Expired listing history for 88 - 1100 OXFORD STREET, Oshawa (Lakeview), Ontario, L1J6G4
Location & Neighborhood
🚗 Travel times
Neighborhood Walkability
Mortgage & Cost Calculators
Nearby Homes (Within 2km)
Similar Homes
Similar Properties
No rental comparables found in this area.
Sold Comparables
Access to sold property data requires a registered and verified account with TRREB DDF integration.
Coming SoonRented Comparables
Access to rented property data requires a registered and verified account with TRREB DDF integration.
Coming Soon






















