866 QUARTET AVENUE, Ottawa, Ontario, K1X0C6
MLS: X12963164 | Townhouse (Freehold)
$649,900





























Property Description
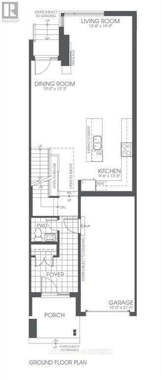
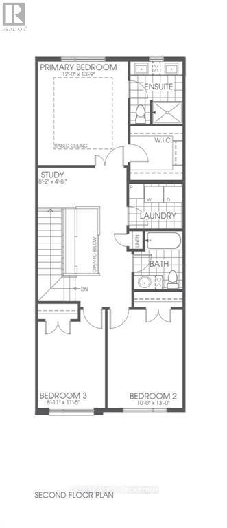
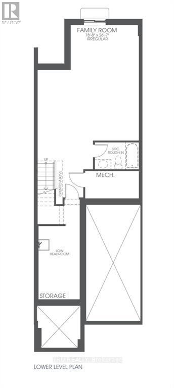
High quality luxury town in a fabulous location! Experience the "Brighton" model executive town by renowned builder HN Homes in the master planned community of Riverside South. This well constructed & open concept 3 Bed, 2.5 Bath + Loft home offers unparalleled finishes including spectacular glass & metal railings, modern gas fireplace & a gorgeous hardwood staircase leading to the second level. The chefs kitchen is a show stopper, boasting upgraded stainless appliances, elegant chimney hood fan, soft close cabinetry, pot drawers, quartz counters & plenty of storage & prep space. 2nd level is dreamy, the primary offering an ensuite w/ double sinks, quartz and large glass shower plus generous walk-in closet. Just outside is the loft space - ideal office area for those working from home, & a huge walk in laundry room with sink basin & storage galore. 2 additional bedrooms round out this level. Spacious finished basement featuring a 4PC Bath rough-in is a great extension of living space plus additional storage. A fully fenced back yard makes entertaining friends, family or your fur babies a joy. So many amenities not far from your doorstep, incl memorial Grove park, schools, transit, an off-leash dog park, coffee shop, groceries, dining, yoga & much more. It's time to live without compromise! 24 hours notice please for showings. (id:64974)
Quick Facts
- Property Type: Townhouse (Freehold)
- Bedrooms: 3 (3 above)
- Bathrooms: 3 (1 half)
- Ownership: Freehold
- Attached: Yes
- Fireplaces: 1
- Parking: 3.0 spaces (Attached Garage, Garage)
- Frontage: 20 ft (6.1 m)
Costs
- Annual Taxes: $4,313.00 (2025)
Listing Provided by: TRU REALTY
Board: Ottawa Real Estate Board
Data provided via CREA DDF®.
Detailed Features
Interior & Systems
- Heating: Forced air, Natural gas
- Cooling: Central air conditioning
- Basement: Finished, N/A
- Appliances: Washer, Refrigerator, Dishwasher, Stove, Dryer, Microwave, Hood Fan, Blinds
Exterior & Construction
- Exterior: Brick, Vinyl siding
- Foundation: Poured Concrete
- Sewer: Sanitary sewer
- Water: Municipal water
Lot & Land
- Frontage: 20 ft (6.1 m)
- Features: Level
Community & Neighbourhood
- Building: Fireplace(s)
- Neighbourhood: 2602 - Riverside South/Gloucester Glen
Room Details (11 rooms)
Listing Information
Listing History
MLS listing activity for 866 QUARTET AVENUE, Ottawa, Ontario, K1X0C6 — dates reflect when changes were recorded in the DDF
🚗 Travel times
Neighborhood Walkability
Mortgage & Cost Calculators
Nearby Homes ?Nearby Homes — Search CriteriaSearch Radius1 kmPrice Range±5%Match BedroomsYesMatch BathroomsYes

677 HONEYDEW STREET, Ottawa
Row / Townhouse$677,000
$4,732/yr taxListing Courtesy of RE/MAX HALLMARK EXCELLENCE GROUP REALTY

267 APRICOT STREET, Ottawa
Row / Townhouse$632,566
Listing Courtesy of THE AGENCY OTTAWA

279 MOUNT NEBO WAY, Ottawa
House$3,500/mo
Listing Courtesy of HOME RUN REALTY INC.

726 GUARDIAN GROVE, Ottawa
Row / Townhouse$2,690/mo
Listing Courtesy of KELLER WILLIAMS ICON REALTY

487 MARKDALE TERRACE, Ottawa
Row / Townhouse$703,000
$4,134/yr taxListing Courtesy of A2Z REALTY INC.

229 DOLCE CRESCENT, Ottawa
Row / Townhouse$704,999
$4,332/yr taxListing Courtesy of HOME RUN REALTY INC.

842 RALPH HENNESY AVENUE, Ottawa
Condo - Row / Townhouse$515,000
$3,492/yr taxListing Courtesy of LOTFUL REALTY

257 DOLCE CRESCENT, Ottawa
Row / Townhouse$729,000
$3,921/yr taxListing Courtesy of HOME RUN REALTY INC.

798 CARNELIAN CRESCENT, Ottawa
Row / Townhouse$2,895/mo
Listing Courtesy of ROYAL LEPAGE INTEGRITY REALTY

820 RALPH HENNESSY AVE AVENUE, Ottawa
Condo - Row / Townhouse$499,999
$3,615/yr taxListing Courtesy of ROYAL LEPAGE PERFORMANCE REALTY

814 RALPH HENNESSY AVENUE, Ottawa
Condo - Row / Townhouse$2,400/mo
Listing Courtesy of ROYAL LEPAGE TEAM REALTY

110 LARIMAR CIRCLE, Ottawa
Row / Townhouse$689,900
$4,277/yr taxListing Courtesy of ROYAL LEPAGE INTEGRITY REALTY

119 CAMBIE ROAD, Ottawa
House$1,089,800
$6,857/yr taxListing Courtesy of RE/MAX ABSOLUTE WALKER REALTY

B - 1065 BERYL PRIVATE, Ottawa
Condo - Apartment$392,500
$3,235/yr taxListing Courtesy of RE/MAX HALLMARK JENNA & CO. GROUP REALTY

6 - 3785 CANYON WALK DRIVE, Ottawa
Condo - Apartment$375,000
$3,041/yr taxListing Courtesy of COLDWELL BANKER SARAZEN REALTY
Similar Homes ?Similar Homes — Search CriteriaSearch Radius5 kmPrice Range±5%Match Home TypeYesMatch BedroomsYes

136 CALAVERAS AVENUE, Ottawa
Row / Townhouse$649,900
$4,746/yr taxListing Courtesy of ROYAL LEPAGE TEAM REALTY

992 BUNCHBERRY WAY, Ottawa
Row / Townhouse$649,900
$4,268/yr taxListing Courtesy of BENNETT PROPERTY SHOP REALTY

222 GEYSER PLACE, Ottawa
Row / Townhouse$649,900
$3,571/yr taxListing Courtesy of FIRST CHOICE REALTY ONTARIO LTD.

254 TEWSLEY DRIVE, Ottawa
House$650,000
$4,648/yr taxListing Courtesy of ROYAL LEPAGE TEAM REALTY

76 HEIRLOOM STREET, Ottawa
Row / Townhouse$649,000
$4,464/yr taxListing Courtesy of CENTURY 21 SYNERGY REALTY INC

443 HARESFIELD COURT, Ottawa
Row / Townhouse$651,900
Listing Courtesy of EXP REALTY

46 BARN SWALLOW PRIVATE, Ottawa
Row / Townhouse$645,000
$3,992/yr taxListing Courtesy of INNOVATION REALTY LTD.

106 WILD SENNA WAY, Ottawa
Row / Townhouse$658,000
$4,133/yr taxListing Courtesy of ROYAL LEPAGE INTEGRITY REALTY

551 KILSPINDIE RIDGE, Ottawa
Row / Townhouse$659,000
$4,354/yr taxListing Courtesy of RE/MAX HALLMARK REALTY GROUP

54 CHARLESTON STREET, Ottawa
Row / Townhouse$639,800
$4,170/yr taxListing Courtesy of RE/MAX HALLMARK REALTY GROUP

135 WILD SENNA WAY, Ottawa
Row / Townhouse$639,000
$4,036/yr taxListing Courtesy of REMAX BOARDWALK REALTY

349 SWEETFLAG STREET, Ottawa
Row / Townhouse$635,900
$4,485/yr taxListing Courtesy of ROYAL LEPAGE TEAM REALTY

563 AGLISH MEWS, Ottawa
Row / Townhouse$634,900
$3,986/yr taxListing Courtesy of DREAMHOUSE OTTAWA INC.

267 APRICOT STREET, Ottawa
Row / Townhouse$632,566
Listing Courtesy of THE AGENCY OTTAWA

200 IDLEWILD PRIVATE, Ottawa
Row / Townhouse$669,000
$5,286/yr taxListing Courtesy of ROYAL LEPAGE PERFORMANCE REALTY
Similar Properties ?Active Comparables — Search CriteriaSearch Radius2 kmPrice Range±5%Match Home TypeYesMatch BedroomsYes

254 TEWSLEY DRIVE, Ottawa
House$650,000
$4,648/yr taxListing Courtesy of ROYAL LEPAGE TEAM REALTY

76 HEIRLOOM STREET, Ottawa
Row / Townhouse$649,000
$4,464/yr taxListing Courtesy of CENTURY 21 SYNERGY REALTY INC

443 HARESFIELD COURT, Ottawa
Row / Townhouse$651,900
Listing Courtesy of EXP REALTY

46 BARN SWALLOW PRIVATE, Ottawa
Row / Townhouse$645,000
$3,992/yr taxListing Courtesy of INNOVATION REALTY LTD.

267 APRICOT STREET, Ottawa
Row / Townhouse$632,566
Listing Courtesy of THE AGENCY OTTAWA

125 WATCHHORN GROVE, Ottawa
Row / Townhouse$629,000
$4,254/yr taxListing Courtesy of RE/MAX HALLMARK REALTY GROUP

677 HONEYDEW STREET, Ottawa
Row / Townhouse$677,000
$4,732/yr taxListing Courtesy of RE/MAX HALLMARK EXCELLENCE GROUP REALTY

449 HARESFIELD COURT, Ottawa
Row / Townhouse$620,900
Listing Courtesy of GRAPE VINE REALTY INC.

637 TENNANT WAY, Ottawa
Row / Townhouse$679,900
$4,111/yr taxListing Courtesy of HOME RUN REALTY INC.

759 EVERTON WAY, Ottawa
Row / Townhouse$619,900
$4,243/yr taxListing Courtesy of RE/MAX HALLMARK REALTY GROUP

798 CARNELIAN CRESCENT, Ottawa
Row / Townhouse$2,895/mo
Listing Courtesy of ROYAL LEPAGE INTEGRITY REALTY

701 CAPRICORN CIRCLE, Ottawa
Row / Townhouse$2,700/mo
Listing Courtesy of KELLER WILLIAMS ICON REALTY

726 GUARDIAN GROVE, Ottawa
Row / Townhouse$2,690/mo
Listing Courtesy of KELLER WILLIAMS ICON REALTY

192 JERSEY TEA CIRCLE, Ottawa
Row / Townhouse$2,600/mo
Listing Courtesy of ROYAL LEPAGE TEAM REALTY
Sold Comparables
Access to sold property data requires a registered and verified account with TRREB DDF integration.
Coming SoonRented Comparables
Access to rented property data requires a registered and verified account with TRREB DDF integration.
Coming SoonBook a Viewing
866 QUARTET AVENUE, Ottawa, Ontario, K1X0C6
