852 GATESTONE ROAD, London South (South U), Ontario, N6M0L6
MLS: X12837940 | House (Freehold)
$885,700






Property Description
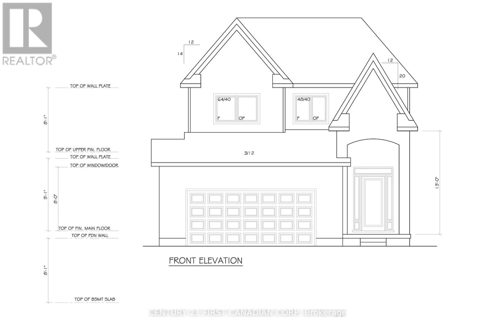
Don't miss this incredible opportunity to own a brand new Home! This thoughtfully designed residence will feature a modern open-concept layout, high quality finishes with an efficient construction plan. This location is privileged with a backyard that overlooks a beautiful pond and trail. This Emerald III Model has a beautiful steep front facade, features a functional 1862 sqft and offers a charming Master Bedroom with spacious walk-in closet and a beautiful 3-piece ensuite bathroom with a custom tiled shower and quartz/granite countertops. This model has an additional 3 bedrooms with individual closet spaces and a 3-piece main bathroom also featuring quartz/granite. Enjoy the comfortable upstairs laundry for ease of daily chores and a linen closet. On the main floor you will enjoy an open concept throughout with large windows that will vibrantly add joy and light from the backyard pond views. The Kitchen features a generous sized centre quartz/granite island perfect for entertaining with the dining room conveniently placed for the views. The Living room boasts a large window and of course a feature wall with an electric fireplace for those cold winter days or anytime ambiance. Hardwood floors are included throughout the main floor and upper hallway and OAK stairs.This plan (TO-BE-BUILT) is Vander Wielen Design & Build Inc.'s most popular model that will provide a balanced family-friendly layout with the suburban feel and comfort of an open backyard view and privacy. Buyers will have the opportunity to select finishes, colours, and upgrades that reflect their own personal style.Jacksons Meadows is an up and coming desirable neighbourhood with a state of the art Public School being built now with 655 seats available and a 5 room childcare facility. Very close to schools, stores, groceries, restaurants, mall, parks and major traffic routes including the 401 hwy. For a limited time the builder is offering a $7500 5 Piece Appliance Package! (id:64974)
Quick Facts
- Property Type: House (Freehold)
- Bedrooms: 4 (4 above)
- Bathrooms: 3 (1 half)
- Ownership: Freehold
- Attached: No
- Fireplaces: 1
- Parking: 4 spaces (Attached Garage, Garage)
- Frontage: 35 ft (10.5 m)
Listing Provided by: CENTURY 21 FIRST CANADIAN CORP
Board: London and St. Thomas Association of REALTORS®
Data provided via CREA DDF®.
Detailed Features
Interior & Systems
- Heating: Forced air, Electric
- Cooling: Central air conditioning
- Basement: Unfinished, N/A
- Appliances: Water meter, Water Heater
- Flooring: Tile, Hardwood
- Utilities: Sewer, Electricity, Cable
Exterior & Construction
- Exterior: Brick, Vinyl siding
- Foundation: Concrete
- Sewer: Sanitary sewer
- Water: Municipal water
Lot & Land
- Frontage: 35 ft (10.5 m)
- Features: Wooded area, Carpet Free, Sump Pump
Community & Neighbourhood
- Building: Fireplace(s)
- Neighbourhood: South U
Room Details (12 rooms)
Listing Information
Listing History
Buy/Sell/Terminated/Expired listing history for 852 GATESTONE ROAD, London South (South U), Ontario, N6M0L6
Location & Neighborhood
🚗 Travel times
Neighborhood Walkability
Mortgage & Cost Calculators
Nearby Homes (Within 2km)
Similar Homes
Similar Properties
No rental comparables found in this area.
Sold Comparables
Access to sold property data requires a registered and verified account with TRREB DDF integration.
Coming SoonRented Comparables
Access to rented property data requires a registered and verified account with TRREB DDF integration.
Coming Soon























