85 HALL STREET, Oshawa (Central), Ontario, L1H2Y8
MLS: E12864850 | House (Freehold)
$475,000















Property Description
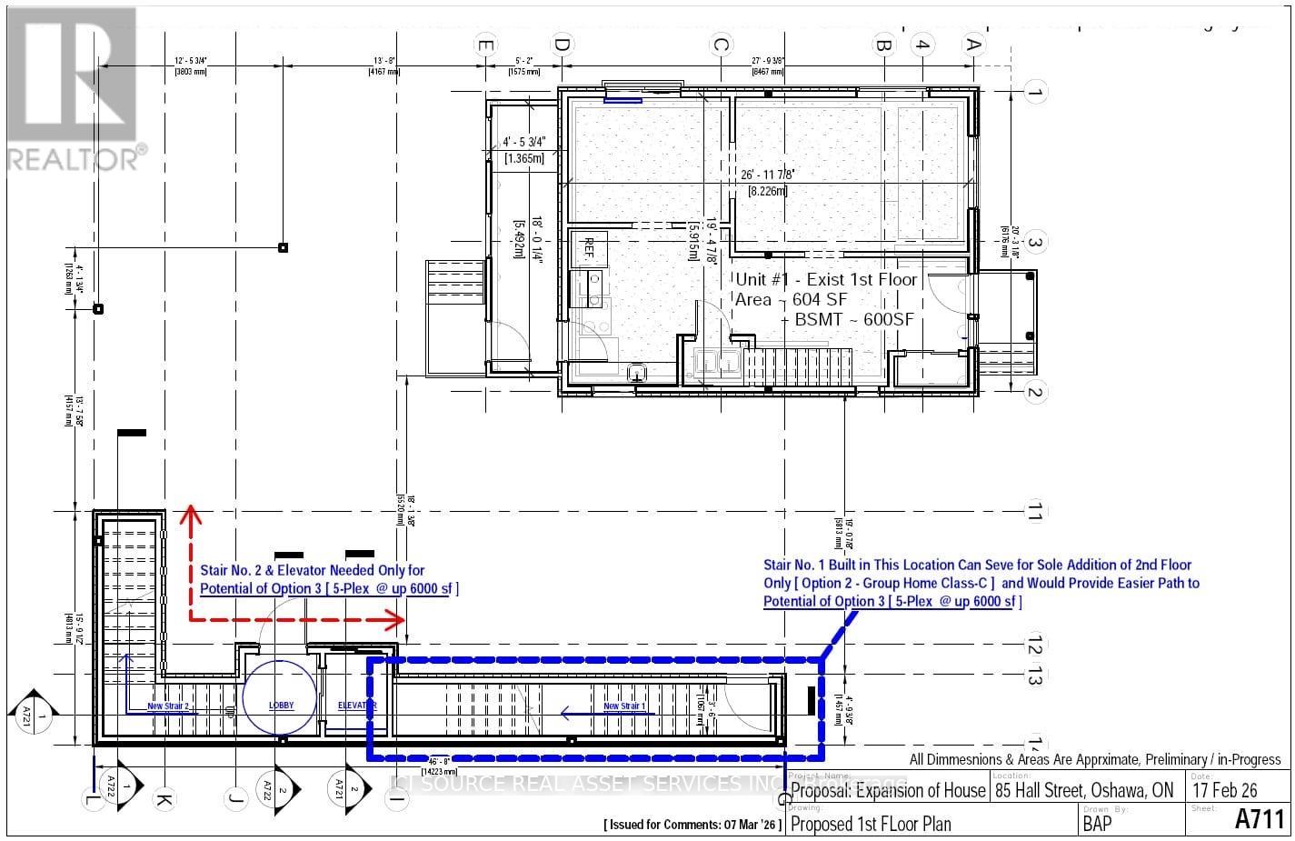
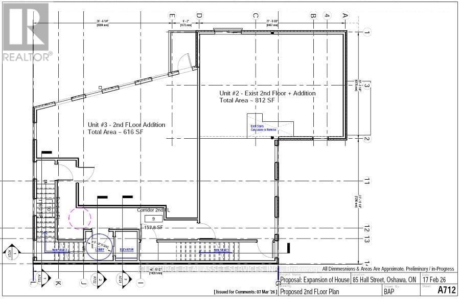
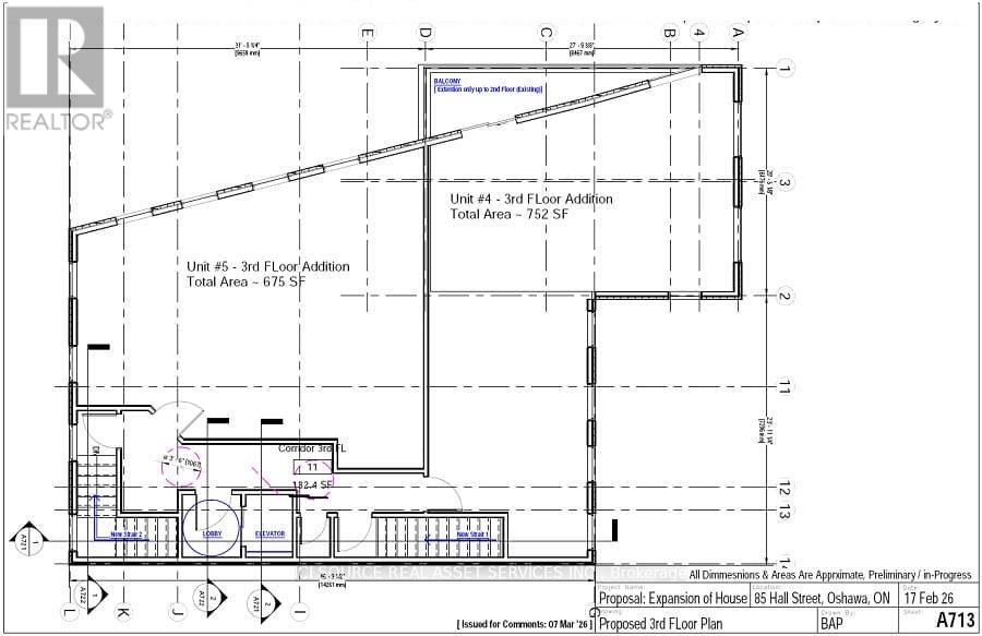
Attention Builders & Investors: For Sale Shovel-Ready House Renovation Project on Ravine Lot in Oshawa - Approx. 800m away from Newly proposed Go-Station. Property is Completely along Green Space - see Survey, LRO plan, and images. The Place is Green Space. Existing HOUSE was built of old solid wood and all finishes have been already Stripped Outside & Gutted Inside - READY for Renovation, which includes Addition of FULL 2nd Storey. NEW SURVEY. ACTIVE BUILDING PERMIT IN HAND: 3 BEDROOMS Upstairs. Kitchen Living on 1st Floor. GFA Approx. 1360 Square Feet. Basement. Building Permit in Hand for 3 Bedroom in full height 2nd Story. Note, the Listing Price incudes the House As Is now, along with Current Building Permit [ for 1360 sf one family house ]. Buyer to do own due diligence and use their own discretion in assessment of Cost of Construction for the Approved (1) Dwelling Unit shown on Building Permit Drawings. The price listed here includes the House "AS-IS" now and Building Permit drawings in-hand - subject to coordination of transfer of permits as per procedures by city and conservation authority. *For Additional Property Details Click The Brochure Icon Below* (id:64974)
Quick Facts
- Property Type: House (Freehold)
- Bedrooms: 3 (3 above)
- Bathrooms: 1
- Ownership: Freehold
- Attached: No
- Parking: 1 space (No Garage)
- Frontage: 66 ft (20.1 m)
Costs
- Annual Taxes: $3,424.58
Listing Provided by: ICI SOURCE REAL ASSET SERVICES INC.
Board: Toronto Regional Real Estate Board
Data provided via CREA DDF®.
Detailed Features
Interior & Systems
- Heating: Baseboard heaters, Electric
- Cooling: None
- Basement: Unfinished, N/A
- Appliances: Water meter
Exterior & Construction
- Exterior: Wood
- Foundation: Concrete
- Sewer: Sanitary sewer
- Water: Municipal water
Lot & Land
- Frontage: 66 ft (20.1 m)
- Features: Irregular lot size
Community & Neighbourhood
- Neighbourhood: Central
Room Details (5 rooms)
Listing Information
Listing History
Buy/Sell/Terminated/Expired listing history for 85 HALL STREET, Oshawa (Central), Ontario, L1H2Y8
Location & Neighborhood
🚗 Travel times
Neighborhood Walkability
Mortgage & Cost Calculators
Nearby Homes (Within 2km)
Similar Homes
Similar Properties
No rental comparables found in this area.
Sold Comparables
Access to sold property data requires a registered and verified account with TRREB DDF integration.
Coming SoonRented Comparables
Access to rented property data requires a registered and verified account with TRREB DDF integration.
Coming Soon
























