84 AVALON PLACE, Kitchener, Ontario, N2M4N7
MLS: X12917054 | House (Freehold)
$599,000














































Property Description
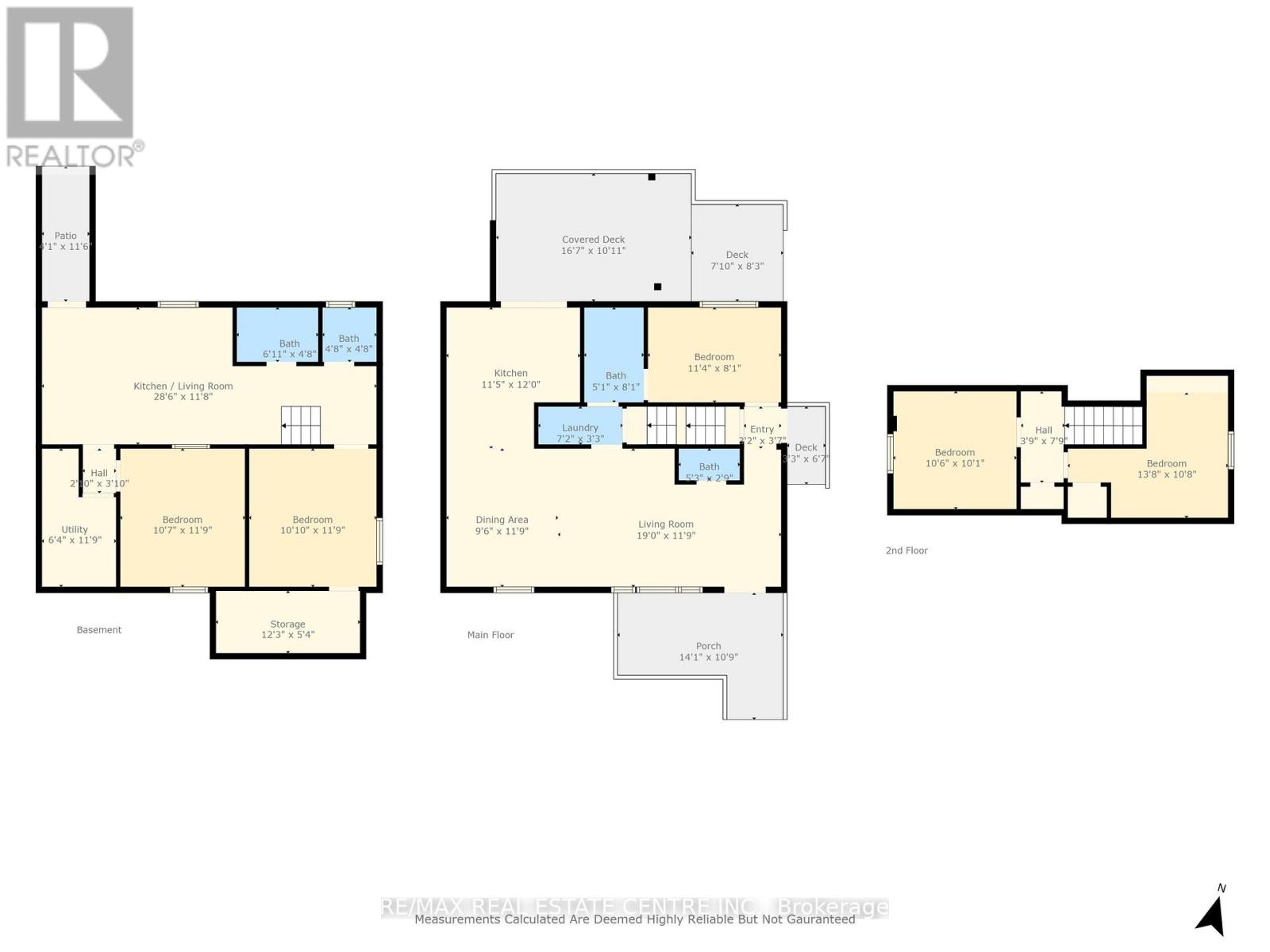
Beautifully renovated all-brick home located in the desirable Forest Hill neighbourhood, set on a 50' x 106' lot. This spacious property offers 5 bedrooms and 4 bathrooms, ideal for families seeking functional living space in a well-established community. The main floor features an open-concept layout with combined living, dining, and kitchen areas, updated finishes, a main floor bedroom with ensuite, and a 2-piece powder room. The upper level includes 2 bedrooms with ample natural light. The fully finished basement provides additional living space with 2 bedrooms, a full bathroom, a 2-piece bathroom, and a separate entrance. Recent upgrades include roof, flooring, windows, and appliances (2025), A/C (2025), furnace (2016), electrical (2016), owned tankless hot water system, water softener (2016), pot lights, fresh paint, and sump pump (2025). Private backyard with space for outdoor use. Convenient location close to Forest Hill Public School, parks, walking trails, shopping, public transit, St. Mary's Hospital, and quick access to Hwy 7/8. (id:64974)
Quick Facts
- Property Type: House (Freehold)
- Bedrooms: 5 (3 above, 2 below)
- Bathrooms: 4 (2 half)
- Ownership: Freehold
- Attached: No
- Parking: 7.0 spaces (Detached Garage, Garage)
- Frontage: 49 ft (15 m)
Costs
- Annual Taxes: $3,255.98
Listing Provided by: RE/MAX REAL ESTATE CENTRE INC.
Board: Toronto Regional Real Estate Board
Data provided via CREA DDF®.
Detailed Features
Interior & Systems
- Heating: Forced air, Natural gas
- Cooling: Central air conditioning
- Basement: Finished, Separate entrance, Walk-up, N/A, N/A, N/A
- Appliances: Washer, Refrigerator, Stove, Dryer
Exterior & Construction
- Exterior: Brick
- Foundation: Concrete
- Sewer: Sanitary sewer
- Water: Municipal water
Lot & Land
- Frontage: 49 ft (15 m)
- Zoning: R2
Listing Information
Listing History
MLS listing activity for 84 AVALON PLACE, Kitchener, Ontario, N2M4N7 — dates reflect when changes were recorded in the DDF
🚗 Travel times
Neighborhood Walkability
Mortgage & Cost Calculators
Nearby Homes ?Nearby Homes — Search CriteriaSearch Radius1 kmPrice Range±5%Match BedroomsYesMatch BathroomsYes

84 AVALON Place, Kitchener
House$599,000
$3,256/yr taxListing Courtesy of RE/MAX Real Estate Centre Inc.

124 AVALON Place, Kitchener
House$589,999
$2,849/yr taxListing Courtesy of Royal LePage Wolle Realty

4 AVALON Place Unit# 106, Kitchener
Condo - Apartment$319,999
$1,574/yr taxListing Courtesy of Peak Realty Ltd.

106 - 4 AVALON PLACE, Kitchener
Condo - Apartment$319,999
$1,574/yr taxListing Courtesy of PEAK REALTY LTD.

303 - 4 AVALON PLACE, Kitchener
Condo - Apartment$299,900
$1,817/yr taxListing Courtesy of HomeLife Power Realty Inc

4 AVALON Place Unit# 308, Kitchener
Condo - Apartment$275,000
$1,424/yr taxListing Courtesy of RE/MAX SOLID GOLD REALTY (II) LTD.

4 AVALON Place Unit# 303, Kitchener
Condo - Apartment$299,900
$1,818/yr taxListing Courtesy of HomeLife Power Realty Inc.

11 - 107 CHANDLER DRIVE, Kitchener
Condo - Apartment$1,750/mo
Listing Courtesy of Royal LePage Our Neighbourhood Realty

25 PALACE Street Unit# R30, Kitchener
Condo - Apartment$2,250/mo
Listing Courtesy of Corcoran Horizon Realty

R31 - 25 PALACE STREET, Kitchener
Condo - Row / Townhouse$2,100/mo
Listing Courtesy of Right At Home Realty, Brokerage

BLOCK R 25 UNIT 411 - 25 PALACE ST STREET, Kitchener
Condo - Apartment$2,050/mo
Listing Courtesy of iCloud Realty Ltd.

P16 - 25 PALACE STREET, Kitchener
Condo - Row / Townhouse$2,100/mo
Listing Courtesy of ROYAL LEPAGE CERTIFIED REALTY

M17 - 40 PALACE STREET, Kitchener
Condo - Row / Townhouse$1,650/mo
Listing Courtesy of Right At Home Realty, Brokerage

89 BARBARA Crescent, Kitchener
House$2,200/mo
Listing Courtesy of ROYAL LEPAGE FLOWER CITY REALTY

40 PALACE Street Unit# L13, Kitchener
Condo - Apartment$2,100/mo
Listing Courtesy of CONDO CULTURE INC. - BROKERAGE 2
Similar Homes ?Similar Homes — Search CriteriaSearch Radius5 kmPrice Range±5%Match Home TypeYesMatch BedroomsYes

84 AVALON Place, Kitchener
House$599,000
$3,256/yr taxListing Courtesy of RE/MAX Real Estate Centre Inc.

141 MOOREGATE CRESCENT, Kitchener
House$619,900
$3,392/yr taxListing Courtesy of RE/MAX REAL ESTATE CENTRE INC.

42 WAWANAISA ROAD, Carling
House$599,000
$1,500/yr taxListing Courtesy of Revel Realty Inc

27 HOLLINGSWORTH STREET, Cramahe (Colborne)
Row / Townhouse$599,000
Listing Courtesy of ROYAL LEPAGE PROALLIANCE REALTY

2805 - 21 WIDMER STREET, Toronto (Waterfront Communities)
Condo - Apartment$599,000
$3,077/yr taxListing Courtesy of MASTER'S TRUST REALTY INC.

1503 - 909 BAY STREET, Toronto (Bay Street Corridor)
Condo - Apartment$599,000
$2,692/yr taxListing Courtesy of PROPERTY.CA INC.

208 - 909 BAY STREET, Toronto (Bay Street Corridor)
Condo - Apartment$599,000
$3,024/yr taxListing Courtesy of POWERLAND REALTY

20 KING STREET E, Cavan Monaghan (Millbrook Village)
House$599,000
$3,409/yr taxListing Courtesy of STRIVE REALTY LTD.

156 MAUD STREET, Central Elgin
House$599,000
Listing Courtesy of BLUE FOREST REALTY INC.

505 - 160 WOODBRIDGE AVENUE, Vaughan (West Woodbridge)
Condo - Apartment$599,000
$2,950/yr taxListing Courtesy of REMAX YOUR COMMUNITY REALTY

PH5 - 65 SCADDING AVENUE, Toronto (Waterfront Communities)
Condo - Apartment$599,000
$2,692/yr taxListing Courtesy of INTERNATIONAL REALTY FIRM, INC.

309 - 60 ANN STREET, Caledon (Bolton West)
Condo - Apartment$599,000
$3,255/yr taxListing Courtesy of RIGHT AT HOME REALTY

1107 - 5280 LAKESHORE ROAD, Burlington (Appleby)
Condo - Apartment$599,000
$3,351/yr taxListing Courtesy of RE/MAX EXCEL REALTY LTD.

186 CEDRIC AVENUE, Toronto (Oakwood Village)
House$599,000
$3,544/yr taxListing Courtesy of KELLER WILLIAMS ADVANTAGE REALTY

G25 - 350 WELLINGTON STREET W, Toronto (Waterfront Communities)
Condo - Apartment$599,000
$1,165/yr taxListing Courtesy of ROYAL LEPAGE SIGNATURE REALTY
Similar Properties ?Active Comparables — Search CriteriaSearch Radius2 kmPrice Range±5%Match Home TypeYesMatch BedroomsYes
No rental comparables found in this area.
Sold Comparables
Access to sold property data requires a registered and verified account with TRREB DDF integration.
Coming SoonRented Comparables
Access to rented property data requires a registered and verified account with TRREB DDF integration.
Coming SoonBook a Viewing
84 AVALON PLACE, Kitchener, Ontario, N2M4N7
