8355 COUNTY 9 ROAD, Clearview, Ontario, L0M1G0
MLS: S12302521 | House (Freehold)
$739,000


































Property Description
Tranquil Riverfront Retreat on the Noisy River Near Creemore, Ontario Escape to the peaceful sounds of flowing water and nature on this enchanting riverfront property nestled along the picturesque Noisy River, just minutes from the charming village of Creemore. This cozy and well-maintained 2-bedroom, 1-bathroom home is perfectly positioned on a gently sloping lot that offers stunning views of the river below and lush, mature landscaping throughout. Whether you're sipping your morning coffee on the deck or enjoying a quiet evening around the firepit, the natural beauty of this property surrounds you. Inside, the home offers a warm and inviting atmosphere with an open living space, functional kitchen, and comfortable bedrooms all designed to make the most of this unique setting. A separate bunkie provides extra space for guests or a quiet retreat, while an additional storage building adds practicality for tools, gear, or hobby supplies. Whether you are looking for a weekend getaway, a full-time residence, or a peaceful artists retreat, this idyllic riverfront property offers unmatched tranquility with easy access to Creemore's boutique shops, cafés, markets, and year-round community events. Your peaceful riverside lifestyle awaits! (id:64974)
Quick Facts
- Property Type: House (Freehold)
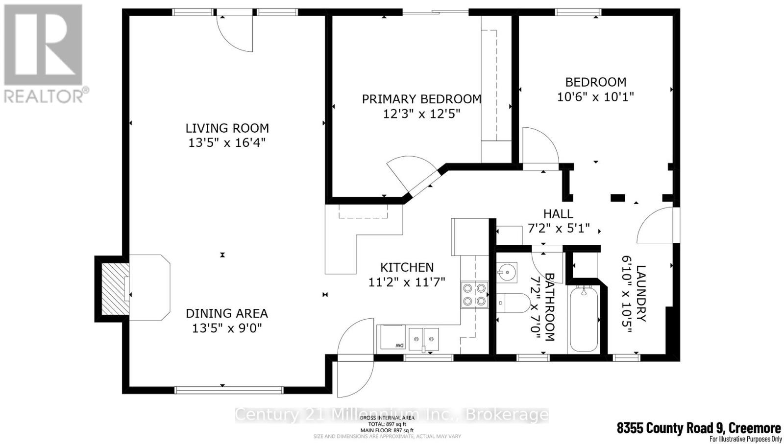
- Bedrooms: 2 (2 above)
- Bathrooms: 1
- Ownership: Freehold
- Attached: No
- Fireplaces: 1
- Parking: 6 spaces (No Garage)
- Frontage: 198 ft (60.4 m)
Costs
- Annual Taxes: $1,862.74 (2024)
Listing Provided by: Century 21 Millennium Inc.
Board: OnePoint Association of REALTORS®
Data provided via CREA DDF®.
Detailed Features
Interior & Systems
- Heating: Baseboard heaters, Electric
- Cooling: None
- Basement: Crawl space
- Appliances: Washer, Refrigerator, Stove, Dryer, Water Heater
- Utilities: Cable, Wireless, Electricity Connected
Exterior & Construction
- Exterior: Wood
- Sewer: Septic System
- Water: Dug Well
Lot & Land
- Frontage: 198 ft (60.4 m)
- Features: Hillside, Wooded area, Irregular lot size, Sloping, Waterway, Conservation/green belt, Carpet Free
- View: River view, View of water, Direct Water View
- Waterfront: Waterfront
- Water Body: Noisy River
- Zoning: NE
Community & Neighbourhood
- Community: Fishing
- Building: Fireplace(s)
- Neighbourhood: Rural Clearview
Room Details (8 rooms)
Listing Information
Listing History
Buy/Sell/Terminated/Expired listing history for 8355 COUNTY 9 ROAD, Clearview, Ontario, L0M1G0
Location & Neighborhood
🚗 Travel times
Neighborhood Walkability
Mortgage & Cost Calculators
Nearby Homes (Within 2km)
Similar Homes
Similar Properties
No rental comparables found in this area.
Sold Comparables
Access to sold property data requires a registered and verified account with TRREB DDF integration.
Coming SoonRented Comparables
Access to rented property data requires a registered and verified account with TRREB DDF integration.
Coming Soon




















