8201 OBSERVATORY DRIVE, Lucan Biddulph, Ontario, N0M1V0
MLS: X12855326 | Unknown
$1,395,000



















































Property Description
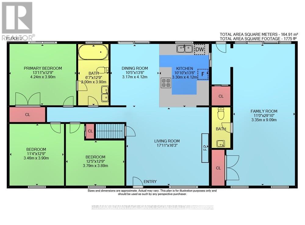
An extraordinary offering in a coveted location, where natural beauty and opportunity meet in perfect balance. Set amidst 19.4 gently rolling acres just north of London, this exceptional country estate offers a rare blend of privacy, beauty and versatility. Framed by mature trees and set well back from the road, the property unfolds in a serene, picturesque setting designed for peaceful living and refined rural pursuits. The property includes a six-stall horse barn (with capacity for nine), complemented by four well-sized paddocks and two run-in sheds. Approximately 10 acres in cultivation offer income potential or expanded agricultural use. A 42 x 30 ft shop/drive shed provides ample space for equipment, tractors or storage. The spacious ranch-style residence features 3+1 bedrooms and 2 1/2 bathrooms, with a lower walk-out level complete with second kitchen, bedroom, bathroom and family room, ideal for multi-generational living. At the heart of the home, an open-concept kitchen, dining and family area is warmed by a wood-burning fireplace, creating an inviting space for gathering. A vast main-floor family room with powder room and laundry enhances everyday comfort and functionality. Appliances and a standby generator are included. (id:64974)
Quick Facts
- Property Type: Unknown
- Bedrooms: None
- Bathrooms: None
- Living Area: 19 sq ft (1.8 m²)
- Lot Size: 19.4160 acres (7.86 ha)
- Frontage: 1,109 ft (337.9 m)
Costs
- Annual Taxes: $3,967.58
Listing Provided by: RE/MAX ADVANTAGE SANDERSON REALTY
Board: London and St. Thomas Association of REALTORS®
Data provided via CREA DDF®.
Detailed Features
Interior & Systems
- Heating: Other
- Cooling: None
- Appliances: Washer, Dishwasher, Dryer, Water Heater
Exterior & Construction
- Sewer: Septic System
Lot & Land
- Lot Size: 19.4160 acres (7.86 ha)
- Frontage: 1,109 ft (337.9 m)
- Zoning: A1
Community & Neighbourhood
- Neighbourhood: Rural Lucan Biddulph
Listing Information
Listing History
Buy/Sell/Terminated/Expired listing history for 8201 OBSERVATORY DRIVE, Lucan Biddulph, Ontario, N0M1V0
Location & Neighborhood
🚗 Travel times
Neighborhood Walkability
Mortgage & Cost Calculators
Similar Homes
Similar Properties
No rental comparables found in this area.
Sold Comparables
Access to sold property data requires a registered and verified account with TRREB DDF integration.
Coming SoonRented Comparables
Access to rented property data requires a registered and verified account with TRREB DDF integration.
Coming Soon
























