82 TIMBERWOLF CRESCENT, Vaughan (Vellore Village), Ontario, L4H2W1
MLS: N12908094 | Townhouse (Freehold)
$919,900
































Property Description
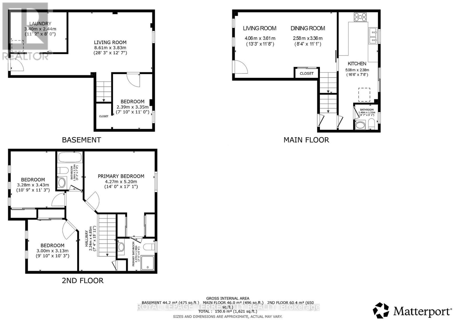
UPGRADED VAUGHAN FREEHOLD TOWNHOME IN THE FANTASTIC VELLORE VILLAGE LOCATION! Well Maintained and Upgraded By Proud Owners, This Home is Move In Ready! Step into the Open Concept Main Floor with Spacious Living and Dining Room, and Two Piece Bathroom. The Main Floor has an Upgraded Family Sized Kitchen with a Walk Out to a Large Rear Deck in a Private Fenced Yard for Family and Guests to Enjoy Summer BBQs! The Main Floor Also has Direct Access to the Large Garage and Convenient Two Vehicle Driveway! The Upper Level has an Exquisite Primary Suite that Features Dual Closets and a Three Piece Ensuite Bathroom. The Upper Level Also Offers a Full Bathroom for the Alternate Bedrooms. The Finished Lower Level also has Direct Access to the Garage that can be a Separate Entrance to the Basement. The Lower Level Offers an Open Recreation Room, Laundry Room and an Additional Bedroom. This Location Offers Access to Highways, Shopping, Public Transit, Community Centres with Skating, Pool, Gym, Library and More! Excellent Value for a Turnkey Ready to Move in Vaughan Home! (id:64974)
Quick Facts
- Property Type: Townhouse (Freehold)
- Bedrooms: 4 (3 above, 1 below)
- Bathrooms: 3 (1 half)
- Ownership: Freehold
- Attached: Yes
- Parking: 3.0 spaces (Garage)
- Frontage: 25 ft (7.6 m)
Costs
- Annual Taxes: $3,897.89
Listing Provided by: ROYAL LEPAGE TERREQUITY REALTY
Board: Toronto Regional Real Estate Board
Data provided via CREA DDF®.
Detailed Features
Interior & Systems
- Heating: Forced air, Natural gas
- Cooling: Central air conditioning
- Basement: Finished, Separate entrance, N/A, N/A
- Appliances: Washer, Refrigerator, Dishwasher, Stove, Dryer, Microwave, Freezer, Hood Fan, Window Coverings, Garage door opener, Garage door opener remote(s), Water Heater
- Flooring: Hardwood, Laminate
Exterior & Construction
- Exterior: Brick
- Foundation: Concrete
- Fencing: Fenced yard
- Sewer: Sanitary sewer
- Water: Municipal water
Lot & Land
- Frontage: 25 ft (7.6 m)
- Features: Irregular lot size, Flat site, Carpet Free
- Zoning: Single Family Residential
Community & Neighbourhood
- Community: Community Centre
- Neighbourhood: Vellore Village
Room Details (10 rooms)
Listing Information
Listing History
MLS listing activity for 82 TIMBERWOLF CRESCENT, Vaughan (Vellore Village), Ontario, L4H2W1 — dates reflect when changes were recorded in the DDF
🚗 Travel times
Neighborhood Walkability
Mortgage & Cost Calculators
Nearby Homes ?Nearby Homes — Search CriteriaSearch Radius1 kmPrice Range±5%Match BedroomsYesMatch BathroomsYes

41 GERUSSI STREET, Vaughan (Vellore Village)
Row / Townhouse$1,045,000
$4,645/yr taxListing Courtesy of URBAN HOMES REALTY INC.

22 BENOIT STREET, Vaughan (Vellore Village)
Row / Townhouse$1,028,000
$4,601/yr taxListing Courtesy of HOMELIFE LANDMARK REALTY INC.

56 WILDBERRY CRESCENT, Vaughan (Vellore Village)
House$999,999
$5,341/yr taxListing Courtesy of RE/MAX PREMIER THE OP TEAM

123 WILDBERRY CRESCENT, Vaughan (Vellore Village)
Row / Townhouse$3,900/mo
Listing Courtesy of HOUSESIGMA INC.

43 SEDGEWAY HEIGHTS, Vaughan (Vellore Village)
Row / Townhouse$1,196,000
$4,740/yr taxListing Courtesy of HC REALTY GROUP INC.

32 - 3905 MAJOR MACKENZIE DRIVE, Vaughan (Vellore Village)
Condo - Apartment$749,999
$2,872/yr taxListing Courtesy of RE/MAX WEST REALTY INC.

129 DOLCE CRESCENT, Vaughan (Vellore Village)
Row / Townhouse$1,100,000
$4,411/yr taxListing Courtesy of KELLER WILLIAMS REFERRED URBAN REALTY

BSMT - 294 WILDBERRY CRESCENT, Vaughan (Vellore Village)
Row / Townhouse$1,800/mo
Listing Courtesy of CECILIA DEFREITAS FINE HOMES LTD.

117 TENNANT CIRCLE, Vaughan (Vellore Village)
Row / Townhouse$1,129,990
Listing Courtesy of ROYAL LEPAGE PREMIUM ONE REALTY

5 GRIDIRON GATE, Vaughan (Vellore Village)
House$1,058,000
$5,706/yr taxListing Courtesy of REAL ONE REALTY INC.

BSMT - 88 ANDES CRESCENT, Vaughan (Vellore Village)
House$1,950/mo
Listing Courtesy of RE/MAX EXPERTS

56 PLANTER CRESCENT, Vaughan (Vellore Village)
House$1,189,999
$4,953/yr taxListing Courtesy of RE/MAX WEST REALTY INC.

16 ORION AVENUE, Vaughan (Vellore Village)
House$4,100/mo
Listing Courtesy of ROYAL LEPAGE MAXIMUM REALTY

251 TENNANT CIRCLE, Vaughan (Vellore Village)
Row / Townhouse$3,800/mo
Listing Courtesy of BAY STREET GROUP INC.

2 ADAM ERNST COURT, Vaughan (Vellore Village)
House$1,649,000
$6,426/yr taxListing Courtesy of CENTURY 21 HERITAGE GROUP LTD.
Similar Homes ?Similar Homes — Search CriteriaSearch Radius5 kmPrice Range±5%Match Home TypeYesMatch BedroomsYes

1006 - 120 EAGLE ROCK WAY, Vaughan (Maple)
Condo - Apartment$929,000
$4,219/yr taxListing Courtesy of EXP REALTY

33 - 181 PARKTREE DRIVE, Vaughan (Maple)
Row / Townhouse$929,999
$3,517/yr taxListing Courtesy of HOMELIFE/MIRACLE REALTY LTD

220 DEEPSPRINGS CRESCENT, Vaughan (Vellore Village)
Row / Townhouse$899,999
$3,920/yr taxListing Courtesy of RE/MAX METROPOLIS REALTY

1506 - 120 EAGLE ROCK WAY, Vaughan
Condo - Apartment$899,000
$4,330/yr taxListing Courtesy of RE/MAX HALLMARK REALTY LTD.
Similar Properties ?Active Comparables — Search CriteriaSearch Radius2 kmPrice Range±5%Match Home TypeYesMatch BedroomsYes

33 - 181 PARKTREE DRIVE, Vaughan (Maple)
Row / Townhouse$929,999
$3,517/yr taxListing Courtesy of HOMELIFE/MIRACLE REALTY LTD

220 DEEPSPRINGS CRESCENT, Vaughan (Vellore Village)
Row / Townhouse$899,999
$3,920/yr taxListing Courtesy of RE/MAX METROPOLIS REALTY
Sold Comparables
Access to sold property data requires a registered and verified account with TRREB DDF integration.
Coming SoonRented Comparables
Access to rented property data requires a registered and verified account with TRREB DDF integration.
Coming SoonBook a Viewing
82 TIMBERWOLF CRESCENT, Vaughan (Vellore Village), Ontario, L4H2W1

