82 FIFTH STREET, Toronto (New Toronto), Ontario, M8V2Z3
MLS: W12997082 | House (Freehold)
$1,579,000










































Property Description
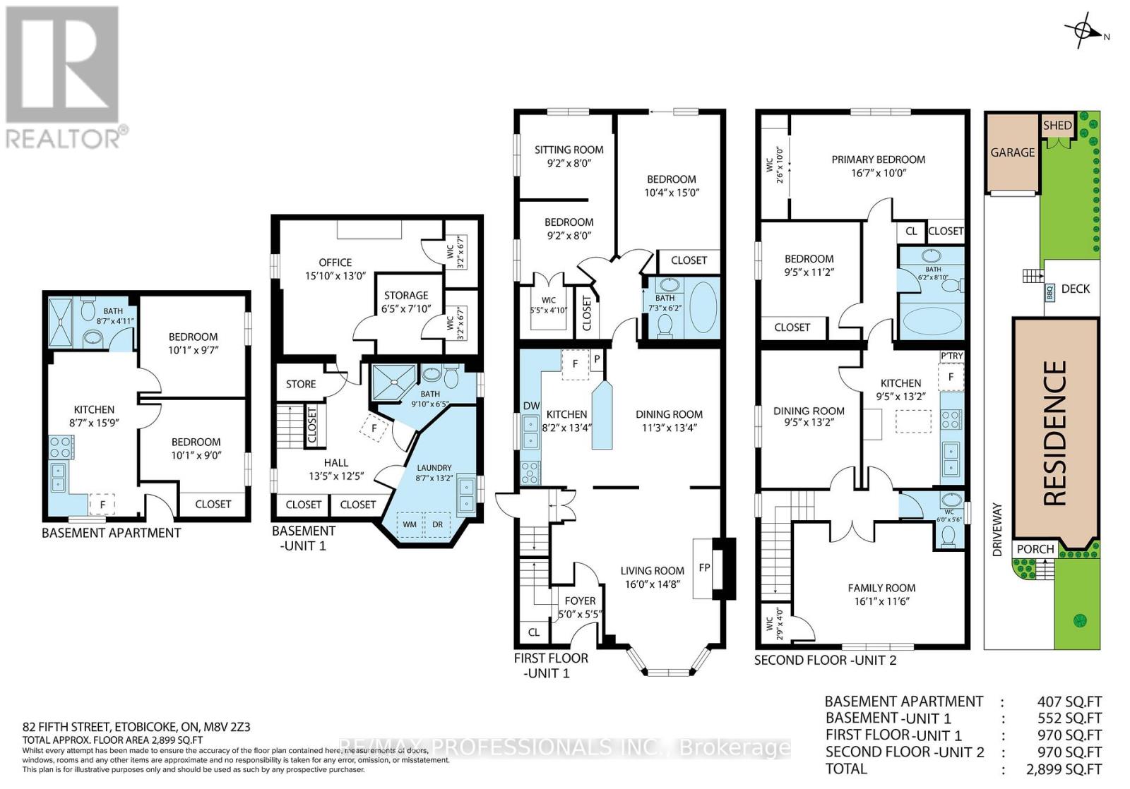
Welcome to 82 Fifth Street - Welcome to Life By the Lake! Massive Triplex with Private Drive, Tons of Parking and Detached Garage on One of New Toronto's Most Coveted Streets, South of Lakeshore! Steps to Lake, Shopping, Restaurants, Schools, Parks and Transit. Easy Access to Highways, Downtown and Airport. Home Offers Possibilities Galore: 2900 Square Feet of Finished Living Space Currently Set Up As 3 Self-Contained Units. Live In One Unit and Have Your Tenants Pay the Mortgage; Use As Multi-Generational Home; Convert Upper Levels into a Family Home with In-Law Suite or Income Generating Suite in the Basement; or Use Existing L-A-R-G-E Footprint and Renovate Into a Huge Single Family Home on this Friendly Street! Unit 1 Boasts High Ceilings, An Inviting Living Room Complete with Fireplace, Large Kitchen Overlooking Formal Dining Room, 2 Bedrooms (One with a Walk-Out to Gorgeous Backyard and Deck), 2 Bathrooms and A Below Grade Rec Room/Office That Could Be Used as a 3rd Bedroom. Tons of Storage. Unit 2 Also Has 2 Bedrooms and 2 Bathrooms, A Large, Eat-In Kitchen (With Skylight!), a Formal Dining Room (Could Be Used as 3rd Bedroom) and a Dedicated Living Room. A 2 Bedroom/1 Bathroom Basement Apartment with Separate Entrance Located at Rear of the Home. This Home Has Been Lovingly Owned and Maintained by the Same Family for More Than 4 Decades - and Is Awaiting Your Updates to Be Enjoyed for the Next 40 years! (id:64974)
Quick Facts
- Property Type: House (Freehold)
- Bedrooms: 6 (4 above, 2 below)
- Bathrooms: 5 (1 half)
- Ownership: Freehold
- Attached: No
- Fireplaces: Yes
- Parking: 6.0 spaces (Detached Garage, Garage)
- Frontage: 30 ft (9.1 m)
Costs
- Annual Taxes: $6,093.03
Listing Provided by: RE/MAX PROFESSIONALS INC.
Board: Toronto Regional Real Estate Board
Data provided via CREA DDF®.
Detailed Features
Interior & Systems
- Heating: Forced air, Natural gas
- Cooling: Central air conditioning
- Basement: Apartment in basement, N/A
- Appliances: Washer, Refrigerator, Dishwasher, Stove, Dryer
Exterior & Construction
- Exterior: Brick
- Foundation: Block
- Sewer: Sanitary sewer
- Water: Municipal water
Lot & Land
- Frontage: 30 ft (9.1 m)
- Features: Carpet Free
- View: City view
Community & Neighbourhood
- Neighbourhood: New Toronto
Listing Information
Listing History
MLS listing activity for 82 FIFTH STREET, Toronto (New Toronto), Ontario, M8V2Z3 — dates reflect when changes were recorded in the DDF
🚗 Travel times
Neighborhood Walkability
Mortgage & Cost Calculators
Nearby Homes ?Nearby Homes — Search CriteriaSearch Radius1 kmPrice Range±5%Match BedroomsYesMatch BathroomsYes

501 - 41 LAKE SHORE DRIVE, Toronto (New Toronto)
Condo - Apartment$449,000
Listing Courtesy of ROYAL LEPAGE SIGNATURE REALTY

2 - 133 FIFTH STREET, Toronto (New Toronto)
Condo - Apartment$2,150/mo
Listing Courtesy of HOMELIFE/CIMERMAN REAL ESTATE LIMITED

1 - 2886 LAKE SHORE BOULEVARD W, Toronto (New Toronto)
Residential Commercial Mix$2,450/mo
Listing Courtesy of SUTTON GROUP REALTY SYSTEMS INC.

2 - 25 SIXTH STREET, Toronto (New Toronto)
House$1,430/mo
Listing Courtesy of BEST UNION REALTY INC.

87 EIGHTH STREET, Toronto (New Toronto)
House$999,999
$4,985/yr taxListing Courtesy of ROYAL LEPAGE TERREQUITY REALTY

47 EIGHTH STREET, Toronto (New Toronto)
House$1,800,000
$8,008/yr taxListing Courtesy of CENTURY 21 ATRIA REALTY INC.

2 - 2976 LAKE SHORE BOULEVARD W, Toronto (New Toronto)
Residential Commercial Mix$1,800/mo
Listing Courtesy of KELLER WILLIAMS REFERRED URBAN REALTY

4010 - 1926 LAKESHORE BOULEVARD, Toronto (High Park-Swansea)
Condo - Apartment$639,000
$4,087/yr taxListing Courtesy of CENTURY 21 TITANS REALTY INC.

1905 - 2045 LAKESHORE BOULEVARD W, Toronto (Mimico)
Condo - Apartment$899,000
$3,356/yr taxListing Courtesy of RE/MAX HALLMARK REALTY LTD.

3808 - 2220 LAKESHORE BOULEVARD, Toronto (Mimico)
Condo - Apartment$549,000
$2,473/yr taxListing Courtesy of CITYSCAPE REAL ESTATE LTD.

410 - 2220 LAKESHORE BOULEVARD W, Toronto (Mimico)
Condo - Apartment$2,100/mo
Listing Courtesy of LPT REALTY

509 - 2220 LAKESHORE BOULEVARD W, Toronto (Mimico)
Condo - Apartment$2,250/mo
Listing Courtesy of RE/MAX ELITE REAL ESTATE

14 EIGHTH STREET, Toronto (New Toronto)
House$1,729,900
$5,663/yr taxListing Courtesy of ROYAL LEPAGE TERREQUITY REALTY

2005 - 2240 LAKESHORE BOULEVARD W, Toronto (Mimico)
Condo - Apartment$2,500/mo
Listing Courtesy of ROYAL LEPAGE REALTY PLUS

301 - 2287 LAKE SHORE ROAD W, Toronto (Mimico)
Condo$1,099,000
$4,178/yr taxListing Courtesy of RE/MAX Escarpment Realty Inc., Brokerage
Similar Homes ?Similar Homes — Search CriteriaSearch Radius5 kmPrice Range±5%Match Home TypeYesMatch BedroomsYes

3336 CROMPTON CRESCENT, Mississauga (Fairview)
House$1,579,000
$9,356/yr taxListing Courtesy of SUTTON GROUP REALTY SYSTEMS INC.

LT 220 FRIESIAN COURT, Oro-Medonte
House$1,579,000
Listing Courtesy of RE/MAX HALLMARK CHAY REALTY

44 EAGLESPRINGS CRESCENT, Brampton (Bram East)
House$1,579,000
$11,298/yr taxListing Courtesy of RE/MAX SKYWAY REALTY INC.

75 RANGOON ROAD, Toronto (Eringate-Centennial-West Deane)
House$1,579,000
$4,796/yr taxListing Courtesy of ROYAL LEPAGE REAL ESTATE SERVICES PHINNEY REAL ESTATE

291 CARLA Court, Burlington
House$1,579,000
$7,743/yr taxListing Courtesy of Heritage Realty

84 CULBERT ROAD, Bradford West Gwillimbury (Bradford)
House$1,579,000
$8,067/yr taxListing Courtesy of RE/MAX EXPERTS

9344 COUNTY 1 ROAD, Adjala-Tosorontio
House$1,579,000
$7,204/yr taxListing Courtesy of CENTURY 21 MILLENNIUM INC.

11 ROYAL ROUGE TRAIL, Toronto (Rouge)
House$1,578,888
$5,957/yr taxListing Courtesy of ROYAL LEPAGE SIGNATURE REALTY

50 KEVINWOOD DRIVE, Caledon (Caledon Village)
House$1,579,900
$6,118/yr taxListing Courtesy of EXIT REALTY HARE (PEEL)

2 - 10 LOU PARSONS WAY, Mississauga (Port Credit)
Condo - Row / Townhouse$1,579,900
Listing Courtesy of RIGHT AT HOME REALTY

2921 CARADOC LANE, Oakville (CV Clearview)
House$1,579,900
$6,550/yr taxListing Courtesy of ROYAL LEPAGE SIGNATURE REALTY

27 KENNETT DRIVE, Whitby (Lynde Creek)
House$1,579,900
$9,578/yr taxListing Courtesy of ROYAL LEPAGE RCR REALTY

63 SUTTONRAIL WAY, Whitchurch-Stouffville (Stouffville)
House$1,579,988
$7,723/yr taxListing Courtesy of RE/MAX ACE REALTY INC.

8 HEMINGWAY CRESCENT, Markham (Unionville)
House$1,579,999
$8,676/yr taxListing Courtesy of NU STREAM REALTY (TORONTO) INC.

201 TROY STREET, Mississauga (Mineola)
House$1,579,999
$7,206/yr taxListing Courtesy of iCloud Realty Ltd.
Similar Properties ?Active Comparables — Search CriteriaSearch Radius2 kmPrice Range±5%Match Home TypeYesMatch BedroomsYes
No active comparables found in this area.
No rental comparables found in this area.
Sold Comparables
Access to sold property data requires a registered and verified account with TRREB DDF integration.
Coming SoonRented Comparables
Access to rented property data requires a registered and verified account with TRREB DDF integration.
Coming SoonBook a Viewing
82 FIFTH STREET, Toronto (New Toronto), Ontario, M8V2Z3
